Srebrna z garażem 1-st. A



Wypełnij formularz i otrzymaj rysunki w pdf z dokładnymi wymiarami budynku i pomieszczeń (długość, szerokość, wysokość) dla projektu Srebrna z garażem 1-st. A
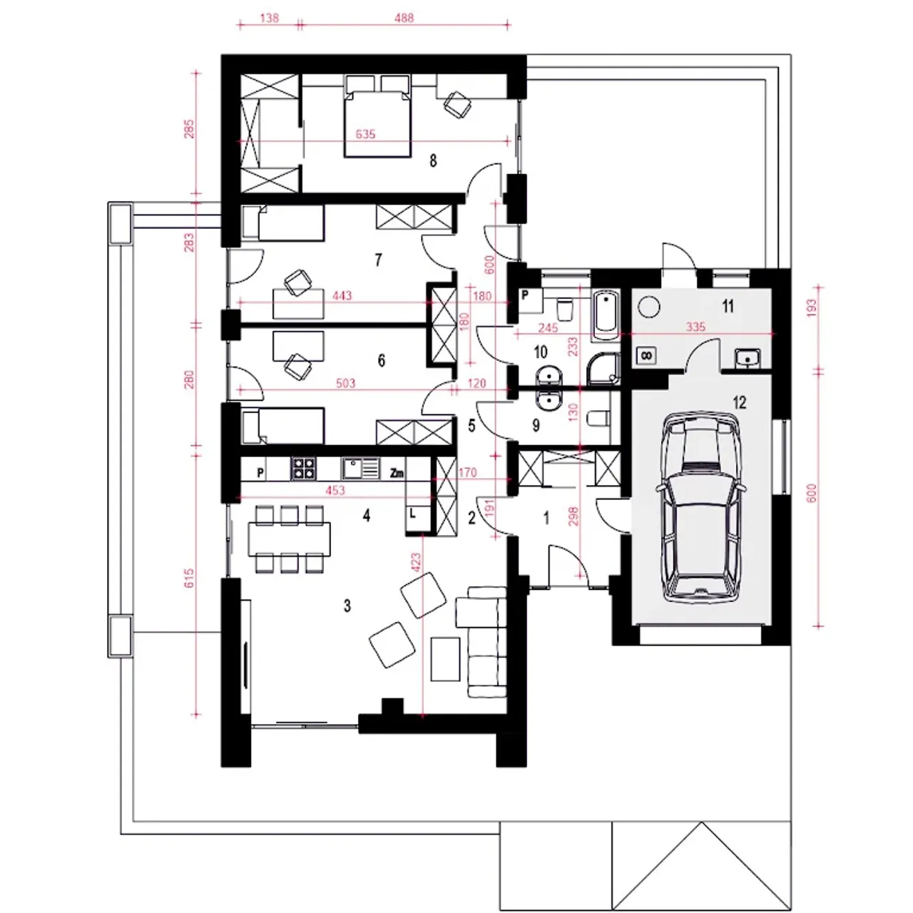
Pow. użytkowa 106.6 m² |
Powierzchnia zabudowy 173.1 m² |
Kondygnacje parterowy |
Garaż 1 stanowisko |
Technologia murowany |
Szerokość działki 22 m |
Obiekt dom |
Typ domu jednorodzinny całoroczny |
Długość działki 25 m |
Rodzaj dachu dwuspadowy |
Powierzchnia dachu 237.1 m² |
Kominek kominek opcjonalnie |
Styl budynku nowoczesny |
Wysokość budynku 7.3 m |
Kalenica prostopadła do drogi |
Piwnica bez podpiwniczenia |
Kąt nachylenia dachu 45 ° |
Koszty budowy tylko z kosztorysem, 250-300 tys. |
Pow. użytkowa 106.6 m² |
Kondygnacje parterowy |
Technologia murowany |
Obiekt dom |
Długość działki 25 m |
Powierzchnia dachu 237.1 m² |
Styl budynku nowoczesny |
Kalenica prostopadła do drogi |
Kąt nachylenia dachu 45 ° |
Powierzchnia zabudowy 173.1 m² |
Garaż 1 stanowisko |
Szerokość działki 22 m |
Typ domu jednorodzinny całoroczny |
Rodzaj dachu dwuspadowy |
Kominek kominek opcjonalnie |
Wysokość budynku 7.3 m |
Piwnica bez podpiwniczenia |
Koszty budowy tylko z kosztorysem, 250-300 tys. |
Kupując projekt w technologii murowanej powinieneś budować dom murowany. Zupełna zmiana technologii na szkieletową wymaga przeprojektowania całego budynku ( zmieniają się obciążenia, fundamenty, konstrukcja dachu). Wydamy zgodę na takie przeprojektowanie jednak wiążę się to z dużymi kosztami. Istnieją firmy wykonawcze, które podejmują się zmiany technologii budowy bezpłatnie przy skorzystaniu z ich usług wykonawczych. Zdarza się, że pracownia architektoniczna przygotowuje warianty konkretnego projektu przewidując także inne technologie. Prosimy o sprawdzenie czy istnieje poszukiwana wersja projektu, w zakładce - warianty projektu.
Zwężenie/poszerzenie budynku* to nic innego jak zmiana w projekcie. Istnieje możliwość wprowadzenia takich zmian, we własnym zakresie (podczas adaptacji). *zwężenie/poszerzenie budynku nie powinno stanowić problemu w przypadku domów o dachu dwuspadowym jeśli wiąże się to z wydłużeniem/skróceniem kalenicy dachu.
Poznaj praktyczne porady ekspertów, które ułatwią Ci każdy etap budowy i od wyboru wymarzonego domu po jego wykończenie. Zyskaj pewność, że podejmujesz najlepsze decyzje dzięki sprawdzonym wskazówkom od specjalistów z planz.pl
Wycena szacunkowa, w kwotach netto, nie zawiera instalacji.
bezpłatnie (0zł)
przelew zwykły / PayNow
przy odbiorze
3-5 dni roboczych (jeśli projekt nie jest koncepcją)
Projekt Srebrna z garażem 1-st. A przyciąga uwagę swoją nowoczesną elegancją i praktycznym podejściem do przestrzeni życiowej. Dobrze przemyślane wnętrza z pewnością zaspokoją potrzeby rodziny, oferując przestronne pokoje i inteligentnie zaplanowane pomieszczenia wspólne. Estetyka zewnętrzna łączy w sobie prostotę z nowoczesnymi akcentami, co sprawia, że dom wpisuje się zarówno w otoczenie miejskie, jak i podmiejskie. Ponadto obecność garażu stanowi udogodnienie, które docenią kierowcy, poszukujący praktycznych rozwiązań. To interesująca propozycja dla tych, którzy cenią sobie nowoczesność i funkcjonalność w jednym projekcie.
Wybierz wygodny dla Ciebie czas kontaktu z naszym Doradcą Technicznym.