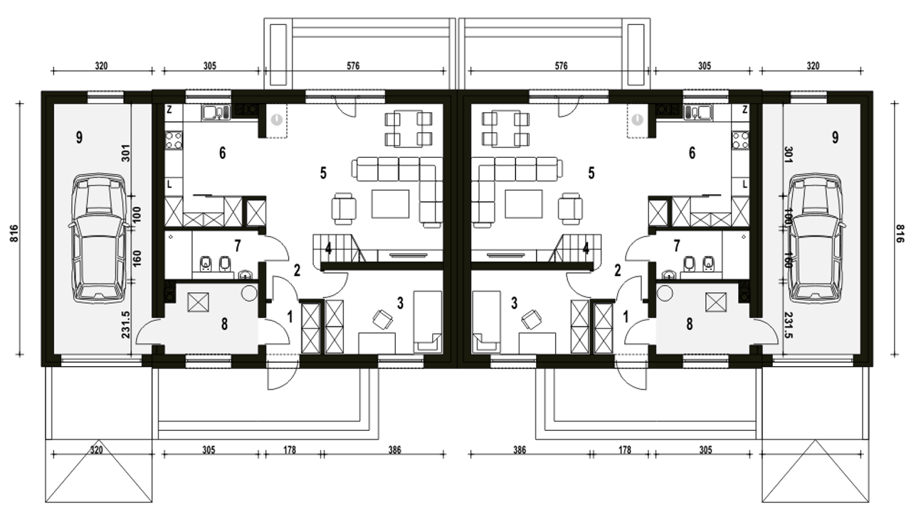
Sosnówka bez garażu B



1. Wiatrołap | 2,90 m² |
2. Hol | 4,00 m² |
3. Pokój | 10,40 m² |
4. Schody | 3,70 m² |
5. Salon | 26,40 m² |
6. Kuchnia+spiżarnia | 11,10 m² |
7. łazienka | 4,80 m² |
8. Kotłownia* | 6,70 m² |
9. Garaż* | 25,80 m² |
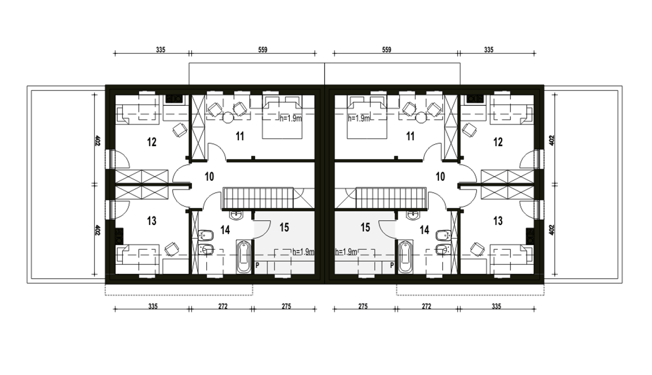
1. Hol | 8,00 (8,00) m² |
2. Sypialnia | 12,00 (16,20) m² |
3. Sypialnia | 10,70 (12,70) m² |
4. Sypialnia | 10,50 (12,90) m² |
5. łazienka | 5,50 (7,50) m² |
6. Pralnia* | 5,70 (8,00) m² |
Wypełnij formularz i otrzymaj rysunki w pdf z dokładnymi wymiarami budynku i pomieszczeń (długość, szerokość, wysokość) dla projektu Sosnówka z garażem 1-st. bliźniak A-BL2
Pow. użytkowa 219.8 m² |
Ilość pokoi 5 |
Powierzchnia zabudowy 245.6 m² |
Kondygnacje parterowy+poddasze |
Garaż 1 stanowisko |
Technologia murowany |
Szerokość działki 35 m |
Obiekt dom |
Typ domu bliźniak i dwurodzinny |
Wysokość budynku 8.8 m |
Długość działki 17.1 m |
Styl budynku nowoczesny |
Liczba łazieniek 2 |
Kąt nachylenia dachu 40 ° |
Kalenica równoległa do drogi |
Kominek kominek w projekcie |
Funkcje dodatkowe z pralnią |
Szerokość budynku 13.5 m |
Rodzaj garażu przyklejony |
Kotłownia duża kotłownia |
Długość budynku 9.1 m |
Rodzaj dachu dwuspadowy |
Piwnica bez podpiwniczenia |
Powierzchnia dachu 234.4 m² |
Bryła budynku prosta bryła |
Koszty budowy tylko z kosztorysem, 250-300 tys. |
Pow. użytkowa 219.8 m² |
Powierzchnia zabudowy 245.6 m² |
Garaż 1 stanowisko |
Szerokość działki 35 m |
Typ domu bliźniak i dwurodzinny |
Długość działki 17.1 m |
Liczba łazieniek 2 |
Kalenica równoległa do drogi |
Funkcje dodatkowe z pralnią |
Rodzaj garażu przyklejony |
Długość budynku 9.1 m |
Piwnica bez podpiwniczenia |
Bryła budynku prosta bryła |
Ilość pokoi 5 |
Kondygnacje parterowy+poddasze |
Technologia murowany |
Obiekt dom |
Wysokość budynku 8.8 m |
Styl budynku nowoczesny |
Kąt nachylenia dachu 40 ° |
Kominek kominek w projekcie |
Szerokość budynku 13.5 m |
Kotłownia duża kotłownia |
Rodzaj dachu dwuspadowy |
Powierzchnia dachu 234.4 m² |
Koszty budowy tylko z kosztorysem, 250-300 tys. |
Kupując projekt w technologii murowanej powinieneś budować dom murowany. Zupełna zmiana technologii na szkieletową wymaga przeprojektowania całego budynku ( zmieniają się obciążenia, fundamenty, konstrukcja dachu). Wydamy zgodę na takie przeprojektowanie jednak wiążę się to z dużymi kosztami. Istnieją firmy wykonawcze, które podejmują się zmiany technologii budowy bezpłatnie przy skorzystaniu z ich usług wykonawczych. Zdarza się, że pracownia architektoniczna przygotowuje warianty konkretnego projektu przewidując także inne technologie. Prosimy o sprawdzenie czy istnieje poszukiwana wersja projektu, w zakładce - warianty projektu.
Zwężenie/poszerzenie budynku* to nic innego jak zmiana w projekcie. Istnieje możliwość wprowadzenia takich zmian, we własnym zakresie (podczas adaptacji). *zwężenie/poszerzenie budynku nie powinno stanowić problemu w przypadku domów o dachu dwuspadowym jeśli wiąże się to z wydłużeniem/skróceniem kalenicy dachu.
Poznaj praktyczne porady ekspertów, które ułatwią Ci każdy etap budowy i od wyboru wymarzonego domu po jego wykończenie. Zyskaj pewność, że podejmujesz najlepsze decyzje dzięki sprawdzonym wskazówkom od specjalistów z planz.pl
Wycena szacunkowa, w kwotach netto, nie zawiera instalacji.
bezpłatnie (0zł)
przelew zwykły / PayNow
przy odbiorze
3-5 dni roboczych (jeśli projekt nie jest koncepcją)
Wybierz wygodny dla Ciebie czas kontaktu z naszym Doradcą Technicznym.