Francik



Wypełnij formularz i otrzymaj rysunki w pdf z dokładnymi wymiarami budynku i pomieszczeń (długość, szerokość, wysokość) dla projektu Sosenka 4
Pow. użytkowa 63.32 m² |
Ilość pokoi 3 |
Powierzchnia zabudowy 51.28 m² |
Kondygnacje parterowy+poddasze |
Garaż bez garażu |
Technologia szkielet/drewniany |
Szerokość działki 16.66 m |
Obiekt dom |
Typ domu jednorodzinny całoroczny |
Długość działki 14.63 m |
Wysokość budynku 6.68 m |
Strop drewniany |
Styl budynku tradycyjny |
Liczba łazieniek 1 |
Kalenica równoległa do drogi |
Kominek kominek w projekcie |
Szerokość budynku 8.66 m |
Taras z tarasem |
Kąt nachylenia dachu 45 ° |
Funkcje dodatkowe z wykuszem |
Długość budynku 6.63 m |
Rodzaj dachu dwuspadowy |
Piwnica bez podpiwniczenia |
Kubatura 253.5 m³ |
Powierzchnia dachu 111.71 m² |
Koszty budowy tylko z kosztorysem, 150-200 tys. |
Pow. użytkowa 63.32 m² |
Powierzchnia zabudowy 51.28 m² |
Garaż bez garażu |
Szerokość działki 16.66 m |
Typ domu jednorodzinny całoroczny |
Wysokość budynku 6.68 m |
Styl budynku tradycyjny |
Kalenica równoległa do drogi |
Szerokość budynku 8.66 m |
Kąt nachylenia dachu 45 ° |
Długość budynku 6.63 m |
Piwnica bez podpiwniczenia |
Powierzchnia dachu 111.71 m² |
Ilość pokoi 3 |
Kondygnacje parterowy+poddasze |
Technologia szkielet/drewniany |
Obiekt dom |
Długość działki 14.63 m |
Strop drewniany |
Liczba łazieniek 1 |
Kominek kominek w projekcie |
Taras z tarasem |
Funkcje dodatkowe z wykuszem |
Rodzaj dachu dwuspadowy |
Kubatura 253.5 m³ |
Koszty budowy tylko z kosztorysem, 150-200 tys. |
Projekt domu Sosenka 4 to wersja wariantowa projektu Sosenka.
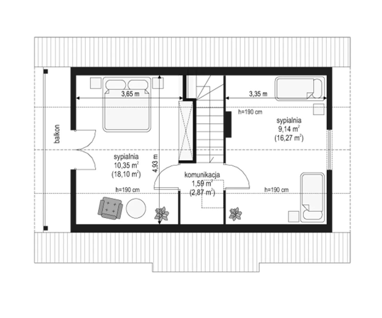
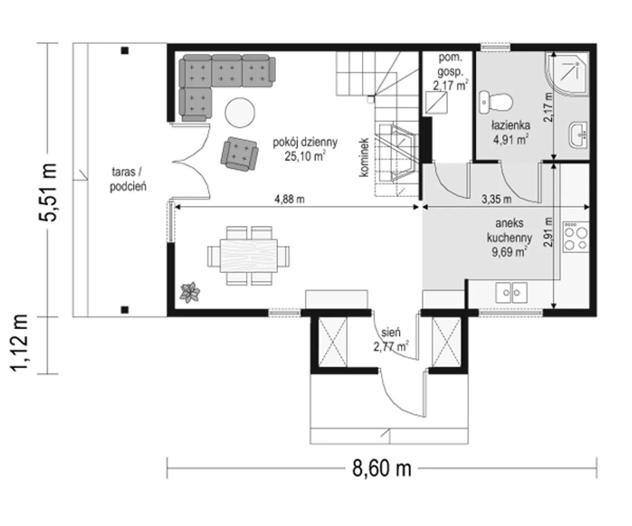
Dom został zaprojektowany w konstrukcji szkieletowej drewnianej. Budynek może pełnić rolę domuku letniskowego, ale również całorocznego dla trzy-czteroosobowej rodziny. Parterowy, z użytkowym poddaszem i dwuspadowym dachem, bez garażu. Powierzchnia użytkowa: 63,32 m2. Budynek może być posadowiony na wąskiej działce od 300 m2. Projekt przewiduje ogrzewanie wodne zasilane piecem gazowym zainstalowanym w pomieszczeniu gospodarczym. Alternatywnie można uzyskać ogrzewanie na bazie kominka. Projekt Sosenka 4 przewiduje funkcjonalny podział: na część dzienną na parterze i nocną na poddaszu. Na parterze budynku zaprojektowano pokój dzienny z jadalnią i kominkiem oraz otwartą kuchnię, łazienkę i pomieszczenie gospodarcze. Obok kominka znajdują się schody na poddasze. Z pokoju wyjście na zadaszony taras, nad którym znajduje się wsparty na słupach balkon. Na poddaszu mieszczą się dwie sypialnie.
Energooszczędność domu jest zgodna z obowiązującymi normami budowlanymi.
Kupując projekt w technologii murowanej powinieneś budować dom murowany. Zupełna zmiana technologii na szkieletową wymaga przeprojektowania całego budynku ( zmieniają się obciążenia, fundamenty, konstrukcja dachu). Wydamy zgodę na takie przeprojektowanie jednak wiążę się to z dużymi kosztami. Istnieją firmy wykonawcze, które podejmują się zmiany technologii budowy bezpłatnie przy skorzystaniu z ich usług wykonawczych. Zdarza się, że pracownia architektoniczna przygotowuje warianty konkretnego projektu przewidując także inne technologie. Prosimy o sprawdzenie czy istnieje poszukiwana wersja projektu, w zakładce - warianty projektu.
Zwężenie/poszerzenie budynku* to nic innego jak zmiana w projekcie. Istnieje możliwość wprowadzenia takich zmian, we własnym zakresie (podczas adaptacji). *zwężenie/poszerzenie budynku nie powinno stanowić problemu w przypadku domów o dachu dwuspadowym jeśli wiąże się to z wydłużeniem/skróceniem kalenicy dachu.
Poznaj praktyczne porady ekspertów, które ułatwią Ci każdy etap budowy i od wyboru wymarzonego domu po jego wykończenie. Zyskaj pewność, że podejmujesz najlepsze decyzje dzięki sprawdzonym wskazówkom od specjalistów z planz.pl
Wycena szacunkowa, w kwotach netto, nie zawiera instalacji.
bezpłatnie (0zł)
przelew zwykły / PayNow
przy odbiorze
3-10 dni roboczych
Wybierz wygodny dla Ciebie czas kontaktu z naszym Doradcą Technicznym.