22 299 20 00 (pn-nd 9.30 do 19.30)

Gotowy projekt domu Simple 1-30 (ID: 26043)

3250 2026-01-18
Simple 1-30 - 90.6m²
Dostawa w ciągu 3-10 dni
Gwarantujemy najniższą cenę
3250 zł
(3800 zł brutto)
TANIEJ 550 zł do 12.01.2026
Najniższa cena z 30 dni przed obniżką: 3250 zł
3250 2026-01-18
W cenie projektu:
📣 GRATIS: WIERTARKA UDAROWA
  • Tablica + dziennik budowy
  • 16 projektów ogrodowych
  • Darmowa wysyłka (kurier, paczkomat, pobranie)
  • 30 dni na zwrot
  • Pozwolenie na zmiany z podpisem i pieczęcią autora
  • GRATIS: Wiertarka Udarowa
22 299 20 00 (pn-nd 9.30 do 19.30)


Zawartość projektu

3 egzemplarze projektu archtektoniczno budowlanego + 3 egzemplarze projektu technicznego.

Dokumentacja projektowa zgodnie z nowymi przepisami WT2021 dostarczana jest w formie: 3+3 egzemplarze, czyli w dwóch częściach zawierających:
 
I - projekt architektoniczno-budowlany (opis i rysunki, analiza możliwości wykorzystania alternatywnych systemów zaopatrzenia w energię i ciepło
II - projekt techniczny, obejmujący:opracowanie konstrukcyjne (opis i wyciąg z obliczeń konstrukcji), projekt wewnętrznych instalacji sanitarnych (wodnej, kanalizacyjnej, gazowej, ogrzewanie), projekt wewnętrznych instalacji elektrycznych, projektowaną charakterystykę energetyczną.
 
W części architektonicznej znajdują się:

- Opis architektoniczno - budowlany
- Część rysunkowa (elewacje, rzuty, przekroje, zestawienie stolarki)

Projekt techniczny zawiera:

- Projekt konstrukcji
- Instalacje sanitarne + gazowe/ sanitarne + paliwo stałe
- instalacje elektryczne

Zawartość projektu nie dotyczy budynków gospodarczych, garaży oraz obiektów malej architektury.
Zawartość projektów bez rozrysowanej na rzucie kotłowni/łazienki/kuchni może nie obejmować schematów c.o. i wodno-kanalizacyjnych. W przypadku obiektów małej architektury - również może nie zawierać schematów instalacji elektrycznej.

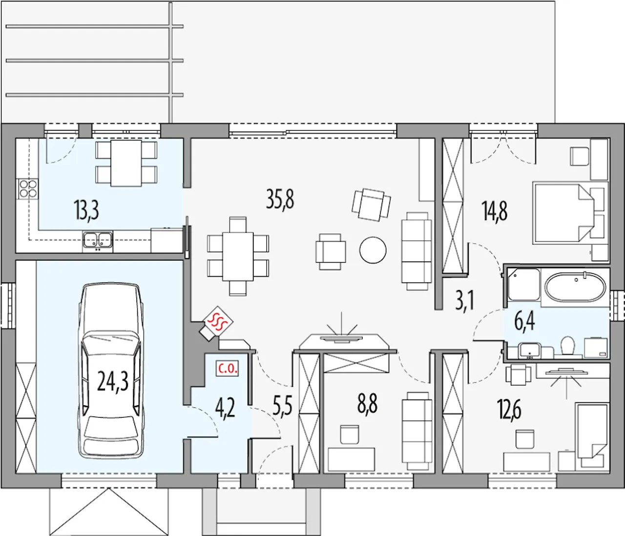
Rzuty gotowego projektu domu Simple 1-30

1. Wiatrołap 5,70 m²
2. Kotłownia 3,70 m²
3. Salon + jadalnia 35,70 m²
4. Kuchnia 9,40 m²
5. Korytarz 3,00 m²
6. Sypialnia 14,90 m²
7. łazienka 6,50 m²
8. Pokój 13,20 m²

Zapoznaj się ze szczegółami projektu - zamów bezpłatne rysunki do: Simple 1-30

Wypełnij formularz i otrzymaj na podany adres e-mail rysunki w pdf z dokładnymi wymiarami budynku i pomieszczeń (długość, szerokość, wysokość) dla projektu Simple 1-30

Parametry Techniczne gotowego projektu domu Simple 1-30

Pow. użytkowa 90.6 m²
Ilość pokoi 3
Powierzchnia zabudowy 112.5 m²
Kondygnacje piętrowy
Garaż bez garażu
Technologia murowany
Szerokość działki 18.8 m
Obiekt dom
Typ domu jednorodzinny całoroczny
Długość działki 17.6 m
Styl budynku nowoczesny
Strop drewniany
Kąt nachylenia dachu 30 °
Kalenica równoległa do drogi
Liczba łazieniek 1
Szerokość budynku 11.8 m
Rodzaj dachu dwuspadowy
Kominek kominek w projekcie
Długość budynku 9.6 m
Piwnica bez podpiwniczenia
Wysokość budynku 6.71 m
Bryła budynku prosta bryła
Koszty budowy tylko z kosztorysem, 200-250 tys.

Nasze prawdziwe opinie z Google

Opis projektu domu Simple 1-30

Technologia wykonania:

  • Strop: drewniany.
  • Pokrycie dachowe: dachówka ceramiczna.
  • Typ dachu: dwuspadowy.
  • Ogrzewanie: gaz.
  • Ściany zewnętrzne: silikat 24 + styropian 16cm Termoorganika.

Częste pytania

Czy projekty z Planz.pl są kompletne?

Tak. Projekty dostępne na Planz.pl zawierają pełną dokumentację potrzebną do uzyskania pozwolenia na budowę i stanowią gwarancję sprawnej realizacji budowy.

Jesteśmy oficjalnym partnerem ponad 50 pracowni architektonicznych z całej Polski - dlatego każdy projekt pochodzi wyłącznie od autorów zrzeszonych w Izbie Architektów RP. 

Planz.pl to polska firma działającą na rynku od 15 lat. Mamy tysiące zadowolonych klientów, doskonałe opinie i oferujemy wsparcie również po zakupie, doradzamy, pomagamy w adaptacji i pozostajemy w kontakcie na każdym etapie inwestycji.

Dodatkowo do każdego projektu dodajemy tablicę informacyjną, dziennik budowy oraz 16 projektów elektronicznych drewnianej architektury ogrodowej. A dzięki naszej współpracy z producentami sprzętu elektrycznego, oferujemy możliwość otrzymania np. Wiertarki udarowej w formie atrakcyjnego gratisu.

Wybierając Planz.pl, otrzymujesz ten sam oryginalny projekt od autora, wzbogacony o realne dodatki, które ułatwiają rozpoczęcie budowy.

Czy mogę wprowadzić zmiany w projekcie?

Co zrobić gdy wybrany dom nie mieści się na działce?

Jakie zmiany można wprowadzić w projekcie?

Porady ekspertów

Poznaj praktyczne porady ekspertów, które ułatwią Ci każdy etap budowy i od wyboru wymarzonego domu po jego wykończenie. Zyskaj pewność, że podejmujesz najlepsze decyzje dzięki sprawdzonym wskazówkom od specjalistów z planz.pl

Co zawiera projekt

  • ✓ 3 x projekt architektoniczno-budowlany ➞ szczegóły
  • ✓ Projekty techniczne ➞ szczegóły
  • ✓ charakterystyka energetyczna (do projektów domów)
  • ✓ zgoda na zmiany w projekcie ➞ szczegóły
  • ✓ GRATIS: Wiertarka (do projektów w cenie od 3000 zł)
  • ✓ GRATIS: 16 projektów (drewutni, altany i wiaty)
  • ✓ GRATIS: tablica i dziennik budowy
  • ✓ GRATIS: przesyłka kurierska

Dodatki do projektu Simple 1-30

Dodatki możesz kupić razem z projektem lub dokupić po czasie

[Hor] Wentylacja mechaniczna z rekuperacją (750 zł)

[Hor] Projekt instalacji pompy ciepła (1000 zł)

[Hor] Płyta fundamentowa (1800 zł)

[Hor] Ogrzewanie podłogowe (800 zł)

[Hor] Egzemplarz archiwalny projektu (300 zł)

[Hor] Strop monolityczny (1900 zł)

[Planz] Tablica budowlana (0 zł)

[Planz] Dziennik budowy (0 zł)

[Planz] Wiertarka udarowa (0 zł)

[Planz] Zgoda na zmiany w projekcie (0 zł)

[Planz] Projekty architektury ogrodowej (0 zł)

[Planz] Charakterystyka energetyczna, tylko dla domów całorocznych (0 zł)

Wysyłka i płatność za projekt Simple 1-30

Koszty wysyłki

bezpłatnie (0zł)

Formy płatności

przelew zwykły / PayNow
przy odbiorze

Czas oczekiwania

4-8 dni roboczych (jeśli projekt nie wymaga aktualizacji)

 

Wersje gotowego projektu domu Simple 1-30

TANIEJ O 550 zł
4150 zł 3600 zł

Simple 2-30

powierzchnia 104.5 m²
technologia murowany
stanowisk w garażu 1 stanowisko
kondygnacja parterowy
Zobacz projekt

Podobne projekty do domu Simple 1-30

TANIEJ O 550 zł
4099 zł 3549 zł

L-30 murowany

powierzchnia 97.5 m²
technologia murowany
stanowisk w garażu bez garażu
kondygnacja parterowy+poddasze
Zobacz projekt
TANIEJ O 550 zł
4099 zł 3549 zł

L-35 murowany

powierzchnia 93.8 m²
technologia murowany
stanowisk w garażu bez garażu
kondygnacja parterowy+poddasze
Zobacz projekt

Szacunkowy kosztorys dla projektu Simple 1-30

Stan surowy zamknięty 138000 zł
Stan surowy zamknięty
Stan deweloperski 207500 zł
Stan deweloperski

Wycena szacunkowa, w kwotach netto, nie zawiera instalacji.

PRACOWNIA: Horyzont