Simon IV G2



Wypełnij formularz i otrzymaj rysunki w pdf z dokładnymi wymiarami budynku i pomieszczeń (długość, szerokość, wysokość) dla projektu Simon (mały) G1
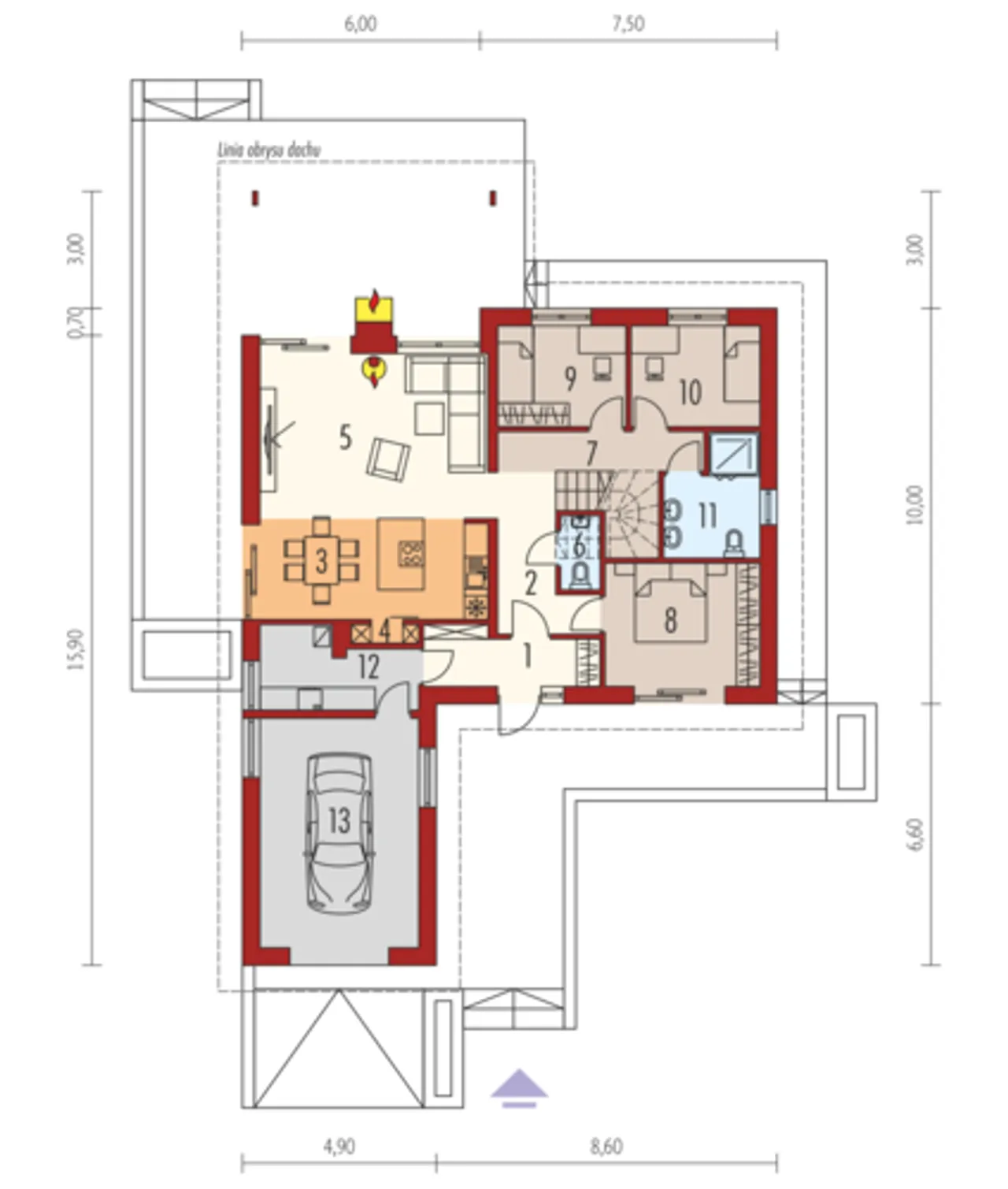
Pow. użytkowa 97.97 m² |
Ilość pokoi 4 |
Powierzchnia zabudowy 185.74 m² |
Kondygnacje parterowy |
Garaż 1 stanowisko |
Technologia murowany |
Szerokość działki 22.2 m |
Obiekt dom |
Typ domu jednorodzinny całoroczny |
Powierzchnia dachu 285 m² |
Rodzaj garażu z przodu |
Długość działki 25.8 m |
Ogrzewanie gaz, paliwo stałe, pompa ciepła |
Wysokość budynku 7.52 m |
Rodzaj dachu dwuspadowy |
Liczba łazieniek 1 |
Bryła budynku prosta bryła |
Kominek kominek w projekcie |
Szerokość budynku 13.5 m |
Styl budynku nowoczesny |
Kotłownia duża kotłownia |
Kąt nachylenia dachu 35 ° |
Długość budynku 19.6 m |
Piwnica bez podpiwniczenia |
Strop gęstożebrowy |
Kubatura 442.24 m³ |
Kalenica równoległa do drogi |
Koszty budowy tylko z kosztorysem, 250-300 tys. |
Pow. użytkowa 97.97 m² |
Powierzchnia zabudowy 185.74 m² |
Garaż 1 stanowisko |
Szerokość działki 22.2 m |
Typ domu jednorodzinny całoroczny |
Rodzaj garażu z przodu |
Ogrzewanie gaz, paliwo stałe, pompa ciepła |
Rodzaj dachu dwuspadowy |
Bryła budynku prosta bryła |
Szerokość budynku 13.5 m |
Kotłownia duża kotłownia |
Długość budynku 19.6 m |
Strop gęstożebrowy |
Kalenica równoległa do drogi |
Ilość pokoi 4 |
Kondygnacje parterowy |
Technologia murowany |
Obiekt dom |
Powierzchnia dachu 285 m² |
Długość działki 25.8 m |
Wysokość budynku 7.52 m |
Liczba łazieniek 1 |
Kominek kominek w projekcie |
Styl budynku nowoczesny |
Kąt nachylenia dachu 35 ° |
Piwnica bez podpiwniczenia |
Kubatura 442.24 m³ |
Koszty budowy tylko z kosztorysem, 250-300 tys. |
Kupując projekt w technologii murowanej powinieneś budować dom murowany. Zupełna zmiana technologii na szkieletową wymaga przeprojektowania całego budynku ( zmieniają się obciążenia, fundamenty, konstrukcja dachu). Wydamy zgodę na takie przeprojektowanie jednak wiążę się to z dużymi kosztami. Istnieją firmy wykonawcze, które podejmują się zmiany technologii budowy bezpłatnie przy skorzystaniu z ich usług wykonawczych. Zdarza się, że pracownia architektoniczna przygotowuje warianty konkretnego projektu przewidując także inne technologie. Prosimy o sprawdzenie czy istnieje poszukiwana wersja projektu, w zakładce - warianty projektu.
Zwężenie/poszerzenie budynku* to nic innego jak zmiana w projekcie. Istnieje możliwość wprowadzenia takich zmian, we własnym zakresie (podczas adaptacji). *zwężenie/poszerzenie budynku nie powinno stanowić problemu w przypadku domów o dachu dwuspadowym jeśli wiąże się to z wydłużeniem/skróceniem kalenicy dachu.
Poznaj praktyczne porady ekspertów, które ułatwią Ci każdy etap budowy i od wyboru wymarzonego domu po jego wykończenie. Zyskaj pewność, że podejmujesz najlepsze decyzje dzięki sprawdzonym wskazówkom od specjalistów z planz.pl
Wycena szacunkowa, w kwotach netto, nie zawiera instalacji.
bezpłatnie (0zł)
przelew zwykły / PayNow
przy odbiorze
3-5 dni roboczych (jeśli projekt nie wymaga aktualizacji)
Wybierz wygodny dla Ciebie czas kontaktu z naszym Doradcą Technicznym.