Similis III PG1



1. Korytarz z klatką schodową | 9,52 m² |
2. Pralnia | 19,51 m² |
3. Pom. gospodarcze | 13,25 m² |
4. Pom. gospodarcze | 12,74 m² |
5. Pom. gospodarcze | 8,36 m² |
6. Pom. gospodarcze | 12,25 (24,50) m² |
1. Wiatrołap | 3,99 m² |
2. łazienka | 3,91 m² |
3. Garaż | 24,50 m² |
4. Pokój dzienny z jadalnią | 33,23 m² |
5. Komunikacja | 9,80 m² |
6. Kuchnia | 12,73 m² |
1. Komunikacja | 7,21 m² |
2. Suszarnia | 12,97 (16,38) m² |
3. Pokój | 12,97 (16,37) m² |
4. Pokój | 9,98 (12,70) m² |
5. łazienka | 4,53 (8,70) m² |
6. Garderoba | 4,88 (7,17) m² |
7. Sypialnia | 14,75 (16,86) m² |
Wypełnij formularz i otrzymaj rysunki w pdf z dokładnymi wymiarami budynku i pomieszczeń (długość, szerokość, wysokość) dla projektu Similis V PG1
Ilość pokoi 4 |
Pow. użytkowa 113.1 m² |
Powierzchnia zabudowy 116.4 m² |
Kondygnacje parterowy+poddasze |
Garaż 1 stanowisko |
Technologia murowany |
Szerokość działki 23.75 m |
Obiekt dom |
Typ domu jednorodzinny całoroczny |
Funkcje dodatkowe z pralnią |
Długość budynku 9.15 m |
Rodzaj garażu przyklejony |
Piwnica z podpiwniczeniem |
Kubatura 991.6 m³ |
Rodzaj dachu dwuspadowy |
Wysokość budynku 8.88 m |
Długość działki 18.15 m |
Bryła budynku prosta bryła |
Styl budynku nowoczesny |
Strop żelbetowy |
Liczba łazieniek 2 |
Kąt nachylenia dachu 42 ° |
Kalenica równoległa do drogi |
Szerokość budynku 13.65 m |
Kominek kominek opcjonalnie |
Koszty budowy 400-450 tys., tylko z kosztorysem |
Ilość pokoi 4 |
Powierzchnia zabudowy 116.4 m² |
Garaż 1 stanowisko |
Szerokość działki 23.75 m |
Typ domu jednorodzinny całoroczny |
Długość budynku 9.15 m |
Piwnica z podpiwniczeniem |
Rodzaj dachu dwuspadowy |
Długość działki 18.15 m |
Styl budynku nowoczesny |
Liczba łazieniek 2 |
Kalenica równoległa do drogi |
Kominek kominek opcjonalnie |
Pow. użytkowa 113.1 m² |
Kondygnacje parterowy+poddasze |
Technologia murowany |
Obiekt dom |
Funkcje dodatkowe z pralnią |
Rodzaj garażu przyklejony |
Kubatura 991.6 m³ |
Wysokość budynku 8.88 m |
Bryła budynku prosta bryła |
Strop żelbetowy |
Kąt nachylenia dachu 42 ° |
Szerokość budynku 13.65 m |
Koszty budowy 400-450 tys., tylko z kosztorysem |
Nowoczesny dom jednorodzinny z podpiwniczeniem i wygodnym garażem - projekt Similis V PG1 to doskonała propozycja dla osób szukających funkcjonalnych rozwiązań i solidnych materiałów. Sprawdź, jak prosta bryła, estetyczny dwuspadowy dach i praktyczny układ pomieszczeń mogą odmienić codzienność Twojej rodziny.
Projekt Similis V PG1 został opracowany z myślą o wygodzie użytkowania i wysokich parametrach technicznych. Idealnie sprawdzi się jako dom całoroczny, łącząc nowoczesny styl z przemyślaną funkcjonalnością.
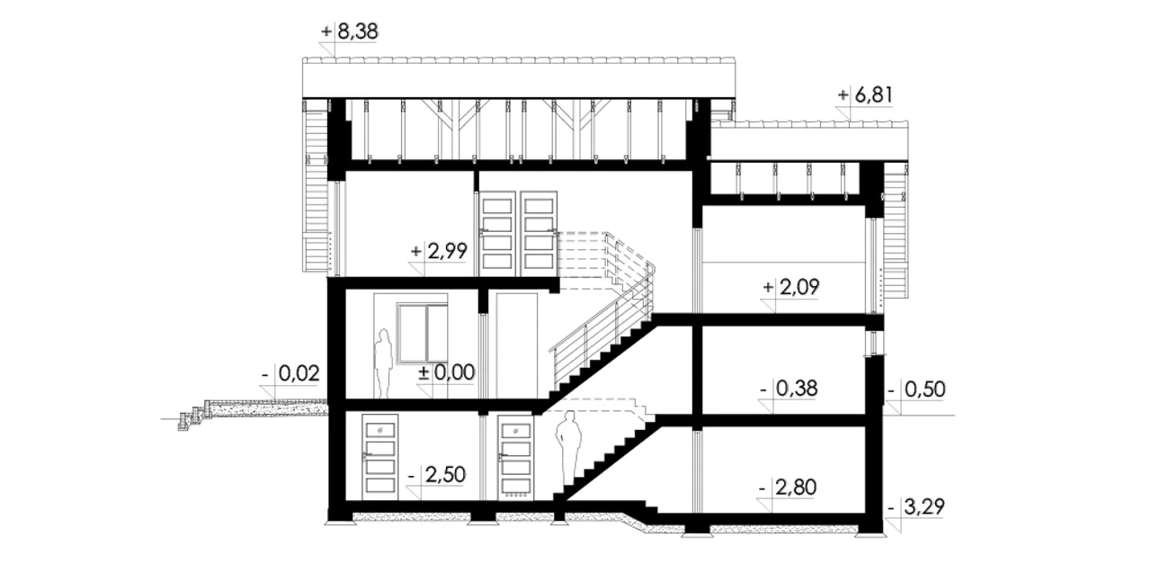
Projekt domu Similis V PG1 wyróżnia się przemyślanym układem pomieszczeń. Parter z czterema pokojami oferuje miejsce zarówno dla rodziny, jak i gości, a przestronna pralnia zwiększa wygodę użytkowania. Drewniany dach dwuspadowy, pokryty najwyższej klasy dachówką ceramiczną, gwarantuje trwałość i nowoczesną estetykę. Piwnica umożliwia stworzenie dodatkowych przestrzeni gospodarczych lub rekreacyjnych.
Żelbetowy monolityczny strop i solidne schody to detale, które czynią dom Similis V PG1 trwałym i bezpiecznym miejscem do życia. Okna i drzwi z PVC z roletami zewnętrznymi zapewniają efektywną ochronę cieplną i akustyczną. Garaż z uchylną bramą umożliwia wygodne użytkowanie codzienne, a kominek (opcjonalnie) pozwala na stworzenie wyjątkowego klimatu podczas zimowych wieczorów.
Nie zwlekaj - zamów projekt Similis V PG1 i stwórz dom, który będzie spełniał wszystkie oczekiwania Twojej rodziny. Odkryj, jak solidność konstrukcji i nowoczesne rozwiązania mogą podnieść jakość życia. Skontaktuj się i rozpocznij inwestycję już dziś!
Kupując projekt w technologii murowanej powinieneś budować dom murowany. Zupełna zmiana technologii na szkieletową wymaga przeprojektowania całego budynku ( zmieniają się obciążenia, fundamenty, konstrukcja dachu). Wydamy zgodę na takie przeprojektowanie jednak wiążę się to z dużymi kosztami. Istnieją firmy wykonawcze, które podejmują się zmiany technologii budowy bezpłatnie przy skorzystaniu z ich usług wykonawczych. Zdarza się, że pracownia architektoniczna przygotowuje warianty konkretnego projektu przewidując także inne technologie. Prosimy o sprawdzenie czy istnieje poszukiwana wersja projektu, w zakładce - warianty projektu.
Zwężenie/poszerzenie budynku* to nic innego jak zmiana w projekcie. Istnieje możliwość wprowadzenia takich zmian, we własnym zakresie (podczas adaptacji). *zwężenie/poszerzenie budynku nie powinno stanowić problemu w przypadku domów o dachu dwuspadowym jeśli wiąże się to z wydłużeniem/skróceniem kalenicy dachu.
Poznaj praktyczne porady ekspertów, które ułatwią Ci każdy etap budowy i od wyboru wymarzonego domu po jego wykończenie. Zyskaj pewność, że podejmujesz najlepsze decyzje dzięki sprawdzonym wskazówkom od specjalistów z planz.pl
Wycena szacunkowa, w kwotach netto, nie zawiera instalacji.
bezpłatnie (0zł)
przelew zwykły / PayNow
przy odbiorze
3-5 dni roboczych
Wybierz wygodny dla Ciebie czas kontaktu z naszym Doradcą Technicznym.