Sielanka 100 A bez garażu



Zawartość projektu
3 egzemplarze projektu archtektoniczno budowlanego + 3 egzemplarze projektu technicznego.
- Opis architektoniczno - budowlany
- Część rysunkowa (elewacje, rzuty, przekroje, zestawienie stolarki)
Projekt techniczny zawiera:
- Projekt konstrukcji
- Instalacje sanitarne + gazowe/ sanitarne + paliwo stałe
- instalacje elektryczne
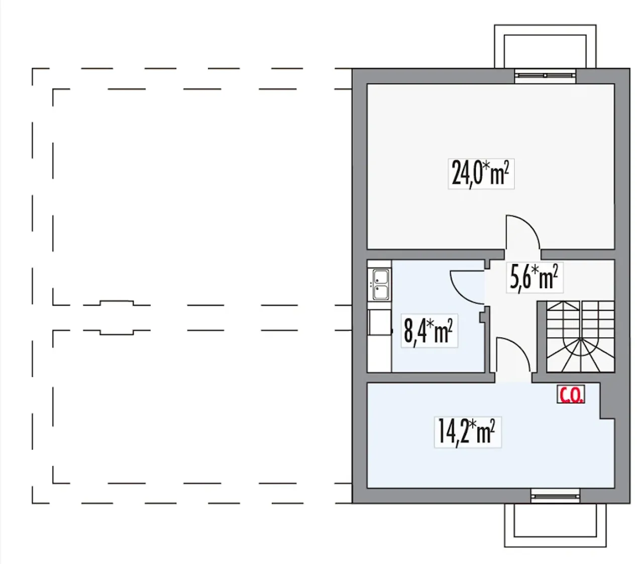
1. Wiatrołap | 4,50 m² |
2. Hol | 8,80 m² |
3. Salon | 39,30 m² |
4. Kuchnia | 11,30 m² |
5. Spiżarnia | 2,30 m² |
6. Wc | 2,30 m² |
7. Korytarz | 7,80 m² |
8. Pokój | 11,70 m² |
9. Sypialnia | 11,70 m² |
10. Schody | 2,00 m² |
11. łazienka | 7,10 m² |
12. Pokój | 11,70 m² |
Wypełnij formularz i otrzymaj rysunki w pdf z dokładnymi wymiarami budynku i pomieszczeń (długość, szerokość, wysokość) dla projektu Sielanka BP
Pow. użytkowa 118.5 m² |
Ilość pokoi 4 |
Powierzchnia zabudowy 153.9 m² |
Kondygnacje parterowy |
Garaż bez garażu |
Technologia murowany |
Szerokość działki 22.6 m |
Obiekt dom |
Typ domu jednorodzinny całoroczny |
Długość działki 18.4 m |
Styl budynku tradycyjny |
Strop gęstożebrowy |
Liczba łazieniek 1 |
Kąt nachylenia dachu 30 ° |
Kalenica równoległa do drogi |
Kominek kominek w projekcie |
Szerokość budynku 14.5 m |
Rodzaj dachu dwuspadowy |
Kotłownia duża kotłownia |
Funkcje dodatkowe z dwoma wejściami |
Długość budynku 10.4 m |
Przechowywanie w kuchni spiżarnia |
Piwnica bez podpiwniczenia |
Wysokość budynku 6.7 m |
Bryła budynku prosta bryła |
Koszty budowy 350-400 tys., tylko z kosztorysem |
Pow. użytkowa 118.5 m² |
Powierzchnia zabudowy 153.9 m² |
Garaż bez garażu |
Szerokość działki 22.6 m |
Typ domu jednorodzinny całoroczny |
Styl budynku tradycyjny |
Liczba łazieniek 1 |
Kalenica równoległa do drogi |
Szerokość budynku 14.5 m |
Kotłownia duża kotłownia |
Długość budynku 10.4 m |
Piwnica bez podpiwniczenia |
Bryła budynku prosta bryła |
Ilość pokoi 4 |
Kondygnacje parterowy |
Technologia murowany |
Obiekt dom |
Długość działki 18.4 m |
Strop gęstożebrowy |
Kąt nachylenia dachu 30 ° |
Kominek kominek w projekcie |
Rodzaj dachu dwuspadowy |
Funkcje dodatkowe z dwoma wejściami |
Przechowywanie w kuchni spiżarnia |
Wysokość budynku 6.7 m |
Koszty budowy 350-400 tys., tylko z kosztorysem |
Kupując projekt w technologii murowanej powinieneś budować dom murowany. Zupełna zmiana technologii na szkieletową wymaga przeprojektowania całego budynku ( zmieniają się obciążenia, fundamenty, konstrukcja dachu). Wydamy zgodę na takie przeprojektowanie jednak wiążę się to z dużymi kosztami. Istnieją firmy wykonawcze, które podejmują się zmiany technologii budowy bezpłatnie przy skorzystaniu z ich usług wykonawczych. Zdarza się, że pracownia architektoniczna przygotowuje warianty konkretnego projektu przewidując także inne technologie. Prosimy o sprawdzenie czy istnieje poszukiwana wersja projektu, w zakładce - warianty projektu.
Zwężenie/poszerzenie budynku* to nic innego jak zmiana w projekcie. Istnieje możliwość wprowadzenia takich zmian, we własnym zakresie (podczas adaptacji). *zwężenie/poszerzenie budynku nie powinno stanowić problemu w przypadku domów o dachu dwuspadowym jeśli wiąże się to z wydłużeniem/skróceniem kalenicy dachu.
Poznaj praktyczne porady ekspertów, które ułatwią Ci każdy etap budowy i od wyboru wymarzonego domu po jego wykończenie. Zyskaj pewność, że podejmujesz najlepsze decyzje dzięki sprawdzonym wskazówkom od specjalistów z planz.pl
Wycena szacunkowa, w kwotach netto, nie zawiera instalacji.
bezpłatnie (0zł)
przelew zwykły / PayNow
przy odbiorze
4-8 dni roboczych (jeśli projekt nie wymaga aktualizacji)
Wybierz wygodny dla Ciebie czas kontaktu z naszym Doradcą Technicznym.