Sezam



Wypełnij formularz i otrzymaj rysunki w pdf z dokładnymi wymiarami budynku i pomieszczeń (długość, szerokość, wysokość) dla projektu Sezam 2 G1
Pow. użytkowa 102.2 m² |
Ilość pokoi 4 |
Powierzchnia zabudowy 158.91 m² |
Kondygnacje parterowy |
Garaż 1 stanowisko |
Technologia murowany |
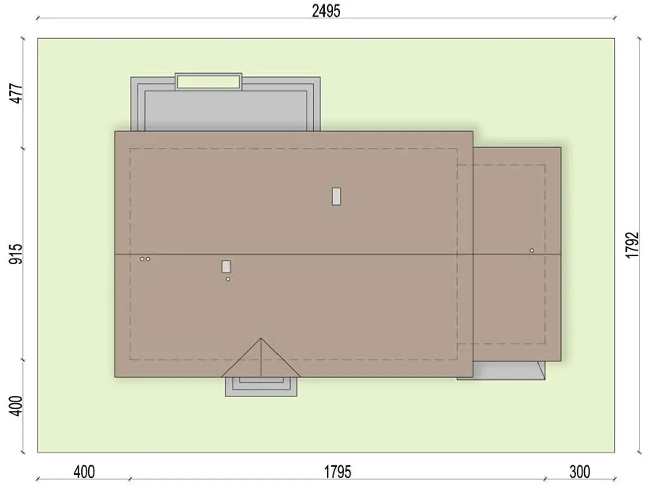
Szerokość działki 24.95 m |
Obiekt dom |
Typ domu jednorodzinny całoroczny |
Powierzchnia dachu 253 m² |
Długość działki 17.92 m |
Ogrzewanie gaz, paliwo stałe |
Wysokość budynku 6.97 m |
Kalenica równoległa do drogi |
Styl budynku nowoczesny |
Liczba łazieniek 1 |
Szerokość budynku 17.95 m |
Kominek kominek w projekcie |
Kąt nachylenia dachu 35 ° |
Długość budynku 9.15 m |
Piwnica bez podpiwniczenia |
Kubatura 762 m³ |
Rodzaj dachu dwuspadowy |
Pow. użytkowa 102.2 m² |
Powierzchnia zabudowy 158.91 m² |
Garaż 1 stanowisko |
Szerokość działki 24.95 m |
Typ domu jednorodzinny całoroczny |
Długość działki 17.92 m |
Wysokość budynku 6.97 m |
Styl budynku nowoczesny |
Szerokość budynku 17.95 m |
Kąt nachylenia dachu 35 ° |
Piwnica bez podpiwniczenia |
Rodzaj dachu dwuspadowy |
Ilość pokoi 4 |
Kondygnacje parterowy |
Technologia murowany |
Obiekt dom |
Powierzchnia dachu 253 m² |
Ogrzewanie gaz, paliwo stałe |
Kalenica równoległa do drogi |
Liczba łazieniek 1 |
Kominek kominek w projekcie |
Długość budynku 9.15 m |
Kubatura 762 m³ |
Odkryj projekt Sezam 2 G1 - przemyślany dom parterowy z wygodnym garażem, przeznaczony dla rodzin szukających nowoczesnych rozwiązań i solidnej technologii murowanej. Przestronna strefa dzienna, otwarty układ pomieszczeń i doskonałe warunki do mieszkania sprawiają, że dom oparty na tym projekcie doskonale wpisuje się w potrzeby osób ceniących funkcjonalność oraz estetykę budynku.
Sezam 2 G1 to propozycja dla inwestorów, którzy oczekują wygody, bezpieczeństwa oraz możliwości swobodnej adaptacji przestrzeni. Dzięki przemyślanej konstrukcji i doborze najlepszych materiałów, Twój przyszły dom będzie nie tylko praktyczny, ale i trwały na lata.
Przemyślana konstrukcja domu Sezam 2 G1 gwarantuje trwałość oraz bezpieczeństwo całej inwestycji. Fundamenty żelbetowe są stabilną bazą pod każdą bryłę, a ściany wykonane z ceramicznych pustaków to skuteczna bariera dla wilgoci i chłodu. Dzięki zastosowaniu stropu gęstożebrowego oraz drewnianej więźby dachowej, konstrukcja dachu uzyskuje lekkość i odpowiednią izolację. Dachówka ceramiczna nie tylko zdobi, ale również chroni i zwiększa trwałość pokrycia.
Całoroczny dom jednorodzinny Sezam 2 G1 oferuje uniwersalne opcje ogrzewania - gazowe lub na paliwo stałe - dzięki czemu możesz dobrać źródło ciepła do własnych preferencji. Parterowa forma budynku z kalenicą równoległą do drogi i praktycznym rozmieszczeniem pomieszczeń pozwala na wygodne poruszanie się i zagospodarowanie każdego zakątka. Dom nie ma podpiwniczenia, co znacząco przyspiesza czas budowy i ogranicza koszty fundamentów.
Nie zwlekaj - zamów projekt domu Sezam 2 G1 i zacznij tworzyć swoją własną, nowoczesną przestrzeń życiową już dziś!
Kupując projekt w technologii murowanej powinieneś budować dom murowany. Zupełna zmiana technologii na szkieletową wymaga przeprojektowania całego budynku ( zmieniają się obciążenia, fundamenty, konstrukcja dachu). Wydamy zgodę na takie przeprojektowanie jednak wiążę się to z dużymi kosztami. Istnieją firmy wykonawcze, które podejmują się zmiany technologii budowy bezpłatnie przy skorzystaniu z ich usług wykonawczych. Zdarza się, że pracownia architektoniczna przygotowuje warianty konkretnego projektu przewidując także inne technologie. Prosimy o sprawdzenie czy istnieje poszukiwana wersja projektu, w zakładce - warianty projektu.
Zwężenie/poszerzenie budynku* to nic innego jak zmiana w projekcie. Istnieje możliwość wprowadzenia takich zmian, we własnym zakresie (podczas adaptacji). *zwężenie/poszerzenie budynku nie powinno stanowić problemu w przypadku domów o dachu dwuspadowym jeśli wiąże się to z wydłużeniem/skróceniem kalenicy dachu.
Poznaj praktyczne porady ekspertów, które ułatwią Ci każdy etap budowy i od wyboru wymarzonego domu po jego wykończenie. Zyskaj pewność, że podejmujesz najlepsze decyzje dzięki sprawdzonym wskazówkom od specjalistów z planz.pl
bezpłatnie (0zł)
przelew zwykły / PayNow
przy odbiorze
3-5 dni roboczych (jeśli projekt nie wymaga aktualizacji)
Wybierz wygodny dla Ciebie czas kontaktu z naszym Doradcą Technicznym.