Tymek AP garaż



1. Wiatrołap | 7,81 m² |
2. Korytarz/komunikacja | 5,48 m² |
3. Kuchnia | 7,88 m² |
4. Spiżarnia | 2,92 m² |
5. Salon | 24,74 m² |
6. Garderoba | 2,76 m² |
7. Pokój | 8,01 m² |
8. łazienka | 3,01 m² |
9. Kotłownia | 5,75 m² |
10. Garaż | 20,22 m² |
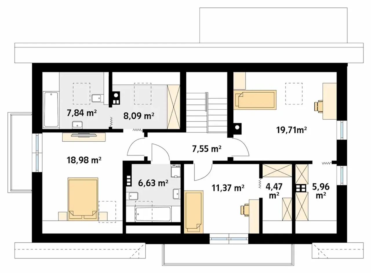
1. Korytarz/komunikacja | 7,51 m² |
2. Sypialnia | 13,61 m² |
3. Garderoba | 3,52 m² |
4. Garderoba | 3,38 m² |
5. Sypialnia | 11,31 m² |
6. łazienka | 4,93 m² |
7. Sypialnia | 13,96 m² |
8. Garderoba | 4,25 m² |
9. łazienka | 4,21 m² |
Wypełnij formularz i otrzymaj rysunki w pdf z dokładnymi wymiarami budynku i pomieszczeń (długość, szerokość, wysokość) dla projektu Sekwana
Ilość pokoi 5 |
Pow. użytkowa 134.74 m² |
Powierzchnia zabudowy 125.38 m² |
Kondygnacje parterowy+poddasze |
Garaż 1 stanowisko |
Technologia murowany |
Szerokość działki 22.69 m |
Obiekt dom |
Typ domu jednorodzinny całoroczny |
Strop żelbetowy |
Długość budynku 8.53 m |
Piwnica bez podpiwniczenia |
Kalenica równoległa do drogi |
Kubatura 809.66 m³ |
Rodzaj garażu w bryle |
Funkcje dodatkowe z lukarnami |
Powierzchnia dachu 202 m² |
Rodzaj dachu dwuspadowy |
Długość działki 17.53 m |
Wysokość budynku 7.88 m |
Przechowywanie w kuchni spiżarnia |
Bryła budynku prosta bryła |
Styl budynku nowoczesny |
Liczba łazieniek 3 |
Szerokość budynku 14.69 m |
Kominek kominek w projekcie |
Kąt nachylenia dachu 40 ° |
Koszty budowy 350-400 tys., tylko z kosztorysem |
Ilość pokoi 5 |
Powierzchnia zabudowy 125.38 m² |
Garaż 1 stanowisko |
Szerokość działki 22.69 m |
Typ domu jednorodzinny całoroczny |
Długość budynku 8.53 m |
Kalenica równoległa do drogi |
Rodzaj garażu w bryle |
Powierzchnia dachu 202 m² |
Długość działki 17.53 m |
Przechowywanie w kuchni spiżarnia |
Styl budynku nowoczesny |
Szerokość budynku 14.69 m |
Kąt nachylenia dachu 40 ° |
Pow. użytkowa 134.74 m² |
Kondygnacje parterowy+poddasze |
Technologia murowany |
Obiekt dom |
Strop żelbetowy |
Piwnica bez podpiwniczenia |
Kubatura 809.66 m³ |
Funkcje dodatkowe z lukarnami |
Rodzaj dachu dwuspadowy |
Wysokość budynku 7.88 m |
Bryła budynku prosta bryła |
Liczba łazieniek 3 |
Kominek kominek w projekcie |
Koszty budowy 350-400 tys., tylko z kosztorysem |
Kupując projekt w technologii murowanej powinieneś budować dom murowany. Zupełna zmiana technologii na szkieletową wymaga przeprojektowania całego budynku ( zmieniają się obciążenia, fundamenty, konstrukcja dachu). Wydamy zgodę na takie przeprojektowanie jednak wiążę się to z dużymi kosztami. Istnieją firmy wykonawcze, które podejmują się zmiany technologii budowy bezpłatnie przy skorzystaniu z ich usług wykonawczych. Zdarza się, że pracownia architektoniczna przygotowuje warianty konkretnego projektu przewidując także inne technologie. Prosimy o sprawdzenie czy istnieje poszukiwana wersja projektu, w zakładce - warianty projektu.
Zwężenie/poszerzenie budynku* to nic innego jak zmiana w projekcie. Istnieje możliwość wprowadzenia takich zmian, we własnym zakresie (podczas adaptacji). *zwężenie/poszerzenie budynku nie powinno stanowić problemu w przypadku domów o dachu dwuspadowym jeśli wiąże się to z wydłużeniem/skróceniem kalenicy dachu.
Poznaj praktyczne porady ekspertów, które ułatwią Ci każdy etap budowy i od wyboru wymarzonego domu po jego wykończenie. Zyskaj pewność, że podejmujesz najlepsze decyzje dzięki sprawdzonym wskazówkom od specjalistów z planz.pl
Wycena szacunkowa, w kwotach netto, nie zawiera instalacji.
bezpłatnie (0zł)
przelew zwykły / PayNow
przy odbiorze
3-5 dni roboczych (jeśli projekt nie jest koncepcją)
Wybierz wygodny dla Ciebie czas kontaktu z naszym Doradcą Technicznym.