Sara 2



Zawartość projektu
3 egzemplarze projektu archtektoniczno budowlanego + 3 egzemplarze projektu technicznego.
- Opis architektoniczno - budowlany
- Część rysunkowa (elewacje, rzuty, przekroje, zestawienie stolarki)
Projekt techniczny zawiera:
- Projekt konstrukcji
- Instalacje sanitarne + gazowe/ sanitarne + paliwo stałe
- instalacje elektryczne
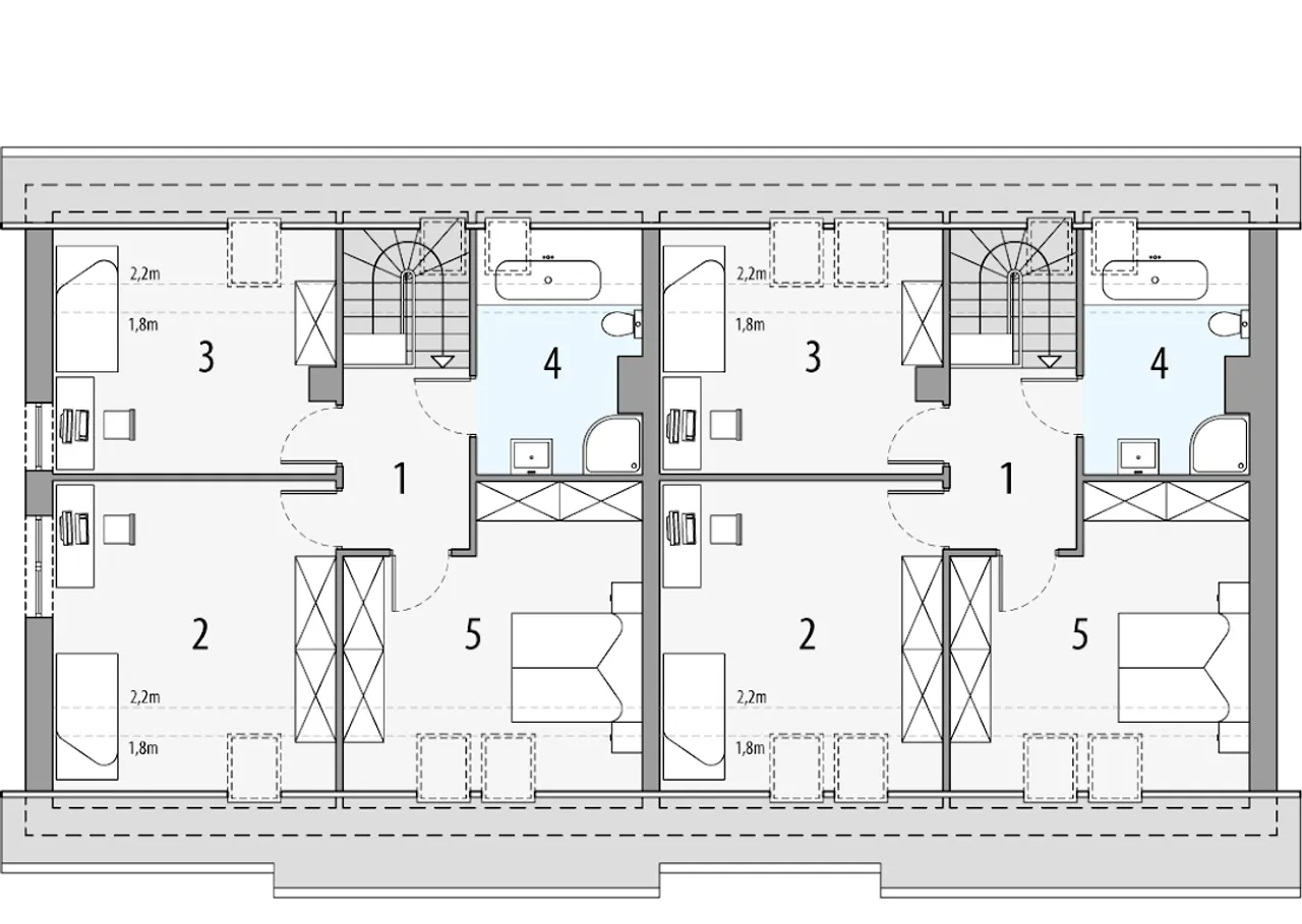
Wypełnij formularz i otrzymaj rysunki w pdf z dokładnymi wymiarami budynku i pomieszczeń (długość, szerokość, wysokość) dla projektu Sara 2 - dwulokalowy L.P
Pow. użytkowa 121.1 m² |
Powierzchnia zabudowy 175.18 m² |
Kondygnacje parterowy+poddasze |
Garaż bez garażu |
Technologia murowany |
Szerokość działki 13.33 m |
Obiekt dom |
Typ domu jednorodzinny całoroczny |
Wysokość budynku 8.79 m |
Liczba łazieniek 2 |
Piwnica bez podpiwniczenia |
Rodzaj dachu dwuspadowy |
Kąt nachylenia dachu 44 ° |
Długość działki 17.56 m |
Koszty budowy tylko z kosztorysem, 200-250 tys. |
Pow. użytkowa 121.1 m² |
Kondygnacje parterowy+poddasze |
Technologia murowany |
Obiekt dom |
Wysokość budynku 8.79 m |
Piwnica bez podpiwniczenia |
Kąt nachylenia dachu 44 ° |
Koszty budowy tylko z kosztorysem, 200-250 tys. |
Powierzchnia zabudowy 175.18 m² |
Garaż bez garażu |
Szerokość działki 13.33 m |
Typ domu jednorodzinny całoroczny |
Liczba łazieniek 2 |
Rodzaj dachu dwuspadowy |
Długość działki 17.56 m |
Kupując projekt w technologii murowanej powinieneś budować dom murowany. Zupełna zmiana technologii na szkieletową wymaga przeprojektowania całego budynku ( zmieniają się obciążenia, fundamenty, konstrukcja dachu). Wydamy zgodę na takie przeprojektowanie jednak wiążę się to z dużymi kosztami. Istnieją firmy wykonawcze, które podejmują się zmiany technologii budowy bezpłatnie przy skorzystaniu z ich usług wykonawczych. Zdarza się, że pracownia architektoniczna przygotowuje warianty konkretnego projektu przewidując także inne technologie. Prosimy o sprawdzenie czy istnieje poszukiwana wersja projektu, w zakładce - warianty projektu.
Zwężenie/poszerzenie budynku* to nic innego jak zmiana w projekcie. Istnieje możliwość wprowadzenia takich zmian, we własnym zakresie (podczas adaptacji). *zwężenie/poszerzenie budynku nie powinno stanowić problemu w przypadku domów o dachu dwuspadowym jeśli wiąże się to z wydłużeniem/skróceniem kalenicy dachu.
Poznaj praktyczne porady ekspertów, które ułatwią Ci każdy etap budowy i od wyboru wymarzonego domu po jego wykończenie. Zyskaj pewność, że podejmujesz najlepsze decyzje dzięki sprawdzonym wskazówkom od specjalistów z planz.pl
Wycena szacunkowa, w kwotach netto, nie zawiera instalacji.
bezpłatnie (0zł)
przelew zwykły / PayNow
przy odbiorze
4-8 dni roboczych (jeśli projekt nie wymaga aktualizacji)
Projekt domu Sara 2 - dwulokalowy L.P jawi się jako doskonała oaza dla poszukujących harmonii między nowoczesnym funkcjonalizmem a przytulnością. Dwulokalowa struktura tego projektu to idealne rozwiązanie dla tych, którzy pragną mieszkać blisko swoich bliskich, jednocześnie zachowując prywatność. Architektura domu z subtelnymi, ale nowoczesnymi liniami fasady roztacza atmosferę gościnności i ciepła. Wnętrze zaprojektowane w sposób considerate, z myślą o optymalnym wykorzystaniu przestrzeni, obiecuje komfort i funkcjonalność na co dzień, co jest kluczem do zaspokojenia życiowych potrzeb każdego domownika. Laterne, które przenikają fasadę, nie tylko dodają elegancji, ale również zapewniają obfitość naturalnego światła, co sprawia, że przestrzenie są zapraszające i pełne życia.
Wybierz wygodny dla Ciebie czas kontaktu z naszym Doradcą Technicznym.