Luana II Bis



Wypełnij formularz i otrzymaj rysunki w pdf z dokładnymi wymiarami budynku i pomieszczeń (długość, szerokość, wysokość) dla projektu Sambor G1 (bliźniak)
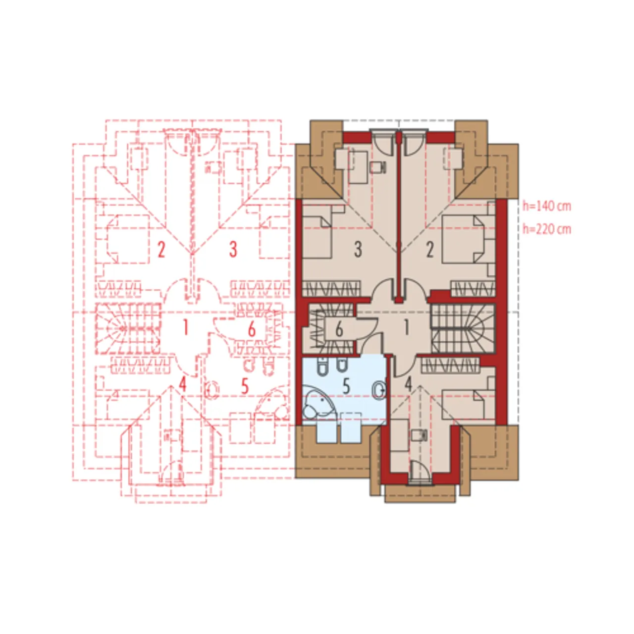
Ilość pokoi 4 |
Pow. użytkowa 111.49 m² |
Powierzchnia zabudowy 101.01 m² |
Kondygnacje parterowy+poddasze |
Garaż 1 stanowisko |
Technologia murowany |
Szerokość działki 12 m |
Obiekt dom |
Typ domu bliźniak i dwurodzinny |
Ogrzewanie gaz, paliwo stałe |
Wysokość budynku 9.33 m |
Rodzaj dachu dwuspadowy |
Bryła budynku prosta bryła |
Liczba łazieniek 2 |
Szerokość budynku 8 m |
Styl budynku nowoczesny |
Kominek kominek w projekcie |
Kąt nachylenia dachu 45 ° |
Strop gęstożebrowy |
Długość budynku 13.2 m |
Piwnica bez podpiwniczenia |
Kalenica równoległa do drogi |
Kubatura 382.93 m³ |
Funkcje dodatkowe z lukarnami |
Powierzchnia dachu 159 m² |
Rodzaj garażu w bryle |
Długość działki 21.2 m |
Koszty budowy 400-450 tys., tylko z kosztorysem |
Ilość pokoi 4 |
Powierzchnia zabudowy 101.01 m² |
Garaż 1 stanowisko |
Szerokość działki 12 m |
Typ domu bliźniak i dwurodzinny |
Wysokość budynku 9.33 m |
Bryła budynku prosta bryła |
Szerokość budynku 8 m |
Kominek kominek w projekcie |
Strop gęstożebrowy |
Piwnica bez podpiwniczenia |
Kubatura 382.93 m³ |
Powierzchnia dachu 159 m² |
Długość działki 21.2 m |
Pow. użytkowa 111.49 m² |
Kondygnacje parterowy+poddasze |
Technologia murowany |
Obiekt dom |
Ogrzewanie gaz, paliwo stałe |
Rodzaj dachu dwuspadowy |
Liczba łazieniek 2 |
Styl budynku nowoczesny |
Kąt nachylenia dachu 45 ° |
Długość budynku 13.2 m |
Kalenica równoległa do drogi |
Funkcje dodatkowe z lukarnami |
Rodzaj garażu w bryle |
Koszty budowy 400-450 tys., tylko z kosztorysem |
Kupując projekt w technologii murowanej powinieneś budować dom murowany. Zupełna zmiana technologii na szkieletową wymaga przeprojektowania całego budynku ( zmieniają się obciążenia, fundamenty, konstrukcja dachu). Wydamy zgodę na takie przeprojektowanie jednak wiążę się to z dużymi kosztami. Istnieją firmy wykonawcze, które podejmują się zmiany technologii budowy bezpłatnie przy skorzystaniu z ich usług wykonawczych. Zdarza się, że pracownia architektoniczna przygotowuje warianty konkretnego projektu przewidując także inne technologie. Prosimy o sprawdzenie czy istnieje poszukiwana wersja projektu, w zakładce - warianty projektu.
Zwężenie/poszerzenie budynku* to nic innego jak zmiana w projekcie. Istnieje możliwość wprowadzenia takich zmian, we własnym zakresie (podczas adaptacji). *zwężenie/poszerzenie budynku nie powinno stanowić problemu w przypadku domów o dachu dwuspadowym jeśli wiąże się to z wydłużeniem/skróceniem kalenicy dachu.
Poznaj praktyczne porady ekspertów, które ułatwią Ci każdy etap budowy i od wyboru wymarzonego domu po jego wykończenie. Zyskaj pewność, że podejmujesz najlepsze decyzje dzięki sprawdzonym wskazówkom od specjalistów z planz.pl
Wycena szacunkowa, w kwotach netto, nie zawiera instalacji.
bezpłatnie (0zł)
przelew zwykły / PayNow
przy odbiorze
3-5 dni roboczych (jeśli projekt nie wymaga aktualizacji)
Wybierz wygodny dla Ciebie czas kontaktu z naszym Doradcą Technicznym.