22 299 20 00 (pn-nd 9.30 do 19.30)

Gotowy projekt domu Salsa

ID: 17693
5720 2025-11-13
TANIEJ 1430 zł do 07.11.2025
5720 zł
(7150 zł brutto)
Obniżka ceny skończy się za:
Najniższa cena z 30 dni przed obniżką: 5720 zł
5720 2025-11-13
  • Promocja GRATISOWA do 10.11.2025 ➞ sprawdź zasady
  • GRATIS: Wiertarka
  • GRATIS: 16 projektów (drewutni, altany i wiaty)
  • GRATIS: tablica i dziennik budowy
  • GRATIS: przesyłka kurierska
  • Czas na zwrot:30 dni
Udostępnij projekt:

Rzuty gotowego projektu domu Salsa

1. Sień 4,31 m²
2. Holl 15,51 m²
3. Kuchnia 9,20 m²
4. Spiżarnia 1,34 m²
5. Wc 2,00 m²
6. Salon + jadalnia 40,05 m²
7. Pokój/ gabinet 9,30 m²
8. Kotłownia 4,14 m²
9. Garaż 33,91 m²
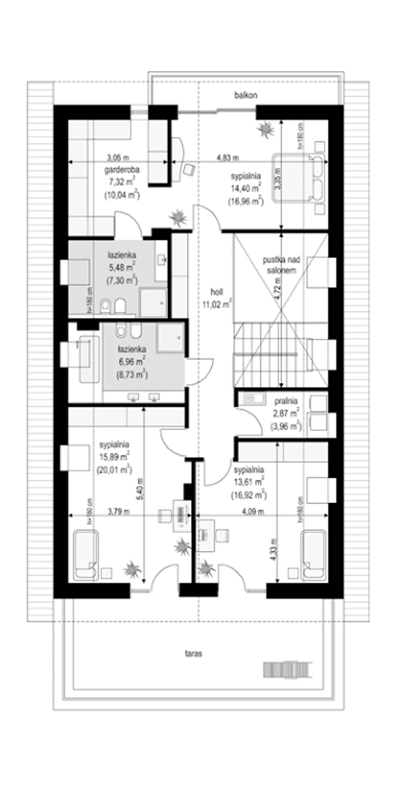
1. Holl 11,02 m²
2. Sypialnia 14,40 (16,96) m²
3. Garderoba 7,32 (10,04) m²
4. łazienka 5,48 (7,30) m²
5. łazienka 6,96 (8,73) m²
6. Sypialnia 15,89 (20,01) m²
7. Sypialnia 13,61 (16,92) m²
8. Pralnia 2,87 (3,96) m²

Zapoznaj się ze szczegółami projektu - pobierz bezpłatne rysunki do: Salsa

Wypełnij formularz i otrzymaj rysunki w pdf z dokładnymi wymiarami budynku i pomieszczeń (długość, szerokość, wysokość) dla projektu Salsa

Parametry Techniczne gotowego projektu domu Salsa

Pow. użytkowa 158.62 m²
Ilość pokoi 5
Kondygnacje parterowy+poddasze
Garaż 2 stanowiska
Technologia murowany
Szerokość działki 16.94 m
Obiekt dom
Typ domu jednorodzinny całoroczny
Kubatura 726 m³
Styl budynku nowoczesny
Piwnica bez podpiwniczenia
Kąt nachylenia dachu 40 °
Powierzchnia dachu 219.57 m²
Wysokość budynku 8.55 m
Długość działki 26.53 m
Strop żelbetowy
Ep 67.4
Rodzaj garażu z przodu
Ogrzewanie gaz, paliwo stałe
Liczba łazieniek 2
Funkcje dodatkowe z pralnią
Kalenica prostopadła do drogi
Ek 55.5
Rodzaj dachu dwuspadowy
Szerokość budynku 8.94 m
Kominek kominek w projekcie
Przechowywanie w kuchni spiżarnia
Długość budynku 18.53 m
Bryła budynku prosta bryła
Taras z tarasem
Koszty budowy 400-450 tys., tylko z kosztorysem

Energia i ogrzewanie gotowego projektu domu Salsa

Źródło ogrzewania:
gaz
paliwo stałe
Możliwość dokupienia dodatku zmieniającego źródło ciepła:
- Aneks na paliwo stałe
- Gruntowa pompa ciepła
- Powietrzna pompa ciepła
Dodatek dostępny w formularzu zamówienia
Wentylacja: Grawitacyjna
Parametry energetyczne:
Ep: 67.4 kWh/(m²rok)
Ek: 55.5 kWh/(m²rok)
Euco: 44.8 kWh/(m²rok)

Nasze prawdziwe opinie z Google

Opis projektu domu Salsa

Prezentujemy gotowy projekt domu jednorodzinnego o nazwie Salsa. Projekt przedstawia dom parterowy z użytkowym poddaszem, wykonany w technologii murowanej - tradycyjnej. Gotowy projekt Salsa ma garaż dwustanowiskowy. W budynku tym rozplanowano dwie łazienki, a dom nie będzie miał piwnicy.Salsa to dom przykryty dachem dwuspadowym, a całość jest zachowana w nowoczesnej stylistyce wykończenia. Dom wybudowany na podstawie projektu Salsa to dom jednorodzinny całoroczny ma garaż dwustanowiskowy.

Technologia wykonania:

  • Fundamenty: betonowe ławy i ściany fundamentowe z bloczków betonowych.
  • Ściany zewnętrzne: ściany murowane – pustaki porotherm 25 + styropian.
  • Strop: żelbetowy monolityczny.
  • Elewacje: tynk cienkowarstwowy na styropianie.
  • Pokrycie dachu: dachówka ceramiczna.

Częste pytania

Czy projekty z Planz.pl są kompletne?

Tak. Projekty dostępne na Planz.pl zawierają pełną dokumentację potrzebną do uzyskania pozwolenia na budowę i stanowią gwarancję sprawnej realizacji budowy.

Jesteśmy oficjalnym partnerem ponad 50 pracowni architektonicznych z całej Polski - dlatego każdy projekt pochodzi wyłącznie od autorów zrzeszonych w Izbie Architektów RP. 

Planz.pl to polska firma działającą na rynku od 12 lat. Mamy tysiące zadowolonych klientów, doskonałe opinie i oferujemy wsparcie również po zakupie, doradzamy, pomagamy w adaptacji i pozostajemy w kontakcie na każdym etapie inwestycji.

Dodatkowo do każdego projektu dodajemy tablicę informacyjną, dziennik budowy oraz 16 projektów elektronicznych drewnianej architektury ogrodowej. A dzięki naszej współpracy z markami Blaupunkt i PRIME3 oferujemy możliwość otrzymania sprzętu elektrycznego w formie atrakcyjnego gratisu.

Wybierając Planz.pl, otrzymujesz ten sam oryginalny projekt od autora, wzbogacony o realne dodatki, które ułatwiają rozpoczęcie budowy.

Czy mogę wprowadzić zmiany w projekcie?

Co zrobić gdy wybrany dom nie mieści się na działce?

Jakie zmiany można wprowadzić w projekcie?

Porady ekspertów

Poznaj praktyczne porady ekspertów, które ułatwią Ci każdy etap budowy i od wyboru wymarzonego domu po jego wykończenie. Zyskaj pewność, że podejmujesz najlepsze decyzje dzięki sprawdzonym wskazówkom od specjalistów z planz.pl

Co zawiera projekt

  • ✓ 3 x projekt architektoniczno-budowlany ➞ szczegóły
  • ✓ Projekty techniczne ➞ szczegóły
  • ✓ charakterystyka energetyczna (do projektów domów)
  • ✓ zgoda na zmiany w projekcie ➞ szczegóły
  • ✓ GRATIS: Wiertarka (do projektów w cenie od 3000 zł)
  • ✓ GRATIS: 16 projektów (drewutni, altany i wiaty)
  • ✓ GRATIS: tablica i dziennik budowy
  • ✓ GRATIS: przesyłka kurierska

Dodatki do projektu Salsa

Dodatki możesz kupić razem z projektem lub dokupić po czasie

[MG] Pakiet energooszczędny (0 zł)

[MG] Pakiet kotłownia na paliwo stałe (550 zł)

[MG] Kosztorys inwestorski (600 zł)

[MG] Pakiet instalacja fotowoltaiczna (550 zł)

[MG] Projekt instalacji odkurzania centralnego (550 zł)

[MG] Wersja elektroniczna projektu (600 zł)

[MG] Pakiet instalacja solarna (550 zł)

[MG] Ogrzewanie podłogowe (550 zł)

[MG] Pakiet pompa ciepła (550 zł)

[MG] Pakiet klimatyzacja (550 zł)

[MG] Pakiet wentylacja mechaniczna i kominek DGP (550 zł)

[MG] Pakiet płaszcz wodny (550 zł)

[MG] Projekt szamba (0 zł)

[MG] Dodatkowy egzemplarz (650 zł)

[Planz] Tablica budowlana (0 zł)

[Planz] Dziennik budowy (0 zł)

[Planz] Wiertarka udarowa (0 zł)

[Planz] Zgoda na zmiany w projekcie (0 zł)

[Planz] Projekty architektury ogrodowej (0 zł)

[Planz] Charakterystyka energetyczna, tylko dla domów całorocznych (0 zł)

Wysyłka i płatność za projekt Salsa

Koszty wysyłki

bezpłatnie (0zł)

Formy płatności

przelew zwykły / PayNow
przy odbiorze

Czas oczekiwania

3-10 dni roboczych

 

Podobne projekty do domu Salsa

TANIEJ O 205 zł
4099 zł 3894 zł

Dolores 2

powierzchnia 168.38 m²
technologia murowany
stanowisk w garażu 2 stanowiska
kondygnacja parterowy+poddasze
Zobacz projekt

Szacunkowy kosztorys dla projektu Salsa

Stan surowy zamknięty 257000 zł
Stan surowy zamknięty
Stan deweloperski 419000 zł
Stan deweloperski

Wycena szacunkowa, w kwotach netto, nie zawiera instalacji.

PRACOWNIA: MG Projekt Michał Gąsiorowski