Rodrigo II G1



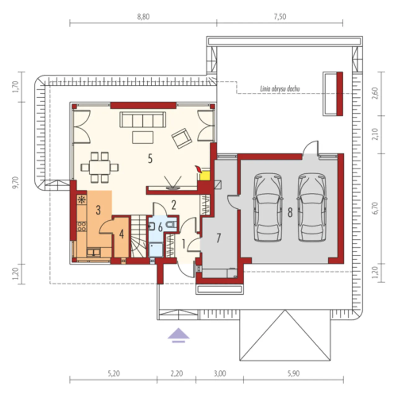
1. Wiatrołap | 3,14 m² |
2. Hol | 10,23 m² |
3. Kuchnia | 7,58 m² |
4. Spiżarnia | 2,21 m² |
5. Pokój dzienny, jadalnia | 37,93 m² |
6. łazienka | 2,72 m² |
7. Pom. gospodarcze | 11,68 m² |
8. Garaż | 32,67 m² |
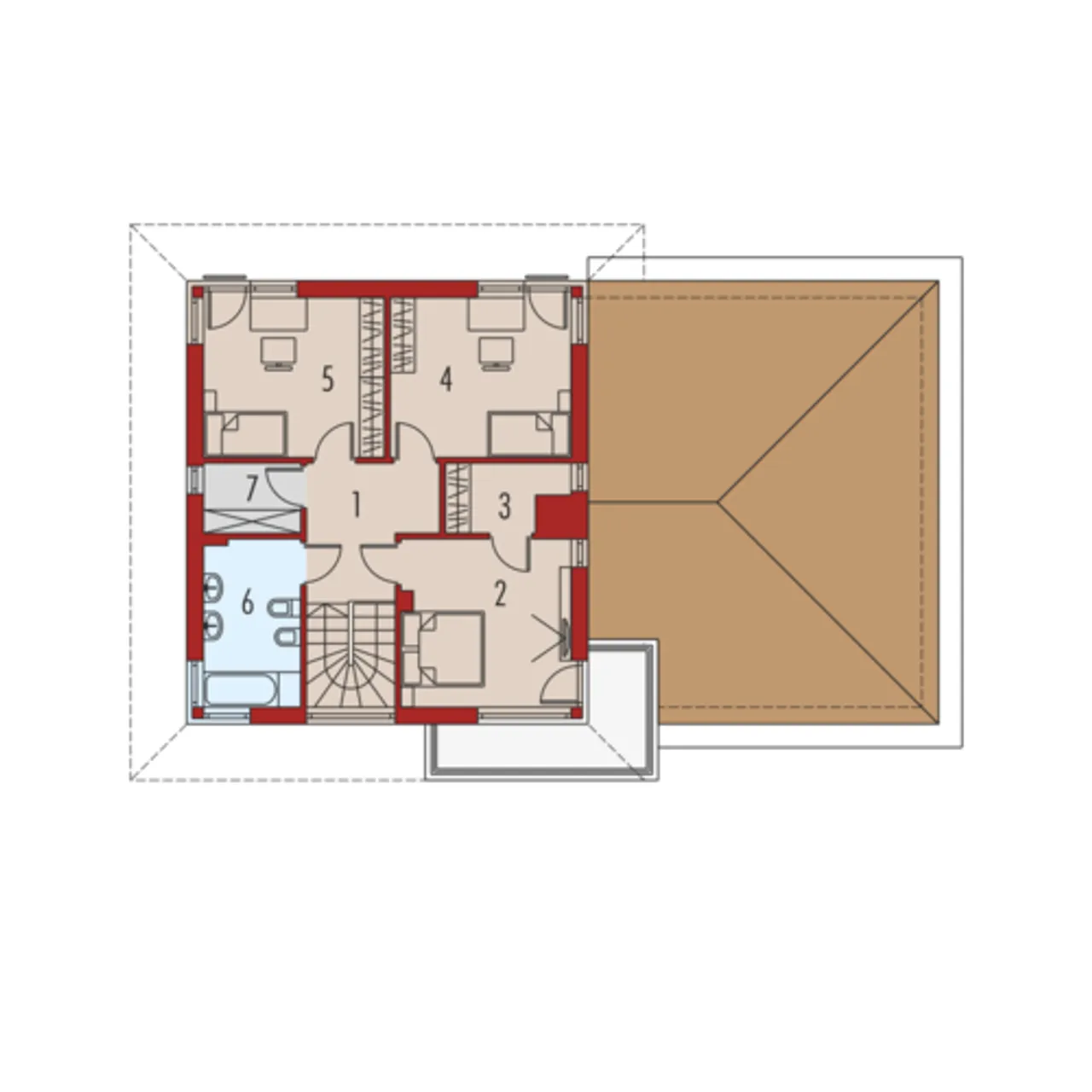
1. Korytarz | 6,99 m² |
2. Sypialnia | 12,93 m² |
3. Garderoba | 3,30 m² |
4. Sypialnia | 13,06 m² |
5. Sypialnia | 13,06 m² |
6. łazienka | 7,28 m² |
7. Pom. gospodarcze | 3,03 m² |
Wypełnij formularz i otrzymaj rysunki w pdf z dokładnymi wymiarami budynku i pomieszczeń (długość, szerokość, wysokość) dla projektu Rodrigo G2 Leca® Dom
Pow. użytkowa 122.65 m² |
Ilość pokoi 3 |
Powierzchnia zabudowy 160.95 m² |
Kondygnacje piętrowy |
Garaż 2 stanowiska |
Technologia murowany |
Szerokość działki 23.1 m |
Obiekt dom |
Typ domu jednorodzinny całoroczny |
Powierzchnia dachu 198.5 m² |
Przechowywanie w kuchni spiżarnia |
Długość działki 22.1 m |
Ogrzewanie gaz, paliwo stałe, pompa ciepła |
Wysokość budynku 8.72 m |
Liczba łazieniek 1 |
Styl budynku nowoczesny |
Kominek kominek w projekcie |
Strop gęstożebrowy |
Szerokość budynku 9.5 m |
Taras z tarasem |
Kąt nachylenia dachu 22 ° |
Kalenica prostopadła do drogi |
Długość budynku 15.7 m |
Piwnica bez podpiwniczenia |
Kubatura 528.17 m³ |
Rodzaj dachu wielospadowy |
Koszty budowy 300-350 tys., tylko z kosztorysem |
Pow. użytkowa 122.65 m² |
Powierzchnia zabudowy 160.95 m² |
Garaż 2 stanowiska |
Szerokość działki 23.1 m |
Typ domu jednorodzinny całoroczny |
Przechowywanie w kuchni spiżarnia |
Ogrzewanie gaz, paliwo stałe, pompa ciepła |
Liczba łazieniek 1 |
Kominek kominek w projekcie |
Szerokość budynku 9.5 m |
Kąt nachylenia dachu 22 ° |
Długość budynku 15.7 m |
Kubatura 528.17 m³ |
Koszty budowy 300-350 tys., tylko z kosztorysem |
Ilość pokoi 3 |
Kondygnacje piętrowy |
Technologia murowany |
Obiekt dom |
Powierzchnia dachu 198.5 m² |
Długość działki 22.1 m |
Wysokość budynku 8.72 m |
Styl budynku nowoczesny |
Strop gęstożebrowy |
Taras z tarasem |
Kalenica prostopadła do drogi |
Piwnica bez podpiwniczenia |
Rodzaj dachu wielospadowy |
Kupując projekt w technologii murowanej powinieneś budować dom murowany. Zupełna zmiana technologii na szkieletową wymaga przeprojektowania całego budynku ( zmieniają się obciążenia, fundamenty, konstrukcja dachu). Wydamy zgodę na takie przeprojektowanie jednak wiążę się to z dużymi kosztami. Istnieją firmy wykonawcze, które podejmują się zmiany technologii budowy bezpłatnie przy skorzystaniu z ich usług wykonawczych. Zdarza się, że pracownia architektoniczna przygotowuje warianty konkretnego projektu przewidując także inne technologie. Prosimy o sprawdzenie czy istnieje poszukiwana wersja projektu, w zakładce - warianty projektu.
Zwężenie/poszerzenie budynku* to nic innego jak zmiana w projekcie. Istnieje możliwość wprowadzenia takich zmian, we własnym zakresie (podczas adaptacji). *zwężenie/poszerzenie budynku nie powinno stanowić problemu w przypadku domów o dachu dwuspadowym jeśli wiąże się to z wydłużeniem/skróceniem kalenicy dachu.
Poznaj praktyczne porady ekspertów, które ułatwią Ci każdy etap budowy i od wyboru wymarzonego domu po jego wykończenie. Zyskaj pewność, że podejmujesz najlepsze decyzje dzięki sprawdzonym wskazówkom od specjalistów z planz.pl
Wycena szacunkowa, w kwotach netto, nie zawiera instalacji.
bezpłatnie (0zł)
przelew zwykły / PayNow
przy odbiorze
3-5 dni roboczych (jeśli projekt nie wymaga aktualizacji)
Wybierz wygodny dla Ciebie czas kontaktu z naszym Doradcą Technicznym.