Tymek AP garaż



1. Wiatrołap | 4,70 m² |
2. Hall | 8,20 m² |
3. Pokój dzienny z kuchnią | 36,30 m² |
4. Pokój | 10,40 m² |
5. Wc | 1,50 m² |
6. Spiżarka | 1,70 m² |
7. Pom. gospodarcze | 6,20 m² |
8. Garaż | 19,30 m² |
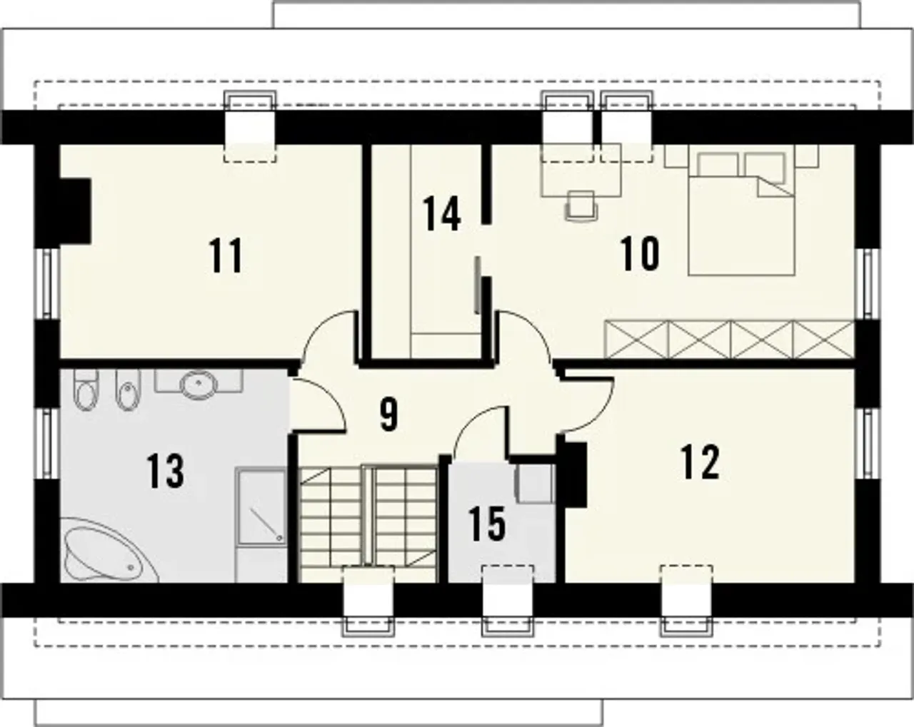
1. Hall | 5,60 m² |
2. Pokój | 16,10 (21,40) m² |
3. Pokój | 13,00 (17,30) m² |
4. Pokój | 12,50 (16,70) m² |
5. łazienka | 10,10 (13,40) m² |
6. Garderoba | 4,90 (6,50) m² |
7. Pralnia | 2,40 (4,00) m² |
Wypełnij formularz i otrzymaj rysunki w pdf z dokładnymi wymiarami budynku i pomieszczeń (długość, szerokość, wysokość) dla projektu Rewers
Pow. użytkowa 133.8 m² |
Ilość pokoi 5 |
Powierzchnia zabudowy 132.7 m² |
Kondygnacje parterowy+poddasze |
Garaż 1 stanowisko |
Technologia murowany |
Szerokość działki 20.8 m |
Obiekt dom |
Typ domu jednorodzinny całoroczny |
Wysokość budynku 8.08 m |
Przechowywanie w kuchni spiżarnia |
Długość działki 17 m |
Bryła budynku prosta bryła |
Funkcje dodatkowe z pralnią |
Styl budynku nowoczesny |
Liczba łazieniek 1 |
Kominek kominek w projekcie |
Kąt nachylenia dachu 40 ° |
Szerokość budynku 12.8 m |
Kotłownia duża kotłownia |
Długość budynku 8.6 m |
Rodzaj garażu w bryle |
Piwnica bez podpiwniczenia |
Strop gęstożebrowy |
Kubatura 630 m³ |
Rodzaj dachu dwuspadowy |
Kalenica równoległa do drogi |
Koszty budowy 300-350 tys., tylko z kosztorysem |
Pow. użytkowa 133.8 m² |
Powierzchnia zabudowy 132.7 m² |
Garaż 1 stanowisko |
Szerokość działki 20.8 m |
Typ domu jednorodzinny całoroczny |
Przechowywanie w kuchni spiżarnia |
Bryła budynku prosta bryła |
Styl budynku nowoczesny |
Kominek kominek w projekcie |
Szerokość budynku 12.8 m |
Długość budynku 8.6 m |
Piwnica bez podpiwniczenia |
Kubatura 630 m³ |
Kalenica równoległa do drogi |
Ilość pokoi 5 |
Kondygnacje parterowy+poddasze |
Technologia murowany |
Obiekt dom |
Wysokość budynku 8.08 m |
Długość działki 17 m |
Funkcje dodatkowe z pralnią |
Liczba łazieniek 1 |
Kąt nachylenia dachu 40 ° |
Kotłownia duża kotłownia |
Rodzaj garażu w bryle |
Strop gęstożebrowy |
Rodzaj dachu dwuspadowy |
Koszty budowy 300-350 tys., tylko z kosztorysem |
Kupując projekt w technologii murowanej powinieneś budować dom murowany. Zupełna zmiana technologii na szkieletową wymaga przeprojektowania całego budynku ( zmieniają się obciążenia, fundamenty, konstrukcja dachu). Wydamy zgodę na takie przeprojektowanie jednak wiążę się to z dużymi kosztami. Istnieją firmy wykonawcze, które podejmują się zmiany technologii budowy bezpłatnie przy skorzystaniu z ich usług wykonawczych. Zdarza się, że pracownia architektoniczna przygotowuje warianty konkretnego projektu przewidując także inne technologie. Prosimy o sprawdzenie czy istnieje poszukiwana wersja projektu, w zakładce - warianty projektu.
Zwężenie/poszerzenie budynku* to nic innego jak zmiana w projekcie. Istnieje możliwość wprowadzenia takich zmian, we własnym zakresie (podczas adaptacji). *zwężenie/poszerzenie budynku nie powinno stanowić problemu w przypadku domów o dachu dwuspadowym jeśli wiąże się to z wydłużeniem/skróceniem kalenicy dachu.
Poznaj praktyczne porady ekspertów, które ułatwią Ci każdy etap budowy i od wyboru wymarzonego domu po jego wykończenie. Zyskaj pewność, że podejmujesz najlepsze decyzje dzięki sprawdzonym wskazówkom od specjalistów z planz.pl
Wycena szacunkowa, w kwotach netto, nie zawiera instalacji.
bezpłatnie (0zł)
przelew zwykły / PayNow
przy odbiorze
3-5 dni roboczych (jeśli projekt nie wymaga aktualizacji)
Projekt domu "Rewers Krajobrazy" jest imponujący i wyjątkowo przemyślany. Jego nowoczesna, a jednocześnie ciepła i przytulna estetyka, idealnie wpisuje się w marzenia o idealnym domu dla rodziny. Koncepcja domu z nietuzinkowym tarasem gwarantuje spędzanie czasu na świeżym powietrzu, co jest niewątpliwym atutem tego projektu.
Wybierz wygodny dla Ciebie czas kontaktu z naszym Doradcą Technicznym.