Tymek AP garaż



Zawartość projektu
3 egzemplarze projektu archtektoniczno budowlanego + 3 egzemplarze projektu technicznego.
- opis techniczny (wraz z analizą techniczną, środowiskową i ekonomiczną)
- rzuty wszystkich kondygnacji- pokazuje rozmieszczenie poszczególnych pomieszczeń i ich wymiary, powierzchnie, rozmieszczenie ścian, rozmieszczenie otworów drzwiowych, okiennych, urządzeń kuchennych i sanitarnych
- rzut więźby dachowej - pokazuje układ elementów konstrukcyjnych dachu i ich przekroje, zestawienie elementów więźby dachowej
- rzut dachu - ukazuje jego kształt, wymiary, kąt nachylenia połaci, rozmieszczenie okien połaciowych, lukarn, świetlików i rur spustowych, pokazuje rozmieszczenie kominów i informuje o sposobie odwodnienia: rozmieszczeniu i rozmiarach rynien
- przekroje - pokazują wszystkie elementy budynku po przecięciu go wzdłuż lub w poprzek od dachu do fundamentów tj. warstwy podłogi, stropów i dachu
- elewacje - pokazują dokładny wygląd domu od frontu, z tyłu i z boków
Dodatkowo w projekcie znajduje się:
- aksonometria więźby dachowej - przedstawia widok aksonometryczny więźby i jej elementów (dla dachów skomplikowanych)
- zestawienia stolarki okiennej i drzwiowej - wykazy okien i drzwi zawartych w projekcie i sposób ich otwierania
Projekt techniczny zawiera:
- projekt konstrukcji: zawiera opis techniczny, obliczenia statyczno-wytrzymałościowe, rzuty fundamentów i płyt stropowych w skali 1:50, rysunki detali konstrukcyjnych (zbrojenie schodów, słupów, wieńców, nadproży), zestawienia stali konstrukcyjnej
- projekt instalacji sanitarnych: zawiera opis techniczny oraz rysunki z rozmieszczeniem elementów instalacji: wodno-kanalizacyjnej, centralnego ogrzewania, gazowej - w skali 1:50
- projekt instalacji elektrycznej: zawiera opis techniczny, schemat ideowy oraz rysunki z rozmieszczeniem elementów instalacji: wodno-kanalizacyjnej, centralnego ogrzewania, gazowej - w skali 1:50 oraz opis zastosowanych rozwiązań
- projekt instalacji wentylacji mechanicznej (o ile występuje): zawiera opis techniczny oraz rysunki z rozmieszczeniem elementów instalacji
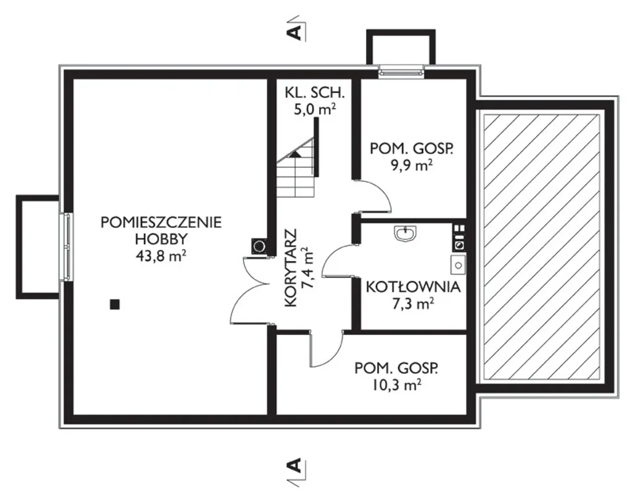
1. Klatka schodowa | 5,00 m² |
2. Korytarz | 8,40 m² |
3. Kotłownia | 7,40 m² |
4. Pokój hobby | 43,90 m² |
5. Pomieszczenie gospodarcze | 10,30 m² |
6. Pomieszczenie gospodarcze | 9,90 m² |
1. Gabinet | 8,70 m² |
2. Garaż | 18,70 m² |
3. Hol | 7,20 m² |
4. Klatka schodowa | 2,90 m² |
5. Kuchnia | 10,30 m² |
6. łazienka | 4,30 m² |
7. Pokój | 9,90 m² |
8. Pokój dzienny | 30,30 m² |
9. Pomieszczenie gospodarcze | 4,30 m² |
10. Sień | 4,00 m² |
11. Spiżarka | 3,00 m² |
1. Klatka schodowa | 2,90 (2,90) m² |
2. łazienka | 7,90 (7,90) m² |
3. Pokój | 13,40 (16,70) m² |
4. Pokój | 13,70 (17,00) m² |
5. Pralnia | 2,00 (4,30) m² |
6. Przedpokój | 5,50 (5,50) m² |
7. Sypialnia | 14,00 (17,90) m² |
Wypełnij formularz i otrzymaj rysunki w pdf z dokładnymi wymiarami budynku i pomieszczeń (długość, szerokość, wysokość) dla projektu Renata
Ilość pokoi 6 |
Pow. użytkowa 134.2 m² |
Powierzchnia zabudowy 133.9 m² |
Kondygnacje parterowy+poddasze |
Garaż 1 stanowisko |
Technologia murowany |
Szerokość działki 22.7 m |
Obiekt dom |
Typ domu jednorodzinny całoroczny |
Kubatura 927.2 m³ |
Rodzaj garażu przyklejony |
Powierzchnia dachu 170.1 m² |
Rodzaj dachu dwuspadowy |
Długość działki 19.6 m |
Wysokość budynku 8.8 m |
Przechowywanie w kuchni spiżarnia |
Bryła budynku prosta bryła |
Liczba łazieniek 2 |
Styl budynku nowoczesny |
Kominek kominek w projekcie |
Kalenica równoległa do drogi |
Szerokość budynku 14.7 m |
Kotłownia duża kotłownia |
Kąt nachylenia dachu 40 ° |
Funkcje dodatkowe z pralnią |
Długość budynku 9.6 m |
Piwnica z podpiwniczeniem |
Ilość pokoi 6 |
Powierzchnia zabudowy 133.9 m² |
Garaż 1 stanowisko |
Szerokość działki 22.7 m |
Typ domu jednorodzinny całoroczny |
Rodzaj garażu przyklejony |
Rodzaj dachu dwuspadowy |
Wysokość budynku 8.8 m |
Bryła budynku prosta bryła |
Styl budynku nowoczesny |
Kalenica równoległa do drogi |
Kotłownia duża kotłownia |
Funkcje dodatkowe z pralnią |
Piwnica z podpiwniczeniem |
Pow. użytkowa 134.2 m² |
Kondygnacje parterowy+poddasze |
Technologia murowany |
Obiekt dom |
Kubatura 927.2 m³ |
Powierzchnia dachu 170.1 m² |
Długość działki 19.6 m |
Przechowywanie w kuchni spiżarnia |
Liczba łazieniek 2 |
Kominek kominek w projekcie |
Szerokość budynku 14.7 m |
Kąt nachylenia dachu 40 ° |
Długość budynku 9.6 m |
Kupując projekt w technologii murowanej powinieneś budować dom murowany. Zupełna zmiana technologii na szkieletową wymaga przeprojektowania całego budynku ( zmieniają się obciążenia, fundamenty, konstrukcja dachu). Wydamy zgodę na takie przeprojektowanie jednak wiążę się to z dużymi kosztami. Istnieją firmy wykonawcze, które podejmują się zmiany technologii budowy bezpłatnie przy skorzystaniu z ich usług wykonawczych. Zdarza się, że pracownia architektoniczna przygotowuje warianty konkretnego projektu przewidując także inne technologie. Prosimy o sprawdzenie czy istnieje poszukiwana wersja projektu, w zakładce - warianty projektu.
Zwężenie/poszerzenie budynku* to nic innego jak zmiana w projekcie. Istnieje możliwość wprowadzenia takich zmian, we własnym zakresie (podczas adaptacji). *zwężenie/poszerzenie budynku nie powinno stanowić problemu w przypadku domów o dachu dwuspadowym jeśli wiąże się to z wydłużeniem/skróceniem kalenicy dachu.
Poznaj praktyczne porady ekspertów, które ułatwią Ci każdy etap budowy i od wyboru wymarzonego domu po jego wykończenie. Zyskaj pewność, że podejmujesz najlepsze decyzje dzięki sprawdzonym wskazówkom od specjalistów z planz.pl
bezpłatnie (0zł)
przelew zwykły / PayNow
przy odbiorze
2-5 dni roboczych (jeśli projekt nie wymaga aktualizacji)
Wybierz wygodny dla Ciebie czas kontaktu z naszym Doradcą Technicznym.