Tymek AP garaż



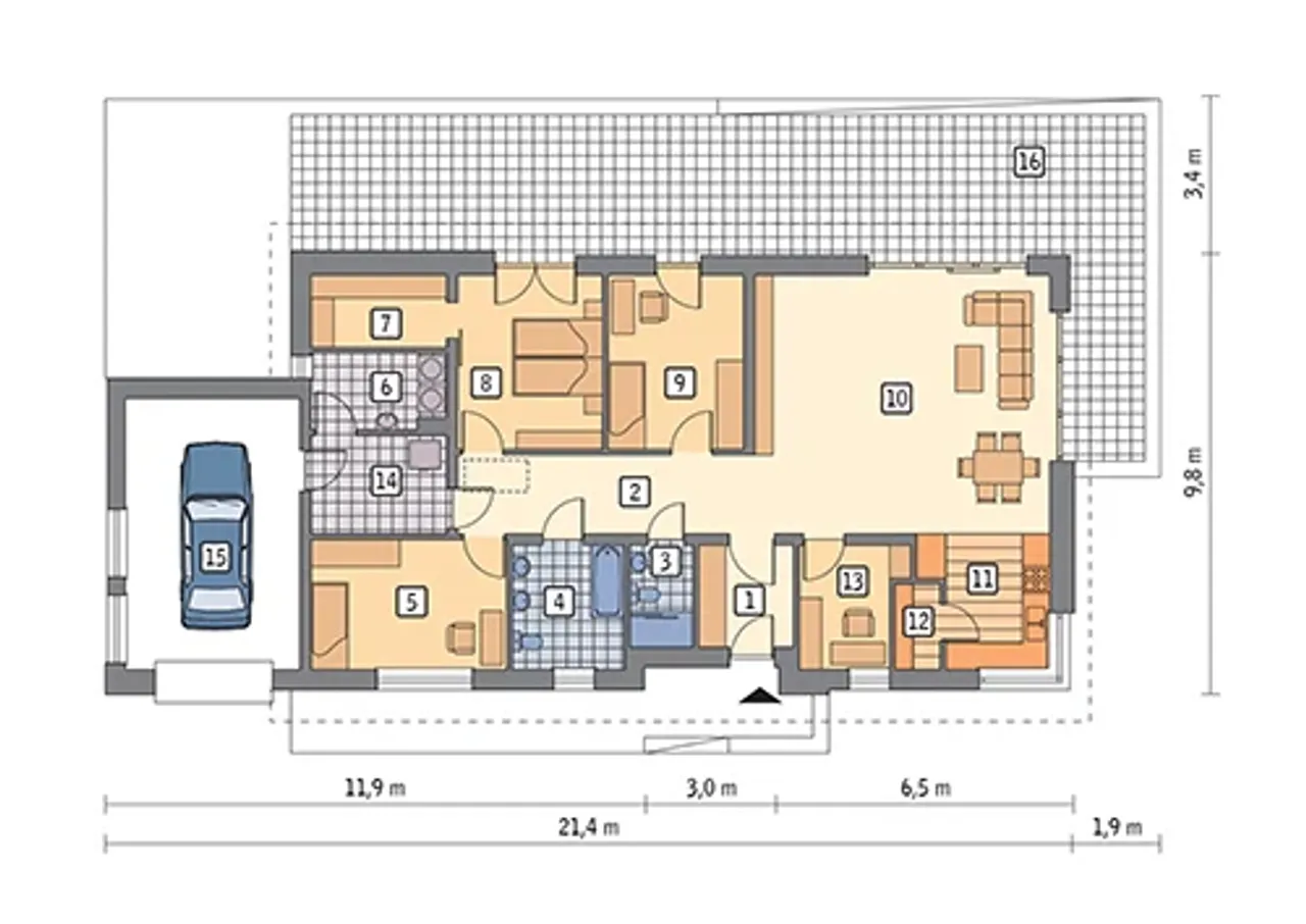
1. Przedsionek | 4,60 (4,60) m² |
2. Hol | 10,80 (10,80) m² |
3. łazienka | 3,00 (3,00) m² |
4. łazienka | 6,70 (6,70) m² |
5. Sypialnia | 12,30 (12,30) m² |
6. Pralnia | 4,80 (4,80) m² |
7. Garderoba | 4,60 (4,60) m² |
8. Sypialnia | 11,40 (11,40) m² |
9. Sypialnia | 12,10 (12,10) m² |
10. Pokój dzienny | 36,90 (36,90) m² |
11. Kuchnia | 6,70 (6,70) m² |
12. Spiżarnia | 1,80 (1,80) m² |
13. Gabinet | 5,70 (5,70) m² |
14. Kotłownia | 6,40 (6,40) m² |
15. Garaż | 22,90 (22,90) m² |
16. Taras | 70,00 m² |
Wypełnij formularz i otrzymaj rysunki w pdf z dokładnymi wymiarami budynku i pomieszczeń (długość, szerokość, wysokość) dla projektu Poukładany - C398
Ilość pokoi 5 |
Pow. użytkowa 121.4 m² |
Powierzchnia zabudowy 197.1 m² |
Kondygnacje parterowy |
Garaż 1 stanowisko |
Technologia murowany |
Szerokość działki 29.4 m |
Obiekt dom |
Typ domu jednorodzinny całoroczny |
Szerokość budynku 21.4 m |
Rodzaj garażu przyklejony |
Taras z tarasem |
Kalenica równoległa do drogi |
Długość budynku 9.8 m |
Rodzaj dachu dwuspadowy |
Piwnica bez podpiwniczenia |
Funkcje dodatkowe z pralnią |
Kubatura 1095 m³ |
Przechowywanie w kuchni spiżarnia |
Bryła budynku prosta bryła |
Wysokość budynku 7.66 m |
Długość działki 18.7 m |
Styl budynku nowoczesny |
Liczba łazieniek 2 |
Kominek kominek opcjonalnie |
Kąt nachylenia dachu 35 ° |
Kotłownia duża kotłownia |
Strop żelbetowy |
Koszty budowy 300-350 tys., tylko z kosztorysem |
Ilość pokoi 5 |
Powierzchnia zabudowy 197.1 m² |
Garaż 1 stanowisko |
Szerokość działki 29.4 m |
Typ domu jednorodzinny całoroczny |
Rodzaj garażu przyklejony |
Kalenica równoległa do drogi |
Rodzaj dachu dwuspadowy |
Funkcje dodatkowe z pralnią |
Przechowywanie w kuchni spiżarnia |
Wysokość budynku 7.66 m |
Styl budynku nowoczesny |
Kominek kominek opcjonalnie |
Kotłownia duża kotłownia |
Koszty budowy 300-350 tys., tylko z kosztorysem |
Pow. użytkowa 121.4 m² |
Kondygnacje parterowy |
Technologia murowany |
Obiekt dom |
Szerokość budynku 21.4 m |
Taras z tarasem |
Długość budynku 9.8 m |
Piwnica bez podpiwniczenia |
Kubatura 1095 m³ |
Bryła budynku prosta bryła |
Długość działki 18.7 m |
Liczba łazieniek 2 |
Kąt nachylenia dachu 35 ° |
Strop żelbetowy |
Kupując projekt w technologii murowanej powinieneś budować dom murowany. Zupełna zmiana technologii na szkieletową wymaga przeprojektowania całego budynku ( zmieniają się obciążenia, fundamenty, konstrukcja dachu). Wydamy zgodę na takie przeprojektowanie jednak wiążę się to z dużymi kosztami. Istnieją firmy wykonawcze, które podejmują się zmiany technologii budowy bezpłatnie przy skorzystaniu z ich usług wykonawczych. Zdarza się, że pracownia architektoniczna przygotowuje warianty konkretnego projektu przewidując także inne technologie. Prosimy o sprawdzenie czy istnieje poszukiwana wersja projektu, w zakładce - warianty projektu.
Zwężenie/poszerzenie budynku* to nic innego jak zmiana w projekcie. Istnieje możliwość wprowadzenia takich zmian, we własnym zakresie (podczas adaptacji). *zwężenie/poszerzenie budynku nie powinno stanowić problemu w przypadku domów o dachu dwuspadowym jeśli wiąże się to z wydłużeniem/skróceniem kalenicy dachu.
Poznaj praktyczne porady ekspertów, które ułatwią Ci każdy etap budowy i od wyboru wymarzonego domu po jego wykończenie. Zyskaj pewność, że podejmujesz najlepsze decyzje dzięki sprawdzonym wskazówkom od specjalistów z planz.pl
Wycena szacunkowa, w kwotach netto, nie zawiera instalacji.
bezpłatnie (0zł)
przelew zwykły / PayNow
przy odbiorze
3-5 dni roboczych (jeśli projekt nie wymaga aktualizacji)
Wybierz wygodny dla Ciebie czas kontaktu z naszym Doradcą Technicznym.