Promyczek



Zawartość projektu
3 egzemplarze projektu archtektoniczno budowlanego + 3 egzemplarze projektu technicznego.
2. Elewacje – pokazujące dokładny wygląd budynku ze wszystkich czterech stron wraz z opisem proponowanych materiałów wykończeniowych.
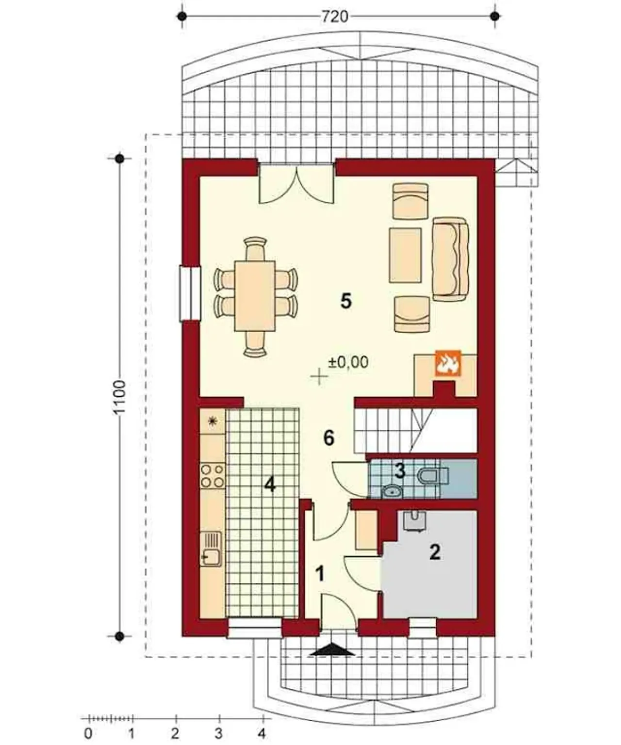
3. Rzut parteru i pozostałych kondygnacji (w zależności od projektu) – dokładnie zwymiarowane, z podanymi powierzchniami poszczególnych pomieszczeń, rozmieszczeniem ścian, detalami rozwiązań, wyposażeniem, technologią, itp.
4. Rzut dachu – dokładnie zwymiarowany pokazujący kształt dachu i jego kąt nachylenia ,rozmieszczenie okien połaciowych, lukarn oraz rur spustowych.
5. Przekroje – dokładnie wykonane i zwymiarowane pokazują sposób rozwiązania strategicznych części budynku, warstwy ścian, posadzek i dachu, wieńce, okapy, detale itp .
6. Zestawienia stolarki – wykaz i wymiary okien i drzwi zastosowanych w projekcie.
7. Rzut fundamentów – z pokazaniem niezbędnych detali ław i stóp fundamentowych .
8. Rzut stropów – przedstawiający zwymiarowany układ stropów, rozmieszczenie i rozstawy belek stropowych, detale wieńców itp.
9. Rzut więźby dachowej – z dokładnie określonym układem elementów konstrukcyjnych dachu, ich przekrojami, rozstawem, sposobami łączenia.
10. Rysunki Instalacji wewnętrznych – pokazujące rozmieszczenie i sposób wykonania instalacji wewnątrz domu (wodnej, kanalizacyjnej, gazowej, c.o., elektrycznej).
Zawartość projektu nie dotyczy budynków gospodarczych, garaży oraz obiektów malej architektury.
Wypełnij formularz i otrzymaj rysunki w pdf z dokładnymi wymiarami budynku i pomieszczeń (długość, szerokość, wysokość) dla projektu Piotrek
Pow. użytkowa 106.6 m² |
Powierzchnia zabudowy 79.2 m² |
Kondygnacje parterowy+poddasze |
Garaż bez garażu |
Technologia murowany |
Szerokość działki 14.2 m |
Obiekt dom |
Typ domu jednorodzinny całoroczny |
Rodzaj dachu dwuspadowy |
Szerokość budynku 7.2 m |
Kominek kominek w projekcie |
Długość budynku 11 m |
Piwnica bez podpiwniczenia |
Bryła budynku prosta bryła |
Kubatura 382 m³ |
Strop gęstożebrowy |
Styl budynku tradycyjny |
Kalenica prostopadła do drogi |
Długość działki 19 m |
Kąt nachylenia dachu 45 ° |
Koszty budowy tylko z kosztorysem, 200-250 tys. |
Pow. użytkowa 106.6 m² |
Kondygnacje parterowy+poddasze |
Technologia murowany |
Obiekt dom |
Rodzaj dachu dwuspadowy |
Kominek kominek w projekcie |
Piwnica bez podpiwniczenia |
Kubatura 382 m³ |
Styl budynku tradycyjny |
Długość działki 19 m |
Koszty budowy tylko z kosztorysem, 200-250 tys. |
Powierzchnia zabudowy 79.2 m² |
Garaż bez garażu |
Szerokość działki 14.2 m |
Typ domu jednorodzinny całoroczny |
Szerokość budynku 7.2 m |
Długość budynku 11 m |
Bryła budynku prosta bryła |
Strop gęstożebrowy |
Kalenica prostopadła do drogi |
Kąt nachylenia dachu 45 ° |
Kupując projekt w technologii murowanej powinieneś budować dom murowany. Zupełna zmiana technologii na szkieletową wymaga przeprojektowania całego budynku ( zmieniają się obciążenia, fundamenty, konstrukcja dachu). Wydamy zgodę na takie przeprojektowanie jednak wiążę się to z dużymi kosztami. Istnieją firmy wykonawcze, które podejmują się zmiany technologii budowy bezpłatnie przy skorzystaniu z ich usług wykonawczych. Zdarza się, że pracownia architektoniczna przygotowuje warianty konkretnego projektu przewidując także inne technologie. Prosimy o sprawdzenie czy istnieje poszukiwana wersja projektu, w zakładce - warianty projektu.
Zwężenie/poszerzenie budynku* to nic innego jak zmiana w projekcie. Istnieje możliwość wprowadzenia takich zmian, we własnym zakresie (podczas adaptacji). *zwężenie/poszerzenie budynku nie powinno stanowić problemu w przypadku domów o dachu dwuspadowym jeśli wiąże się to z wydłużeniem/skróceniem kalenicy dachu.
Poznaj praktyczne porady ekspertów, które ułatwią Ci każdy etap budowy i od wyboru wymarzonego domu po jego wykończenie. Zyskaj pewność, że podejmujesz najlepsze decyzje dzięki sprawdzonym wskazówkom od specjalistów z planz.pl
Wycena szacunkowa, w kwotach netto, nie zawiera instalacji.
bezpłatnie (0zł)
przelew zwykły / PayNow
przy odbiorze
2-14 dni roboczych (jeśli projekt nie wymaga aktualizacji)
Wybierz wygodny dla Ciebie czas kontaktu z naszym Doradcą Technicznym.