Patagonia A



1. Wiatrołap | 7,40 m² |
2. Kuchnia + jadalnia | 17,70 m² |
3. Pokój dzienny | 37,00 m² |
4. Korytarz | 6,80 m² |
5. łazienka | 7,00 m² |
6. Pralnia | 2,20 m² |
7. Pokój | 12,50 m² |
8. Pokój | 12,30 m² |
9. Pokój | 12,50 m² |
10. Pokój | 13,40 m² |
11. łazienka | 3,40 m² |
12. Garderoba | 3,00 m² |
13. Spiżarnia | 6,00 m² |
14. Pom. gosp. / kotłownia | 11,00 m² |
15. Garaż | 29,40 m² |
Wypełnij formularz i otrzymaj rysunki w pdf z dokładnymi wymiarami budynku i pomieszczeń (długość, szerokość, wysokość) dla projektu Patagonia D
Pow. użytkowa 141.01 m² |
Powierzchnia zabudowy 247.46 m² |
Kondygnacje parterowy |
Garaż 2 stanowiska |
Technologia murowany |
Szerokość działki 21.74 m |
Obiekt dom |
Typ domu jednorodzinny całoroczny |
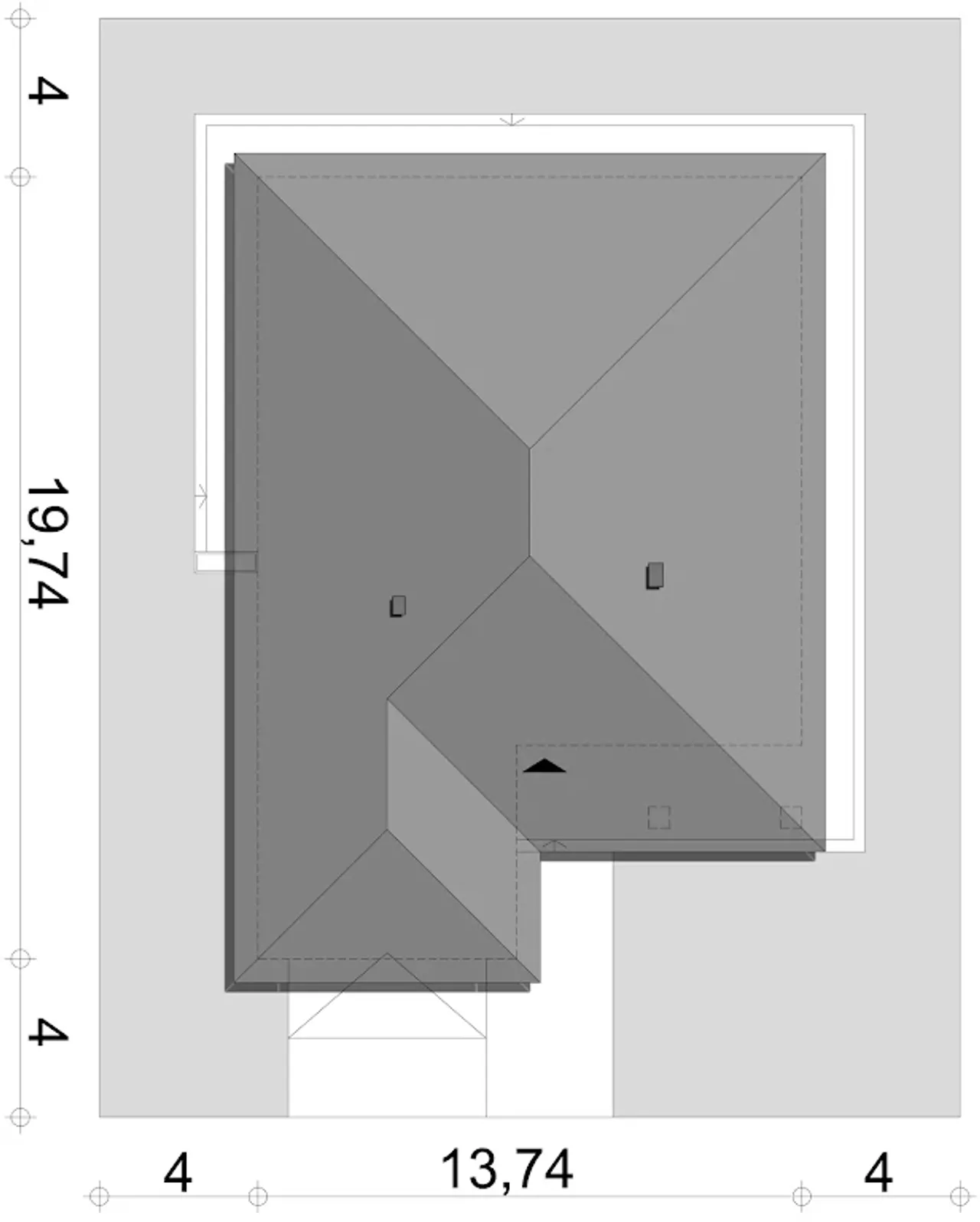
Szerokość budynku 13.74 m |
Rodzaj dachu wielospadowy |
Długość budynku 19.74 m |
Piwnica bez podpiwniczenia |
Bryła budynku plan litery T |
Wysokość budynku 6.18 m |
Styl budynku nowoczesny |
Kalenica prostopadła do drogi |
Długość działki 27.74 m |
Kąt nachylenia dachu 20 ° |
Rodzaj garażu z przodu |
Koszty budowy 400-450 tys., tylko z kosztorysem |
Pow. użytkowa 141.01 m² |
Kondygnacje parterowy |
Technologia murowany |
Obiekt dom |
Szerokość budynku 13.74 m |
Długość budynku 19.74 m |
Bryła budynku plan litery T |
Styl budynku nowoczesny |
Długość działki 27.74 m |
Rodzaj garażu z przodu |
Powierzchnia zabudowy 247.46 m² |
Garaż 2 stanowiska |
Szerokość działki 21.74 m |
Typ domu jednorodzinny całoroczny |
Rodzaj dachu wielospadowy |
Piwnica bez podpiwniczenia |
Wysokość budynku 6.18 m |
Kalenica prostopadła do drogi |
Kąt nachylenia dachu 20 ° |
Koszty budowy 400-450 tys., tylko z kosztorysem |
Kupując projekt w technologii murowanej powinieneś budować dom murowany. Zupełna zmiana technologii na szkieletową wymaga przeprojektowania całego budynku ( zmieniają się obciążenia, fundamenty, konstrukcja dachu). Wydamy zgodę na takie przeprojektowanie jednak wiążę się to z dużymi kosztami. Istnieją firmy wykonawcze, które podejmują się zmiany technologii budowy bezpłatnie przy skorzystaniu z ich usług wykonawczych. Zdarza się, że pracownia architektoniczna przygotowuje warianty konkretnego projektu przewidując także inne technologie. Prosimy o sprawdzenie czy istnieje poszukiwana wersja projektu, w zakładce - warianty projektu.
Zwężenie/poszerzenie budynku* to nic innego jak zmiana w projekcie. Istnieje możliwość wprowadzenia takich zmian, we własnym zakresie (podczas adaptacji). *zwężenie/poszerzenie budynku nie powinno stanowić problemu w przypadku domów o dachu dwuspadowym jeśli wiąże się to z wydłużeniem/skróceniem kalenicy dachu.
Poznaj praktyczne porady ekspertów, które ułatwią Ci każdy etap budowy i od wyboru wymarzonego domu po jego wykończenie. Zyskaj pewność, że podejmujesz najlepsze decyzje dzięki sprawdzonym wskazówkom od specjalistów z planz.pl
Wycena szacunkowa, w kwotach netto, nie zawiera instalacji.
bezpłatnie (0zł)
przelew zwykły / PayNow
przy odbiorze
3-5 dni roboczych (jeśli projekt nie wymaga aktualizacji)
Wybierz wygodny dla Ciebie czas kontaktu z naszym Doradcą Technicznym.