Koralgol 2G



1. Wiatrołap | 4,11 m² |
2. Hol | 11,24 m² |
3. Salon + jadalnia | 40,04 m² |
4. Kuchnia | 11,63 m² |
5. Spiżarnia | 1,68 m² |
6. Wc | 1,84 m² |
7. Korytarz | 3,62 m² |
8. Garderoba | 4,81 m² |
9. Pokój | 14,02 m² |
10. Pokój | 14,98 m² |
11. Pokój | 12,31 m² |
12. łazienka | 7,98 m² |
13. Pom. gospodarcze | 2,65 m² |
14. Garaż | 33,00 m² |
15. Kotłownia | 13,13 m² |
Wypełnij formularz i otrzymaj rysunki w pdf z dokładnymi wymiarami budynku i pomieszczeń (długość, szerokość, wysokość) dla projektu Papaja
Pow. użytkowa 128.26 m² |
Ilość pokoi 4 |
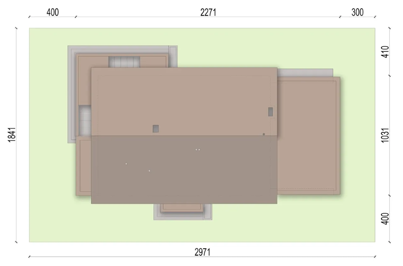
Powierzchnia zabudowy 248.87 m² |
Kondygnacje parterowy |
Garaż 2 stanowiska |
Technologia murowany |
Szerokość działki 29.71 m |
Obiekt dom |
Typ domu jednorodzinny całoroczny |
Długość działki 18.41 m |
Ogrzewanie gaz, paliwo stałe |
Wysokość budynku 7.41 m |
Liczba łazieniek 1 |
Kalenica równoległa do drogi |
Styl budynku nowoczesny |
Kominek kominek w projekcie |
Szerokość budynku 22.71 m |
Taras z tarasem |
Kąt nachylenia dachu 35 ° |
Długość budynku 10.31 m |
Piwnica bez podpiwniczenia |
Kubatura 1241 m³ |
Rodzaj dachu dwuspadowy |
Powierzchnia dachu 217 m² |
Koszty budowy 300-350 tys., tylko z kosztorysem |
Pow. użytkowa 128.26 m² |
Powierzchnia zabudowy 248.87 m² |
Garaż 2 stanowiska |
Szerokość działki 29.71 m |
Typ domu jednorodzinny całoroczny |
Ogrzewanie gaz, paliwo stałe |
Liczba łazieniek 1 |
Styl budynku nowoczesny |
Szerokość budynku 22.71 m |
Kąt nachylenia dachu 35 ° |
Piwnica bez podpiwniczenia |
Rodzaj dachu dwuspadowy |
Koszty budowy 300-350 tys., tylko z kosztorysem |
Ilość pokoi 4 |
Kondygnacje parterowy |
Technologia murowany |
Obiekt dom |
Długość działki 18.41 m |
Wysokość budynku 7.41 m |
Kalenica równoległa do drogi |
Kominek kominek w projekcie |
Taras z tarasem |
Długość budynku 10.31 m |
Kubatura 1241 m³ |
Powierzchnia dachu 217 m² |
Odkryj nowoczesny projekt domu jednorodzinnego, który zachwyca praktycznymi rozwiązaniami i starannie dobranymi materiałami. Przystosowany do całorocznego użytkowania, ten dom murowany spełni oczekiwania nawet najbardziej wymagających inwestorów. Dopracowana koncepcja architektoniczna sprawia, że dom doskonale wpisuje się w otwarte, dobrze nasłonecznione działki.
Zaprojektowany z myślą o komforcie czteroosobowej rodziny, parterowy budynek z podwójnym garażem i rozległym tarasem to praktyczna, ale i stylowa przestrzeń do życia. Naturalne materiały konstrukcyjne, dwuspadowy dach oraz atrakcyjny kominek to wyróżniki korzystne dla każdego, kto ceni solidność, wygodę i niskie koszty eksploatacji.
Ten nowoczesny dom parterowy został zaprojektowany z myślą o efektywności i trwałości. Fundamenty żelbetowe gwarantują stabilność przez długie lata, a ściany nośne i działowe z pustaków ceramicznych sprzyjają energooszczędności oraz odpowiedniej mikroklimacie wnętrza. Drewniana konstrukcja dachu, pokryta dachówką ceramiczną lub betonową, wyróżnia się doskonałą izolacją oraz niepowtarzalnym urokiem.
Ogrzewanie gazowe lub na paliwo stałe pozwala idealnie dopasować dom do potrzeb użytkowników i możliwości technicznych działki. Dom jest niepodpiwniczony, co ułatwia szybkie i ekonomiczne wykonanie inwestycji. Otwarty taras stanowi bezpośrednie przedłużenie strefy dziennej, zachęcając do aktywnego wypoczynku na świeżym powietrzu.
Zamów gotowy projekt domu jednorodzinnego i rozpocznij inwestycję, która połączy wygodę nowoczesnego stylu z solidnością klasycznych rozwiązań. Zbuduj przestrzeń, która stanie się centrum rodzinnego życia przez długie lata!
Kupując projekt w technologii murowanej powinieneś budować dom murowany. Zupełna zmiana technologii na szkieletową wymaga przeprojektowania całego budynku ( zmieniają się obciążenia, fundamenty, konstrukcja dachu). Wydamy zgodę na takie przeprojektowanie jednak wiążę się to z dużymi kosztami. Istnieją firmy wykonawcze, które podejmują się zmiany technologii budowy bezpłatnie przy skorzystaniu z ich usług wykonawczych. Zdarza się, że pracownia architektoniczna przygotowuje warianty konkretnego projektu przewidując także inne technologie. Prosimy o sprawdzenie czy istnieje poszukiwana wersja projektu, w zakładce - warianty projektu.
Zwężenie/poszerzenie budynku* to nic innego jak zmiana w projekcie. Istnieje możliwość wprowadzenia takich zmian, we własnym zakresie (podczas adaptacji). *zwężenie/poszerzenie budynku nie powinno stanowić problemu w przypadku domów o dachu dwuspadowym jeśli wiąże się to z wydłużeniem/skróceniem kalenicy dachu.
Poznaj praktyczne porady ekspertów, które ułatwią Ci każdy etap budowy i od wyboru wymarzonego domu po jego wykończenie. Zyskaj pewność, że podejmujesz najlepsze decyzje dzięki sprawdzonym wskazówkom od specjalistów z planz.pl
Wycena szacunkowa, w kwotach netto, nie zawiera instalacji.
bezpłatnie (0zł)
przelew zwykły / PayNow
przy odbiorze
3-5 dni roboczych (jeśli projekt nie wymaga aktualizacji)
Wybierz wygodny dla Ciebie czas kontaktu z naszym Doradcą Technicznym.