Pag A



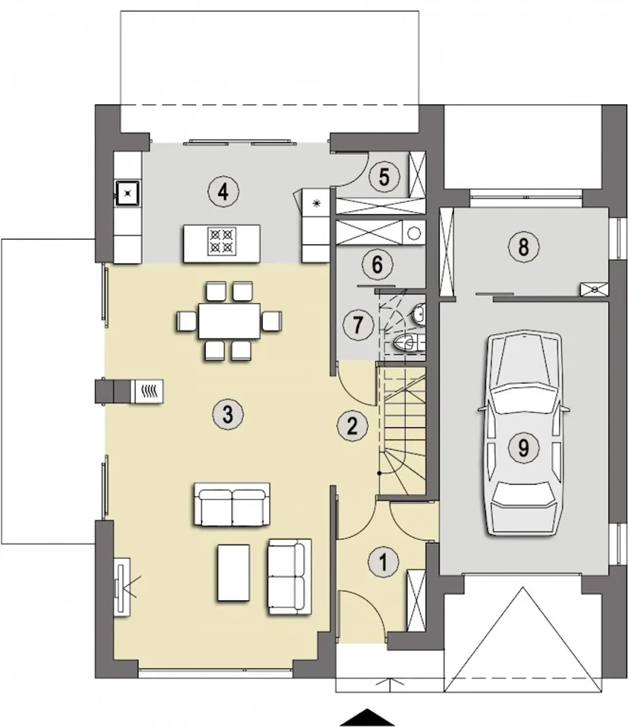
1. Wiatrołap | 5,20 m² |
2. Korytarz | 2,60 m² |
3. Pokój dzienny + jadalnia | 38,50 m² |
4. Kuchnia | 10,80 m² |
5. Spiżarnia | 2,50 m² |
6. Pralnia / kotłownia | 2,70 m² |
7. W.c. | 2,60 m² |
1. Korytarz | 5,30 (5,30) m² |
2. Pokój | 8,20 (11,50) m² |
3. Pokój | 12,50 (15,30) m² |
4. łazienka | 4,30 (4,30) m² |
5. łazienka | 3,80 (3,80) m² |
6. Pokój | 13,00 (15,80) m² |
7. Pokój | 7,60 (10,80) m² |
Wypełnij formularz i otrzymaj rysunki w pdf z dokładnymi wymiarami budynku i pomieszczeń (długość, szerokość, wysokość) dla projektu Pag B
Pow. użytkowa 116.95 m² |
Powierzchnia zabudowy 91.06 m² |
Kondygnacje parterowy+poddasze |
Garaż bez garażu |
Technologia murowany |
Szerokość działki 15.44 m |
Obiekt dom |
Typ domu jednorodzinny całoroczny |
Kubatura 330 m³ |
Bryła budynku prosta bryła |
Wysokość budynku 8.29 m |
Kalenica prostopadła do drogi |
Długość działki 20.24 m |
Styl budynku nowoczesny |
Kąt nachylenia dachu 45 ° |
Szerokość budynku 7.44 m |
Rodzaj dachu dwuspadowy |
Długość budynku 12.24 m |
Piwnica bez podpiwniczenia |
Koszty budowy tylko z kosztorysem, 250-300 tys. |
Pow. użytkowa 116.95 m² |
Kondygnacje parterowy+poddasze |
Technologia murowany |
Obiekt dom |
Kubatura 330 m³ |
Wysokość budynku 8.29 m |
Długość działki 20.24 m |
Kąt nachylenia dachu 45 ° |
Rodzaj dachu dwuspadowy |
Piwnica bez podpiwniczenia |
Powierzchnia zabudowy 91.06 m² |
Garaż bez garażu |
Szerokość działki 15.44 m |
Typ domu jednorodzinny całoroczny |
Bryła budynku prosta bryła |
Kalenica prostopadła do drogi |
Styl budynku nowoczesny |
Szerokość budynku 7.44 m |
Długość budynku 12.24 m |
Koszty budowy tylko z kosztorysem, 250-300 tys. |
Kupując projekt w technologii murowanej powinieneś budować dom murowany. Zupełna zmiana technologii na szkieletową wymaga przeprojektowania całego budynku ( zmieniają się obciążenia, fundamenty, konstrukcja dachu). Wydamy zgodę na takie przeprojektowanie jednak wiążę się to z dużymi kosztami. Istnieją firmy wykonawcze, które podejmują się zmiany technologii budowy bezpłatnie przy skorzystaniu z ich usług wykonawczych. Zdarza się, że pracownia architektoniczna przygotowuje warianty konkretnego projektu przewidując także inne technologie. Prosimy o sprawdzenie czy istnieje poszukiwana wersja projektu, w zakładce - warianty projektu.
Zwężenie/poszerzenie budynku* to nic innego jak zmiana w projekcie. Istnieje możliwość wprowadzenia takich zmian, we własnym zakresie (podczas adaptacji). *zwężenie/poszerzenie budynku nie powinno stanowić problemu w przypadku domów o dachu dwuspadowym jeśli wiąże się to z wydłużeniem/skróceniem kalenicy dachu.
Poznaj praktyczne porady ekspertów, które ułatwią Ci każdy etap budowy i od wyboru wymarzonego domu po jego wykończenie. Zyskaj pewność, że podejmujesz najlepsze decyzje dzięki sprawdzonym wskazówkom od specjalistów z planz.pl
Wycena szacunkowa, w kwotach netto, nie zawiera instalacji.
bezpłatnie (0zł)
przelew zwykły / PayNow
przy odbiorze
3-5 dni roboczych (jeśli projekt nie wymaga aktualizacji)
Wybierz wygodny dla Ciebie czas kontaktu z naszym Doradcą Technicznym.