Osiek 8rs



Zawartość projektu
3 egzemplarze projektu archtektoniczno budowlanego + 3 egzemplarze projektu technicznego.
- opisu architektonicznego zawierającego m.in. opis przyjętych rozwiązań, zestawienia powierzchni (użytkowej, zabudowy, netto), kubatury oraz powierzchni poszczególnych pomieszczeń
2. Część rysunkowa projektu architektoniczno-budowlanego składa się między innymi z:
- rzutów kondygnacji użytkowych (parteru i jeśli występują: poddasza, piętra, piwnic)
- rzutu dachu
- przekroi poprzecznych i ewentualnie podłużnych
- elewacji
- zestawienia stolarki okiennej i drzwiowej
W części technicznej znajdują się:
- projekt konstrukcji
- projekt instalacji wodno-kanalizacyjnej
- projekt instalacji centralnego ogrzewania
- projekt instalacji gazowej (jeżeli występuje)
- projekt instalacji elektrycznej i odgromowej
Część opisowa projektu technicznego składa się z:
- opisu konstrukcyjnego zawierającego m.in. opis materiałów, z których wykonane są elementy konstrukcyjne, obliczenia statyczne wraz z przyjętymi obciążeniami, zestawienia drewna konstrukcyjnego i zestawienie stali
- opisu instalacji centralnego ogrzewania, wod-kan, gazowej (jeżeli występuje), elektrycznej i odgromowej precyzującego przyjęte w tych branżach rozwiązania, sposób wykonania instalacji i zapotrzebowania na poszczególne media
Część rysunkowa projektu technicznego składa się między innymi z:
- rzutu fundamentów
- rzutów konstrukcyjnych poszczególnych kondygnacji
- rysunków niezbędnych elementów konstrukcyjnych, zbrojenia płyt oraz innych elementów żelbetowych
- rzutu więźby dachowej
- rzutów instalacji centralnego ogrzewania oraz schematu technologicznego kotłowni (jeżeli występują)
- rzutów instalacji wod-kan
- rzutów oraz rozwinięcia instalacji gazowej (jeżeli występuje)
- rzutów instalacji elektrycznej
- schematu tablicy TM
- rzutu instalacji odgromowej
Do dokumentacji dołączona jest projektowana charakterystyka energetyczna.
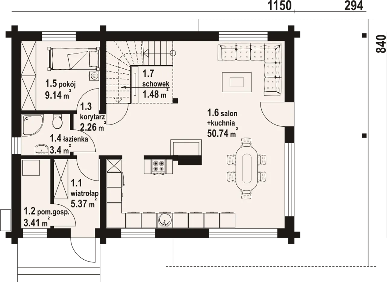
Wypełnij formularz i otrzymaj rysunki w pdf z dokładnymi wymiarami budynku i pomieszczeń (długość, szerokość, wysokość) dla projektu Osiek 313 dw
Pow. użytkowa 124.73 m² |
Powierzchnia zabudowy 96.6 m² |
Kondygnacje parterowy+poddasze |
Garaż bez garażu |
Technologia z bali |
Szerokość działki 20 m |
Obiekt dom |
Typ domu jednorodzinny całoroczny |
Kąt nachylenia dachu 40 ° |
Kominek kominek w projekcie |
Kubatura 520.87 m³ |
Rodzaj dachu dwuspadowy |
Taras z tarasem |
Ogrzewanie pompa ciepła |
Powierzchnia dachu 206.96 m² |
Piwnica bez podpiwniczenia |
Wysokość budynku 8.05 m |
Bryła budynku prosta bryła |
Kalenica równoległa do drogi |
Długość działki 16.4 m |
Styl budynku tradycyjny |
Koszty budowy 300-350 tys., tylko z kosztorysem |
Pow. użytkowa 124.73 m² |
Kondygnacje parterowy+poddasze |
Technologia z bali |
Obiekt dom |
Kąt nachylenia dachu 40 ° |
Kubatura 520.87 m³ |
Taras z tarasem |
Powierzchnia dachu 206.96 m² |
Wysokość budynku 8.05 m |
Kalenica równoległa do drogi |
Styl budynku tradycyjny |
Powierzchnia zabudowy 96.6 m² |
Garaż bez garażu |
Szerokość działki 20 m |
Typ domu jednorodzinny całoroczny |
Kominek kominek w projekcie |
Rodzaj dachu dwuspadowy |
Ogrzewanie pompa ciepła |
Piwnica bez podpiwniczenia |
Bryła budynku prosta bryła |
Długość działki 16.4 m |
Koszty budowy 300-350 tys., tylko z kosztorysem |
Kupując projekt w technologii murowanej powinieneś budować dom murowany. Zupełna zmiana technologii na szkieletową wymaga przeprojektowania całego budynku ( zmieniają się obciążenia, fundamenty, konstrukcja dachu). Wydamy zgodę na takie przeprojektowanie jednak wiążę się to z dużymi kosztami. Istnieją firmy wykonawcze, które podejmują się zmiany technologii budowy bezpłatnie przy skorzystaniu z ich usług wykonawczych. Zdarza się, że pracownia architektoniczna przygotowuje warianty konkretnego projektu przewidując także inne technologie. Prosimy o sprawdzenie czy istnieje poszukiwana wersja projektu, w zakładce - warianty projektu.
Zwężenie/poszerzenie budynku* to nic innego jak zmiana w projekcie. Istnieje możliwość wprowadzenia takich zmian, we własnym zakresie (podczas adaptacji). *zwężenie/poszerzenie budynku nie powinno stanowić problemu w przypadku domów o dachu dwuspadowym jeśli wiąże się to z wydłużeniem/skróceniem kalenicy dachu.
Poznaj praktyczne porady ekspertów, które ułatwią Ci każdy etap budowy i od wyboru wymarzonego domu po jego wykończenie. Zyskaj pewność, że podejmujesz najlepsze decyzje dzięki sprawdzonym wskazówkom od specjalistów z planz.pl
Wycena szacunkowa, w kwotach netto, nie zawiera instalacji.
bezpłatnie (0zł)
przelew zwykły / PayNow
przy odbiorze
2-5 dni roboczych (jeśli projekt nie wymaga aktualizacji)
Wybierz wygodny dla Ciebie czas kontaktu z naszym Doradcą Technicznym.