Nowalia Mode z garażem 1-st. A1



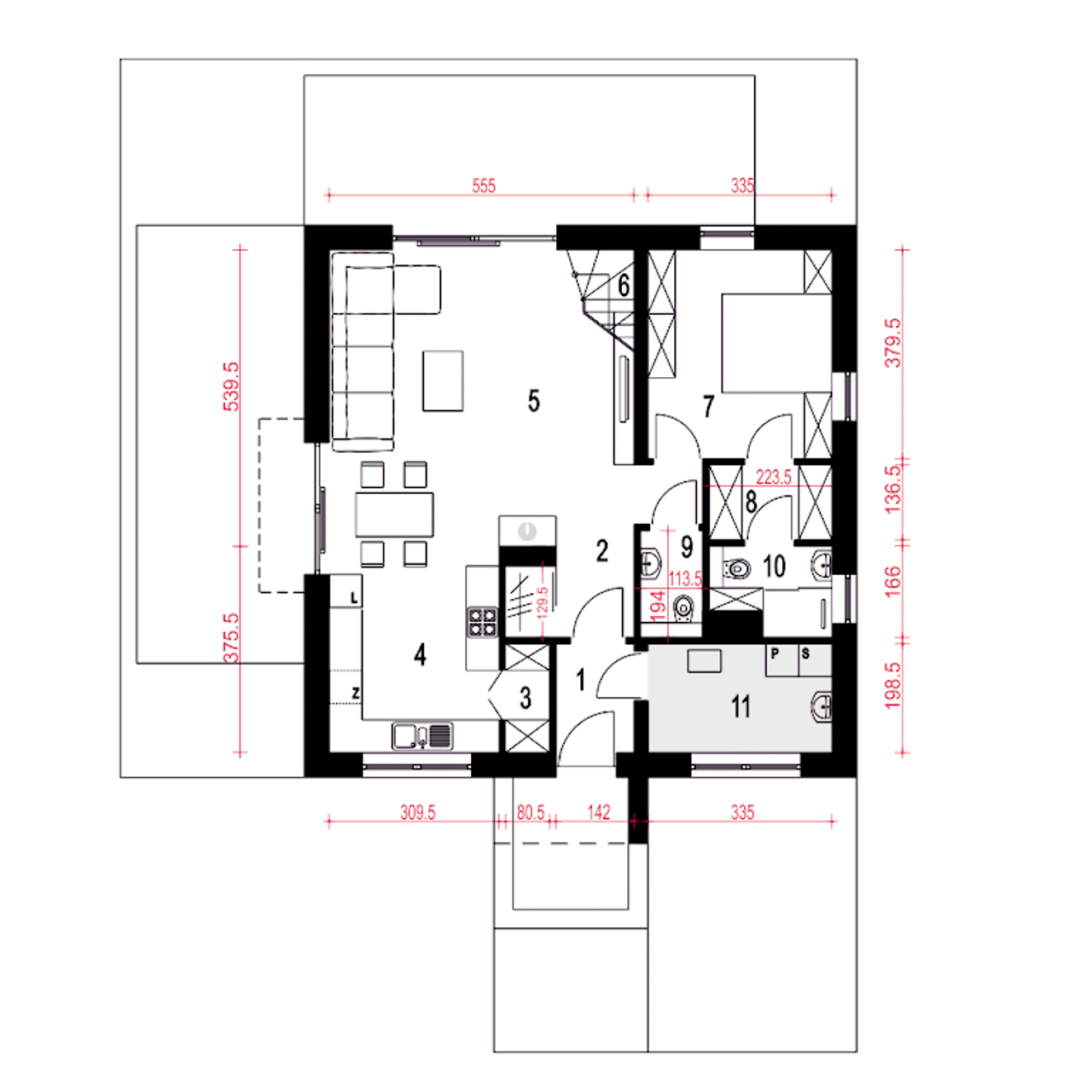
1. Wiatrołap | 2,70 m² |
2. Hol z garderobą | 6,80 m² |
3. Spiżarnia | 1,50 m² |
4. Kuchnia | 10,00 m² |
5. Salon z jadalnią | 26,70 m² |
6. Schody | 3,60 m² |
7. Pokój | 12,50 m² |
8. Garderoba | 2,90 m² |
9. Wc | 2,10 m² |
10. łazienka | 3,10 m² |
11. Pom. tech. co | 6,50 m² |
1. Hol | 7,80 (7,80) m² |
2. Pokój | 12,50 (15,40) m² |
3. Pokój | 17,90 (21,60) m² |
4. Pokój | 13,30 (16,80) m² |
5. łazienka | 10,60 (13,50) m² |
Wypełnij formularz i otrzymaj rysunki w pdf z dokładnymi wymiarami budynku i pomieszczeń (długość, szerokość, wysokość) dla projektu Nowalia Mode bez garażu B
Pow. użytkowa 134.2 m² |
Ilość pokoi 5 |
Powierzchnia zabudowy 101.6 m² |
Kondygnacje parterowy+poddasze |
Garaż bez garażu |
Technologia murowany |
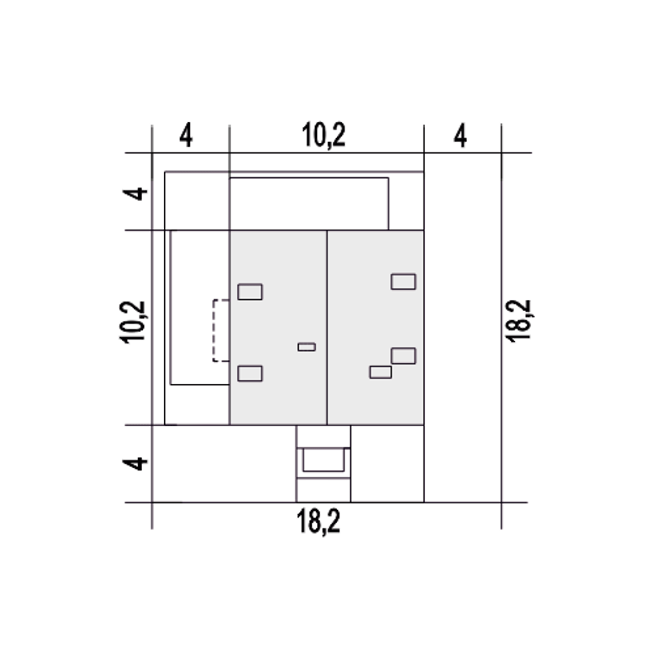
Szerokość działki 18.2 m |
Obiekt dom |
Typ domu jednorodzinny całoroczny |
Wysokość budynku 9.2 m |
Długość działki 18.2 m |
Bryła budynku prosta bryła |
Styl budynku nowoczesny |
Liczba łazieniek 2 |
Kominek kominek w projekcie |
Kąt nachylenia dachu 40 ° |
Szerokość budynku 10.2 m |
Kotłownia duża kotłownia |
Strop żelbetowy |
Długość budynku 10.2 m |
Rodzaj dachu dwuspadowy |
Piwnica bez podpiwniczenia |
Kalenica prostopadła do drogi |
Powierzchnia dachu 165.2 m² |
Przechowywanie w kuchni spiżarnia |
Koszty budowy 450-500 tys., tylko z kosztorysem |
Pow. użytkowa 134.2 m² |
Powierzchnia zabudowy 101.6 m² |
Garaż bez garażu |
Szerokość działki 18.2 m |
Typ domu jednorodzinny całoroczny |
Długość działki 18.2 m |
Styl budynku nowoczesny |
Kominek kominek w projekcie |
Szerokość budynku 10.2 m |
Strop żelbetowy |
Rodzaj dachu dwuspadowy |
Kalenica prostopadła do drogi |
Przechowywanie w kuchni spiżarnia |
Ilość pokoi 5 |
Kondygnacje parterowy+poddasze |
Technologia murowany |
Obiekt dom |
Wysokość budynku 9.2 m |
Bryła budynku prosta bryła |
Liczba łazieniek 2 |
Kąt nachylenia dachu 40 ° |
Kotłownia duża kotłownia |
Długość budynku 10.2 m |
Piwnica bez podpiwniczenia |
Powierzchnia dachu 165.2 m² |
Koszty budowy 450-500 tys., tylko z kosztorysem |
Kupując projekt w technologii murowanej powinieneś budować dom murowany. Zupełna zmiana technologii na szkieletową wymaga przeprojektowania całego budynku ( zmieniają się obciążenia, fundamenty, konstrukcja dachu). Wydamy zgodę na takie przeprojektowanie jednak wiążę się to z dużymi kosztami. Istnieją firmy wykonawcze, które podejmują się zmiany technologii budowy bezpłatnie przy skorzystaniu z ich usług wykonawczych. Zdarza się, że pracownia architektoniczna przygotowuje warianty konkretnego projektu przewidując także inne technologie. Prosimy o sprawdzenie czy istnieje poszukiwana wersja projektu, w zakładce - warianty projektu.
Zwężenie/poszerzenie budynku* to nic innego jak zmiana w projekcie. Istnieje możliwość wprowadzenia takich zmian, we własnym zakresie (podczas adaptacji). *zwężenie/poszerzenie budynku nie powinno stanowić problemu w przypadku domów o dachu dwuspadowym jeśli wiąże się to z wydłużeniem/skróceniem kalenicy dachu.
Poznaj praktyczne porady ekspertów, które ułatwią Ci każdy etap budowy i od wyboru wymarzonego domu po jego wykończenie. Zyskaj pewność, że podejmujesz najlepsze decyzje dzięki sprawdzonym wskazówkom od specjalistów z planz.pl
Wycena szacunkowa, w kwotach netto, nie zawiera instalacji.
bezpłatnie (0zł)
przelew zwykły / PayNow
przy odbiorze
3-5 dni roboczych (jeśli projekt nie jest koncepcją)
Wybierz wygodny dla Ciebie czas kontaktu z naszym Doradcą Technicznym.