Nowa bez garażu B



1. Wiatrołap | 4,30 m² |
2. Hol | 9,10 m² |
3. Wc | 2,00 m² |
4. Schody | 4,30 m² |
5. Garderoba | 2,20 m² |
6. Pokój | 14,00 m² |
7. Garderoba | 1,50 m² |
8. łazienka | 2,80 m² |
9. Salon | 33,60 m² |
10. Kuchnia | 10,90 m² |
11. Spiżarnia | 2,50 m² |
12. Pom. tech. +co | 7,40 m² |
13. Garaż | 38,10 m² |
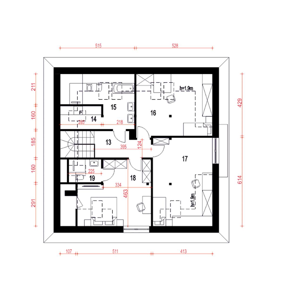
1. Hol | 6,50 m² |
2. Pralnia | 2,00 m² |
3. łazienka | 5,70 m² |
4. Pokój | 10,60 m² |
5. Pokój | 15,30 m² |
6. Pokój | 14,30 m² |
7. łazienka | 2,00 m² |
Wypełnij formularz i otrzymaj rysunki w pdf z dokładnymi wymiarami budynku i pomieszczeń (długość, szerokość, wysokość) dla projektu Nowa z garażem 2-st. A
Ilość pokoi 5 |
Pow. użytkowa 155.5 m² |
Powierzchnia zabudowy 178.2 m² |
Kondygnacje parterowy+poddasze |
Garaż 2 stanowiska |
Technologia murowany |
Szerokość działki 23 m |
Obiekt dom |
Typ domu jednorodzinny całoroczny |
Kalenica bez znaczenia |
Powierzchnia dachu 173.7 m² |
Przechowywanie w kuchni spiżarnia |
Funkcje dodatkowe z pralnią |
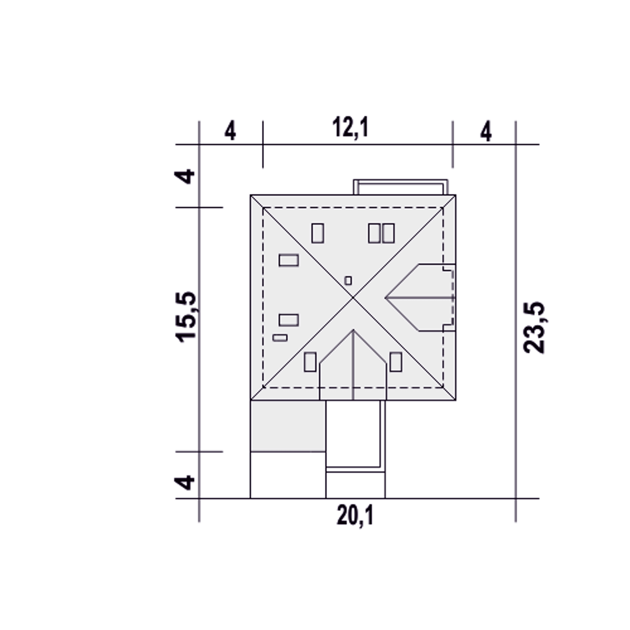
Wysokość budynku 9.2 m |
Długość działki 23.5 m |
Styl budynku nowoczesny |
Liczba łazieniek 3 |
Kominek kominek w projekcie |
Kąt nachylenia dachu 40 ° |
Szerokość budynku 15 m |
Rodzaj garażu z przodu |
Kotłownia duża kotłownia |
Strop gęstożebrowy |
Długość budynku 15.5 m |
Rodzaj dachu wielospadowy |
Piwnica bez podpiwniczenia |
Koszty budowy 400-450 tys., tylko z kosztorysem |
Ilość pokoi 5 |
Powierzchnia zabudowy 178.2 m² |
Garaż 2 stanowiska |
Szerokość działki 23 m |
Typ domu jednorodzinny całoroczny |
Powierzchnia dachu 173.7 m² |
Funkcje dodatkowe z pralnią |
Długość działki 23.5 m |
Liczba łazieniek 3 |
Kąt nachylenia dachu 40 ° |
Rodzaj garażu z przodu |
Strop gęstożebrowy |
Rodzaj dachu wielospadowy |
Koszty budowy 400-450 tys., tylko z kosztorysem |
Pow. użytkowa 155.5 m² |
Kondygnacje parterowy+poddasze |
Technologia murowany |
Obiekt dom |
Kalenica bez znaczenia |
Przechowywanie w kuchni spiżarnia |
Wysokość budynku 9.2 m |
Styl budynku nowoczesny |
Kominek kominek w projekcie |
Szerokość budynku 15 m |
Kotłownia duża kotłownia |
Długość budynku 15.5 m |
Piwnica bez podpiwniczenia |
Kupując projekt w technologii murowanej powinieneś budować dom murowany. Zupełna zmiana technologii na szkieletową wymaga przeprojektowania całego budynku ( zmieniają się obciążenia, fundamenty, konstrukcja dachu). Wydamy zgodę na takie przeprojektowanie jednak wiążę się to z dużymi kosztami. Istnieją firmy wykonawcze, które podejmują się zmiany technologii budowy bezpłatnie przy skorzystaniu z ich usług wykonawczych. Zdarza się, że pracownia architektoniczna przygotowuje warianty konkretnego projektu przewidując także inne technologie. Prosimy o sprawdzenie czy istnieje poszukiwana wersja projektu, w zakładce - warianty projektu.
Zwężenie/poszerzenie budynku* to nic innego jak zmiana w projekcie. Istnieje możliwość wprowadzenia takich zmian, we własnym zakresie (podczas adaptacji). *zwężenie/poszerzenie budynku nie powinno stanowić problemu w przypadku domów o dachu dwuspadowym jeśli wiąże się to z wydłużeniem/skróceniem kalenicy dachu.
Poznaj praktyczne porady ekspertów, które ułatwią Ci każdy etap budowy i od wyboru wymarzonego domu po jego wykończenie. Zyskaj pewność, że podejmujesz najlepsze decyzje dzięki sprawdzonym wskazówkom od specjalistów z planz.pl
Wycena szacunkowa, w kwotach netto, nie zawiera instalacji.
bezpłatnie (0zł)
przelew zwykły / PayNow
przy odbiorze
3-5 dni roboczych (jeśli projekt nie jest koncepcją)
Wybierz wygodny dla Ciebie czas kontaktu z naszym Doradcą Technicznym.