Nemo 2



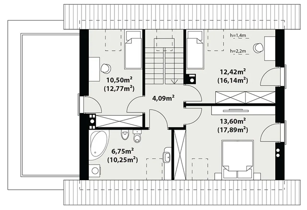
1. Korytarz | 4,09 m² |
2. Sypialnia | 12,42 (16,14) m² |
3. Sypialnia | 13,60 (17,89) m² |
4. łazienka | 6,75 (10,25) m² |
5. Sypialnia | 10,53 (12,81) m² |
Wypełnij formularz i otrzymaj rysunki w pdf z dokładnymi wymiarami budynku i pomieszczeń (długość, szerokość, wysokość) dla projektu Nemo
Pow. użytkowa 109.29 m² |
Ilość pokoi 5 |
Powierzchnia zabudowy 86.61 m² |
Kondygnacje parterowy+poddasze |
Garaż bez garażu |
Technologia murowany |
Szerokość działki 18.25 m |
Obiekt dom |
Typ domu jednorodzinny całoroczny |
Powierzchnia dachu 168 m² |
Przechowywanie w kuchni spiżarnia |
Długość działki 17.45 m |
Wysokość budynku 8.69 m |
Bryła budynku prosta bryła |
Liczba łazieniek 2 |
Styl budynku nowoczesny |
Kominek kominek w projekcie |
Kąt nachylenia dachu 45 ° |
Strop żelbetowy |
Szerokość budynku 10.25 m |
Taras z tarasem |
Kalenica równoległa do drogi |
Długość budynku 8.45 m |
Piwnica bez podpiwniczenia |
Kubatura 504 m³ |
Rodzaj dachu dwuspadowy |
Ogrzewanie gaz, paliwo stałe |
Koszty budowy tylko z kosztorysem, 200-250 tys. |
Pow. użytkowa 109.29 m² |
Powierzchnia zabudowy 86.61 m² |
Garaż bez garażu |
Szerokość działki 18.25 m |
Typ domu jednorodzinny całoroczny |
Przechowywanie w kuchni spiżarnia |
Wysokość budynku 8.69 m |
Liczba łazieniek 2 |
Kominek kominek w projekcie |
Strop żelbetowy |
Taras z tarasem |
Długość budynku 8.45 m |
Kubatura 504 m³ |
Ogrzewanie gaz, paliwo stałe |
Ilość pokoi 5 |
Kondygnacje parterowy+poddasze |
Technologia murowany |
Obiekt dom |
Powierzchnia dachu 168 m² |
Długość działki 17.45 m |
Bryła budynku prosta bryła |
Styl budynku nowoczesny |
Kąt nachylenia dachu 45 ° |
Szerokość budynku 10.25 m |
Kalenica równoległa do drogi |
Piwnica bez podpiwniczenia |
Rodzaj dachu dwuspadowy |
Koszty budowy tylko z kosztorysem, 200-250 tys. |
Zainwestuj w nowoczesny projekt domu jednorodzinnego z użytkowym poddaszem, idealny dla rodziny poszukującej przestrzeni do życia przez cały rok. Prosta bryła, funkcjonalne rozwiązania i ponadczasowa estetyka czynią ten dom doskonałą bazą do codziennego wypoczynku i aktywnego życia.
Wybierz dom, który spełnia oczekiwania nowoczesnej rodziny - gwarantuje wygodę, energooszczędność, a jednocześnie pozostaje przyjazny środowisku dzięki zastosowaniu ekologicznych źródeł ogrzewania. Zintegrowany taras zachęca do relaksu na świeżym powietrzu o każdej porze roku.
Ten dom to precyzyjne połączenie funkcjonalności i nowoczesnego designu. Prosta, estetyczna bryła wyróżnia się na tle tradycyjnych rozwiązań, zachwycając minimalistyczną formą. Dzięki żelbetowemu stropowi oraz technologii murowanej inwestor zyskuje pewność wieloletniej trwałości i stabilności konstrukcji.
Ogrzewanie gazowe lub na paliwo stałe pozwala dostosować wybór źródła ciepła do własnych preferencji oraz lokalnych warunków. Brak podpiwniczenia upraszcza budowę i redukuje koszty, a równoległe usytuowanie kalenicy względem drogi umożliwia optymalne ustawienie budynku na większości działek.
Przestronny taras, duży salon z kominkiem oraz praktyczna spiżarnia wpływają na wygodę codziennego życia. Projekt przewiduje pięć pokoi, które łatwo dostosować do indywidualnych potrzeb mieszkańców: sypialnie, gabinet lub pokój gościnny - wybór należy do Ciebie.
Nie zwlekaj - zamów nowoczesny projekt domu jednorodzinnego i zyskaj wytrzymały, elegancki dom dostosowany do potrzeb współczesnej rodziny. Przekonaj się, jak wygodnie i przyjemnie można mieszkać w przestronnym wnętrzu z własnym tarasem i kominkiem!
Kupując projekt w technologii murowanej powinieneś budować dom murowany. Zupełna zmiana technologii na szkieletową wymaga przeprojektowania całego budynku ( zmieniają się obciążenia, fundamenty, konstrukcja dachu). Wydamy zgodę na takie przeprojektowanie jednak wiążę się to z dużymi kosztami. Istnieją firmy wykonawcze, które podejmują się zmiany technologii budowy bezpłatnie przy skorzystaniu z ich usług wykonawczych. Zdarza się, że pracownia architektoniczna przygotowuje warianty konkretnego projektu przewidując także inne technologie. Prosimy o sprawdzenie czy istnieje poszukiwana wersja projektu, w zakładce - warianty projektu.
Zwężenie/poszerzenie budynku* to nic innego jak zmiana w projekcie. Istnieje możliwość wprowadzenia takich zmian, we własnym zakresie (podczas adaptacji). *zwężenie/poszerzenie budynku nie powinno stanowić problemu w przypadku domów o dachu dwuspadowym jeśli wiąże się to z wydłużeniem/skróceniem kalenicy dachu.
Poznaj praktyczne porady ekspertów, które ułatwią Ci każdy etap budowy i od wyboru wymarzonego domu po jego wykończenie. Zyskaj pewność, że podejmujesz najlepsze decyzje dzięki sprawdzonym wskazówkom od specjalistów z planz.pl
Wycena szacunkowa, w kwotach netto, nie zawiera instalacji.
bezpłatnie (0zł)
przelew zwykły / PayNow
przy odbiorze
2-5 dni roboczych (jeśli projekt nie jest koncepcją)
Bardzo przyjemny niewielki domek, podoba mi się jego bryła - niemal w kwadracie. Czy to wykończenie to cegła klinkierowa? Pozatym świetny układ pokoi na parterze z tym wyjsciem na taras, tylko ja bym jeszcze zrobił zadaszenie nad tarasem. A na górze przerobiłbym łazienkę na łazienkę plus garderobę.
Wybierz wygodny dla Ciebie czas kontaktu z naszym Doradcą Technicznym.