L-30 murowany



1. Wiatrołap | 3,50 m² |
2. Hol | 3,50 m² |
3. Schody | 2,90 m² |
4. Spiżarnia | 1,00 m² |
5. Salon z kuchnią | 33,50 m² |
6. Pokój | 9,70 m² |
7. łazienka | 2,70 m² |
8. Kotłownia | 6,20 m² |
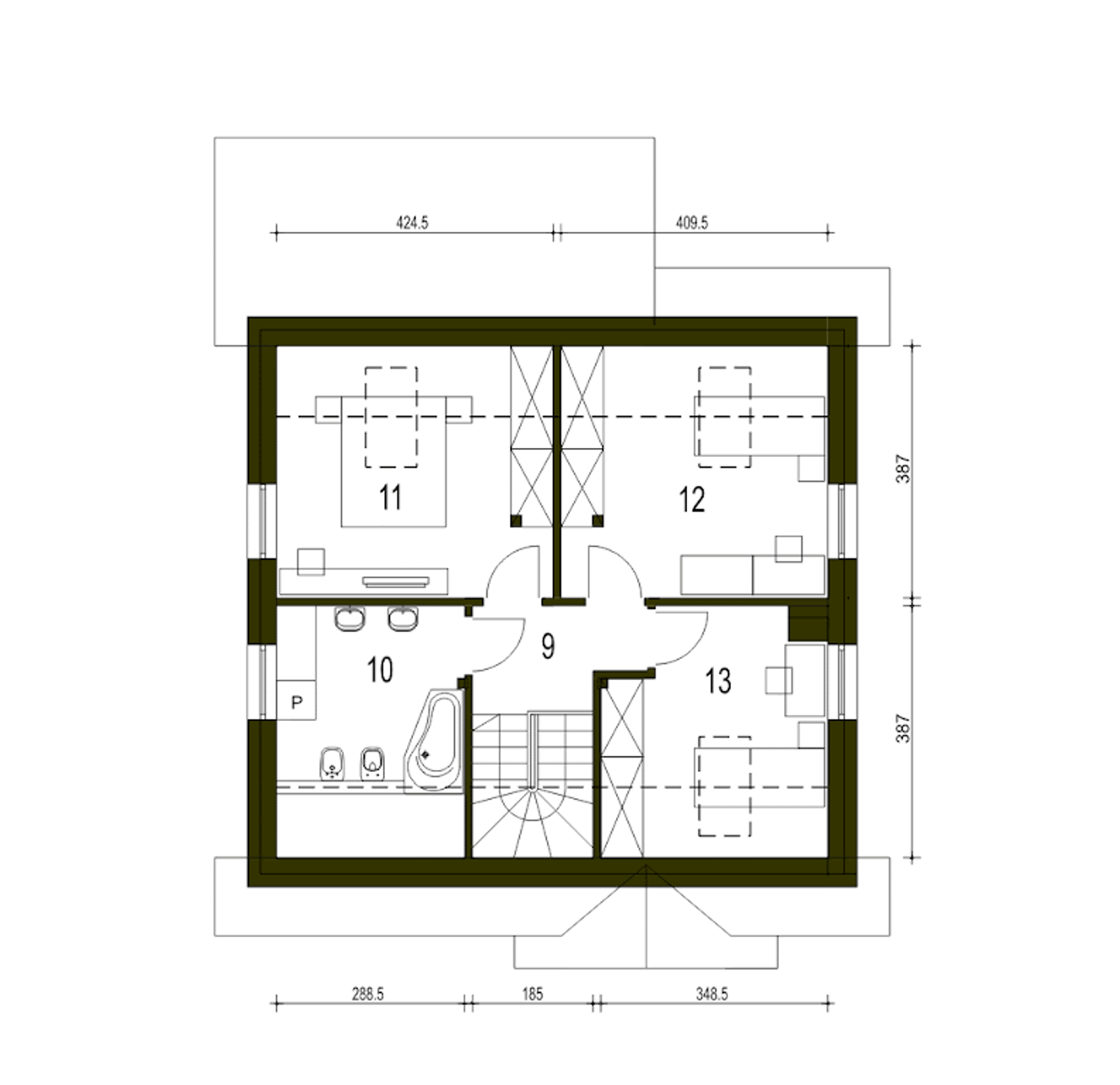
1. Przedpokój | 3,80 (3,80) m² |
2. łazienka | 8,40 (11,10) m² |
3. Sypialnia | 12,30 (16,40) m² |
4. Sypialnia | 11,90 (15,80) m² |
5. Sypialnia | 8,90 (12,30) m² |
Wypełnij formularz i otrzymaj rysunki w pdf z dokładnymi wymiarami budynku i pomieszczeń (długość, szerokość, wysokość) dla projektu Nela II bez garażu B
Pow. użytkowa 102.1 m² |
Ilość pokoi 5 |
Powierzchnia zabudowy 82.5 m² |
Kondygnacje parterowy+poddasze |
Garaż bez garażu |
Technologia murowany |
Szerokość działki 17.4 m |
Obiekt dom |
Typ domu jednorodzinny całoroczny |
Kubatura 311 m³ |
Rodzaj dachu dwuspadowy |
Powierzchnia dachu 158 m² |
Przechowywanie w kuchni spiżarnia |
Długość działki 17.1 m |
Wysokość budynku 7.9 m |
Bryła budynku prosta bryła |
Styl budynku tradycyjny |
Liczba łazieniek 2 |
Strop gęstożebrowy |
Szerokość budynku 9.4 m |
Kotłownia duża kotłownia |
Kąt nachylenia dachu 40 ° |
Kalenica równoległa do drogi |
Długość budynku 8.8 m |
Piwnica bez podpiwniczenia |
Koszty budowy tylko z kosztorysem, 200-250 tys. |
Pow. użytkowa 102.1 m² |
Powierzchnia zabudowy 82.5 m² |
Garaż bez garażu |
Szerokość działki 17.4 m |
Typ domu jednorodzinny całoroczny |
Rodzaj dachu dwuspadowy |
Przechowywanie w kuchni spiżarnia |
Wysokość budynku 7.9 m |
Styl budynku tradycyjny |
Strop gęstożebrowy |
Kotłownia duża kotłownia |
Kalenica równoległa do drogi |
Piwnica bez podpiwniczenia |
Ilość pokoi 5 |
Kondygnacje parterowy+poddasze |
Technologia murowany |
Obiekt dom |
Kubatura 311 m³ |
Powierzchnia dachu 158 m² |
Długość działki 17.1 m |
Bryła budynku prosta bryła |
Liczba łazieniek 2 |
Szerokość budynku 9.4 m |
Kąt nachylenia dachu 40 ° |
Długość budynku 8.8 m |
Koszty budowy tylko z kosztorysem, 200-250 tys. |
Kupując projekt w technologii murowanej powinieneś budować dom murowany. Zupełna zmiana technologii na szkieletową wymaga przeprojektowania całego budynku ( zmieniają się obciążenia, fundamenty, konstrukcja dachu). Wydamy zgodę na takie przeprojektowanie jednak wiążę się to z dużymi kosztami. Istnieją firmy wykonawcze, które podejmują się zmiany technologii budowy bezpłatnie przy skorzystaniu z ich usług wykonawczych. Zdarza się, że pracownia architektoniczna przygotowuje warianty konkretnego projektu przewidując także inne technologie. Prosimy o sprawdzenie czy istnieje poszukiwana wersja projektu, w zakładce - warianty projektu.
Zwężenie/poszerzenie budynku* to nic innego jak zmiana w projekcie. Istnieje możliwość wprowadzenia takich zmian, we własnym zakresie (podczas adaptacji). *zwężenie/poszerzenie budynku nie powinno stanowić problemu w przypadku domów o dachu dwuspadowym jeśli wiąże się to z wydłużeniem/skróceniem kalenicy dachu.
Poznaj praktyczne porady ekspertów, które ułatwią Ci każdy etap budowy i od wyboru wymarzonego domu po jego wykończenie. Zyskaj pewność, że podejmujesz najlepsze decyzje dzięki sprawdzonym wskazówkom od specjalistów z planz.pl
Wycena szacunkowa, w kwotach netto, nie zawiera instalacji.
bezpłatnie (0zł)
przelew zwykły / PayNow
przy odbiorze
3-5 dni roboczych (jeśli projekt nie jest koncepcją)
Wybierz wygodny dla Ciebie czas kontaktu z naszym Doradcą Technicznym.