Bono 2



1. Wiatrołap | 5,43 m² |
2. Hol | 7,96 m² |
3. Kuchnia | 12,14 m² |
4. Spiżarnia | 2,33 m² |
5. Jadalnia | 10,98 m² |
6. Pokój dzienny | 28,25 m² |
7. Gabinet | 13,10 m² |
8. Toaleta | 1,52 m² |
9. Pom. gospodarcze | 10,34 m² |
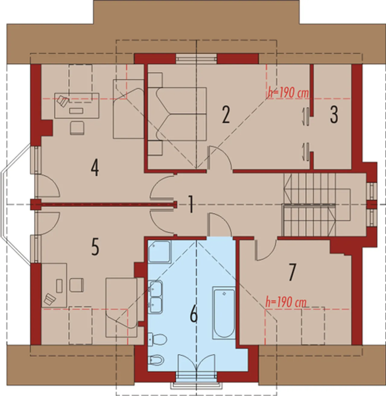
1. Korytarz | 7,58 m² |
2. Sypialnia | 17,81 m² |
3. Garderoba | 3,03 m² |
4. Pokój | 13,66 m² |
5. Pokój | 13,47 m² |
6. łazienka | 13,59 m² |
7. Garderoba | 9,43 m² |
Wypełnij formularz i otrzymaj rysunki w pdf z dokładnymi wymiarami budynku i pomieszczeń (długość, szerokość, wysokość) dla projektu Nadina
Ilość pokoi 4 |
Pow. użytkowa 170.62 m² |
Powierzchnia zabudowy 119.18 m² |
Kondygnacje parterowy+poddasze |
Garaż bez garażu |
Technologia murowany |
Szerokość działki 20.7 m |
Obiekt dom |
Typ domu jednorodzinny całoroczny |
Rodzaj dachu dwuspadowy |
Kominek kominek w projekcie |
Kubatura 533.37 m³ |
Przechowywanie w kuchni spiżarnia |
Taras z tarasem |
Ogrzewanie gaz, paliwo stałe |
Powierzchnia dachu 198.58 m² |
Piwnica bez podpiwniczenia |
Wysokość budynku 8.16 m |
Styl budynku tradycyjny |
Długość działki 22.1 m |
Kąt nachylenia dachu 35 ° |
Liczba łazieniek 1 |
Koszty budowy 350-400 tys., tylko z kosztorysem |
Ilość pokoi 4 |
Powierzchnia zabudowy 119.18 m² |
Garaż bez garażu |
Szerokość działki 20.7 m |
Typ domu jednorodzinny całoroczny |
Kominek kominek w projekcie |
Przechowywanie w kuchni spiżarnia |
Ogrzewanie gaz, paliwo stałe |
Piwnica bez podpiwniczenia |
Styl budynku tradycyjny |
Kąt nachylenia dachu 35 ° |
Koszty budowy 350-400 tys., tylko z kosztorysem |
Pow. użytkowa 170.62 m² |
Kondygnacje parterowy+poddasze |
Technologia murowany |
Obiekt dom |
Rodzaj dachu dwuspadowy |
Kubatura 533.37 m³ |
Taras z tarasem |
Powierzchnia dachu 198.58 m² |
Wysokość budynku 8.16 m |
Długość działki 22.1 m |
Liczba łazieniek 1 |
Kupując projekt w technologii murowanej powinieneś budować dom murowany. Zupełna zmiana technologii na szkieletową wymaga przeprojektowania całego budynku ( zmieniają się obciążenia, fundamenty, konstrukcja dachu). Wydamy zgodę na takie przeprojektowanie jednak wiążę się to z dużymi kosztami. Istnieją firmy wykonawcze, które podejmują się zmiany technologii budowy bezpłatnie przy skorzystaniu z ich usług wykonawczych. Zdarza się, że pracownia architektoniczna przygotowuje warianty konkretnego projektu przewidując także inne technologie. Prosimy o sprawdzenie czy istnieje poszukiwana wersja projektu, w zakładce - warianty projektu.
Zwężenie/poszerzenie budynku* to nic innego jak zmiana w projekcie. Istnieje możliwość wprowadzenia takich zmian, we własnym zakresie (podczas adaptacji). *zwężenie/poszerzenie budynku nie powinno stanowić problemu w przypadku domów o dachu dwuspadowym jeśli wiąże się to z wydłużeniem/skróceniem kalenicy dachu.
Poznaj praktyczne porady ekspertów, które ułatwią Ci każdy etap budowy i od wyboru wymarzonego domu po jego wykończenie. Zyskaj pewność, że podejmujesz najlepsze decyzje dzięki sprawdzonym wskazówkom od specjalistów z planz.pl
Wycena szacunkowa, w kwotach netto, nie zawiera instalacji.
bezpłatnie (0zł)
przelew zwykły / PayNow
przy odbiorze
3-5 dni roboczych (jeśli projekt nie wymaga aktualizacji)
Estetyka tego projektu robi ogromne wrażenie. Wygląd elewacji doskonale wpisuje się w otoczenie, a przestronność i rozplanowanie wnętrza zdaje się idealne dla nowoczesnej rodziny. Słowem, jest to niewątpliwie interesujący i inspirujący projekt.
Wybierz wygodny dla Ciebie czas kontaktu z naszym Doradcą Technicznym.