Morwa bez garażu bliźniak B-BL



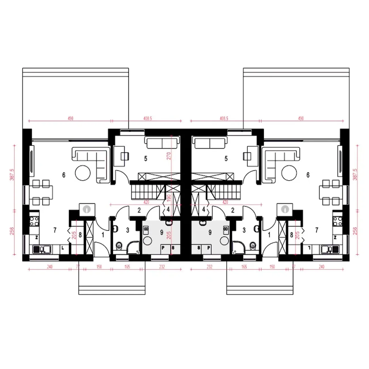
1. Wiatrołap | 3,00 m² |
2. Hol z garderobą | 5,50 m² |
3. łazienka | 3,30 m² |
4. Schody | 3,80 m² |
5. Pokój | 10,80 m² |
6. Salon | 22,80 m² |
7. Kuchnia | 6,30 m² |
8. Spiżarnia | 1,50 m² |
9. Pom. techniczne | 4,60 m² |
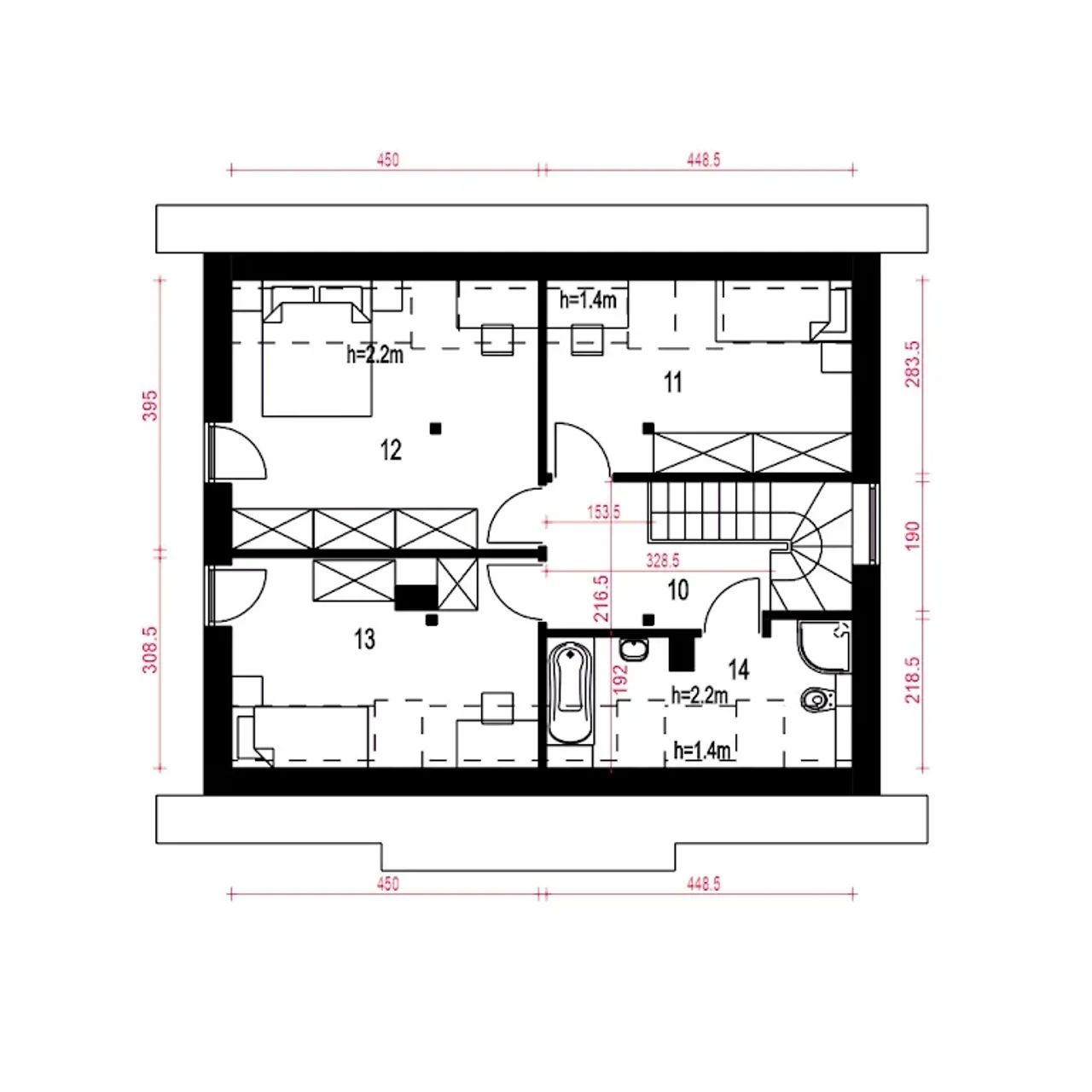
1. Hol | 5,50 (5,50) m² |
2. Pokój | 10,40 (12,60) m² |
3. Pokój | 13,60 (17,70) m² |
4. Pokój | 11,30 (13,50) m² |
5. łazienka | 6,40 (8,60) m² |
Wypełnij formularz i otrzymaj rysunki w pdf z dokładnymi wymiarami budynku i pomieszczeń (długość, szerokość, wysokość) dla projektu Morwa bez garażu B
Pow. użytkowa 103.9 m² |
Ilość pokoi 5 |
Powierzchnia zabudowy 79.2 m² |
Kondygnacje parterowy+poddasze |
Garaż bez garażu |
Technologia murowany |
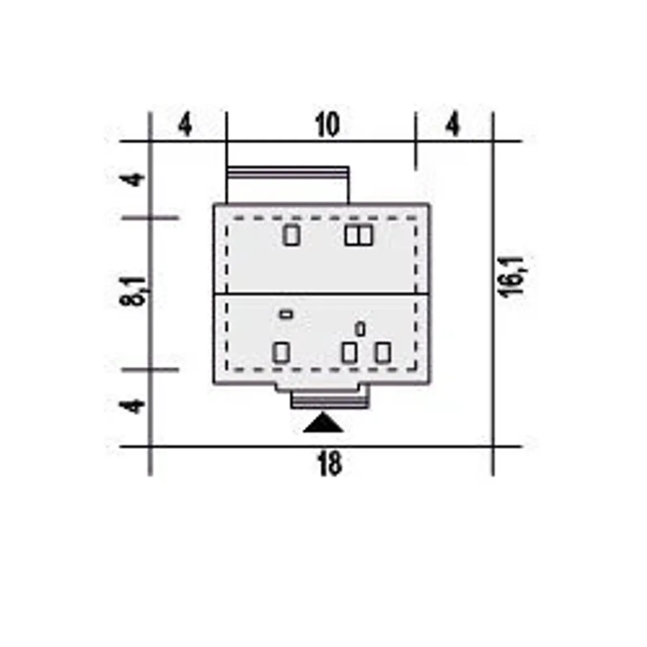
Szerokość działki 18 m |
Obiekt dom |
Typ domu jednorodzinny całoroczny |
Styl budynku nowoczesny |
Liczba łazieniek 2 |
Kąt nachylenia dachu 45 ° |
Szerokość budynku 10 m |
Kominek kominek w projekcie |
Strop gęstożebrowy |
Długość budynku 8.1 m |
Rodzaj dachu dwuspadowy |
Piwnica bez podpiwniczenia |
Kalenica równoległa do drogi |
Powierzchnia dachu 151.9 m² |
Przechowywanie w kuchni spiżarnia |
Wysokość budynku 8.8 m |
Długość działki 16.1 m |
Bryła budynku prosta bryła |
Koszty budowy tylko z kosztorysem, 200-250 tys. |
Pow. użytkowa 103.9 m² |
Powierzchnia zabudowy 79.2 m² |
Garaż bez garażu |
Szerokość działki 18 m |
Typ domu jednorodzinny całoroczny |
Liczba łazieniek 2 |
Szerokość budynku 10 m |
Strop gęstożebrowy |
Rodzaj dachu dwuspadowy |
Kalenica równoległa do drogi |
Przechowywanie w kuchni spiżarnia |
Długość działki 16.1 m |
Koszty budowy tylko z kosztorysem, 200-250 tys. |
Ilość pokoi 5 |
Kondygnacje parterowy+poddasze |
Technologia murowany |
Obiekt dom |
Styl budynku nowoczesny |
Kąt nachylenia dachu 45 ° |
Kominek kominek w projekcie |
Długość budynku 8.1 m |
Piwnica bez podpiwniczenia |
Powierzchnia dachu 151.9 m² |
Wysokość budynku 8.8 m |
Bryła budynku prosta bryła |
Kupując projekt w technologii murowanej powinieneś budować dom murowany. Zupełna zmiana technologii na szkieletową wymaga przeprojektowania całego budynku ( zmieniają się obciążenia, fundamenty, konstrukcja dachu). Wydamy zgodę na takie przeprojektowanie jednak wiążę się to z dużymi kosztami. Istnieją firmy wykonawcze, które podejmują się zmiany technologii budowy bezpłatnie przy skorzystaniu z ich usług wykonawczych. Zdarza się, że pracownia architektoniczna przygotowuje warianty konkretnego projektu przewidując także inne technologie. Prosimy o sprawdzenie czy istnieje poszukiwana wersja projektu, w zakładce - warianty projektu.
Zwężenie/poszerzenie budynku* to nic innego jak zmiana w projekcie. Istnieje możliwość wprowadzenia takich zmian, we własnym zakresie (podczas adaptacji). *zwężenie/poszerzenie budynku nie powinno stanowić problemu w przypadku domów o dachu dwuspadowym jeśli wiąże się to z wydłużeniem/skróceniem kalenicy dachu.
Poznaj praktyczne porady ekspertów, które ułatwią Ci każdy etap budowy i od wyboru wymarzonego domu po jego wykończenie. Zyskaj pewność, że podejmujesz najlepsze decyzje dzięki sprawdzonym wskazówkom od specjalistów z planz.pl
Wycena szacunkowa, w kwotach netto, nie zawiera instalacji.
bezpłatnie (0zł)
przelew zwykły / PayNow
przy odbiorze
3-5 dni roboczych (jeśli projekt nie jest koncepcją)
Wybierz wygodny dla Ciebie czas kontaktu z naszym Doradcą Technicznym.