Monika II z garażem i wiatą A1



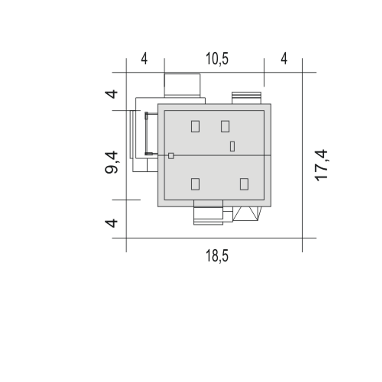
1. Wiatrołap | 4,00 m² |
2. Hol | 4,90 m² |
3. Kuchnia | 9,50 m² |
4. Salon | 25,50 m² |
5. Wc | 2,00 m² |
6. Schody | 4,00 m² |
7. Kotłownia* | 7,60 m² |
8. Garaż* | 16,70 m² |
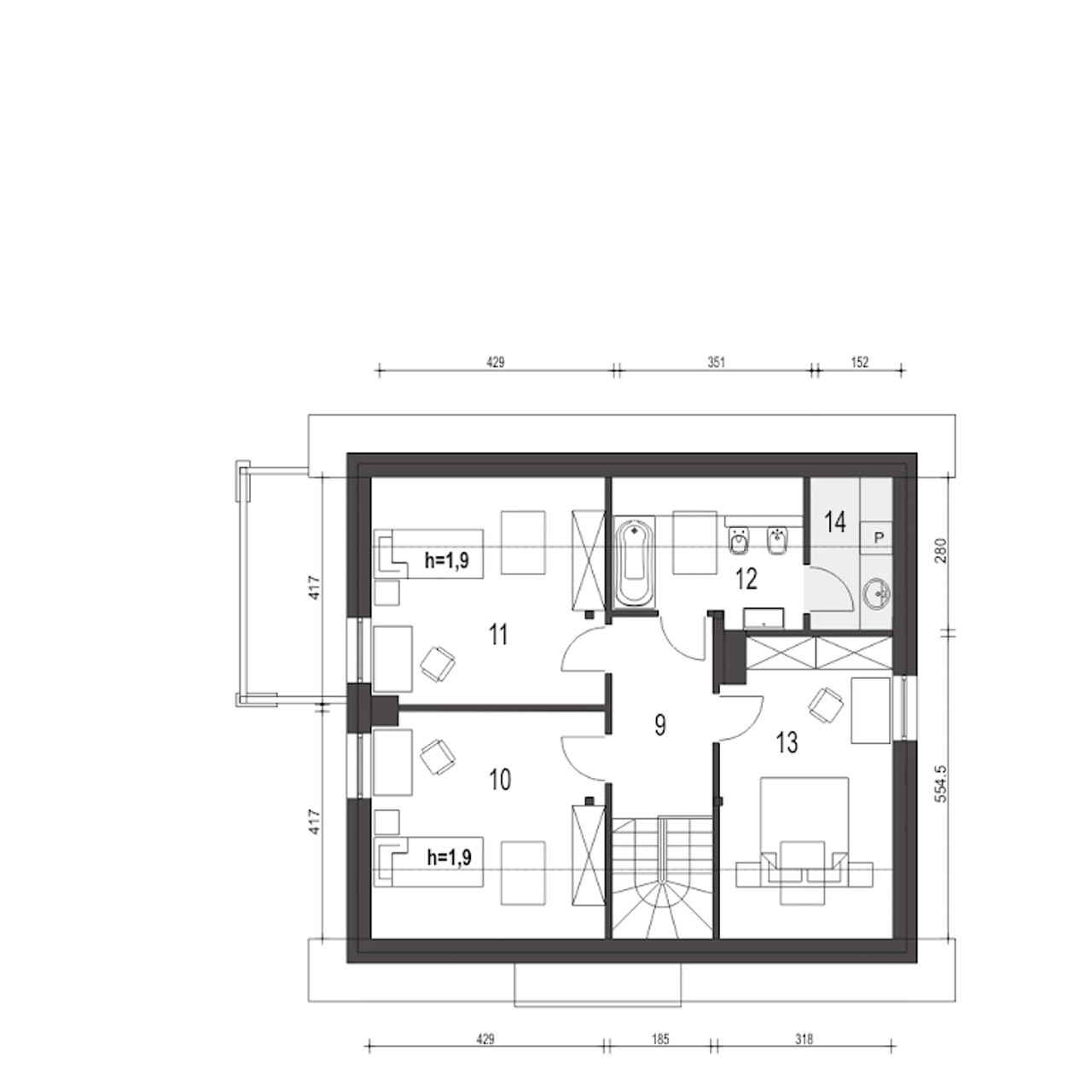
1. Przedpokój | 6,70 (6,70) m² |
2. Sypialnia | 12,20 (17,50) m² |
3. Sypialnia | 12,20 (17,60) m² |
4. łazienka | 4,50 (8,90) m² |
5. Sypialnia | 13,00 (16,90) m² |
6. Pralnia* | 2,30 (4,10) m² |
Wypełnij formularz i otrzymaj rysunki w pdf z dokładnymi wymiarami budynku i pomieszczeń (długość, szerokość, wysokość) dla projektu Monika II z garażem 1-st. A
Ilość pokoi 4 |
Pow. użytkowa 99.3 m² |
Powierzchnia zabudowy 97.5 m² |
Kondygnacje parterowy+poddasze |
Garaż 1 stanowisko |
Technologia murowany |
Szerokość działki 18.5 m |
Obiekt dom |
Typ domu jednorodzinny całoroczny |
Kominek kominek w projekcie |
Kąt nachylenia dachu 40 ° |
Kalenica równoległa do drogi |
Szerokość budynku 10.5 m |
Kotłownia duża kotłownia |
Funkcje dodatkowe z pralnią |
Długość budynku 9.4 m |
Rodzaj garażu w bryle |
Piwnica bez podpiwniczenia |
Powierzchnia dachu 167 m² |
Rodzaj dachu dwuspadowy |
Wysokość budynku 8.6 m |
Długość działki 17.4 m |
Bryła budynku prosta bryła |
Styl budynku nowoczesny |
Liczba łazieniek 1 |
Strop gęstożebrowy |
Koszty budowy tylko z kosztorysem, 200-250 tys. |
Ilość pokoi 4 |
Powierzchnia zabudowy 97.5 m² |
Garaż 1 stanowisko |
Szerokość działki 18.5 m |
Typ domu jednorodzinny całoroczny |
Kąt nachylenia dachu 40 ° |
Szerokość budynku 10.5 m |
Funkcje dodatkowe z pralnią |
Rodzaj garażu w bryle |
Powierzchnia dachu 167 m² |
Wysokość budynku 8.6 m |
Bryła budynku prosta bryła |
Liczba łazieniek 1 |
Koszty budowy tylko z kosztorysem, 200-250 tys. |
Pow. użytkowa 99.3 m² |
Kondygnacje parterowy+poddasze |
Technologia murowany |
Obiekt dom |
Kominek kominek w projekcie |
Kalenica równoległa do drogi |
Kotłownia duża kotłownia |
Długość budynku 9.4 m |
Piwnica bez podpiwniczenia |
Rodzaj dachu dwuspadowy |
Długość działki 17.4 m |
Styl budynku nowoczesny |
Strop gęstożebrowy |
Kupując projekt w technologii murowanej powinieneś budować dom murowany. Zupełna zmiana technologii na szkieletową wymaga przeprojektowania całego budynku ( zmieniają się obciążenia, fundamenty, konstrukcja dachu). Wydamy zgodę na takie przeprojektowanie jednak wiążę się to z dużymi kosztami. Istnieją firmy wykonawcze, które podejmują się zmiany technologii budowy bezpłatnie przy skorzystaniu z ich usług wykonawczych. Zdarza się, że pracownia architektoniczna przygotowuje warianty konkretnego projektu przewidując także inne technologie. Prosimy o sprawdzenie czy istnieje poszukiwana wersja projektu, w zakładce - warianty projektu.
Zwężenie/poszerzenie budynku* to nic innego jak zmiana w projekcie. Istnieje możliwość wprowadzenia takich zmian, we własnym zakresie (podczas adaptacji). *zwężenie/poszerzenie budynku nie powinno stanowić problemu w przypadku domów o dachu dwuspadowym jeśli wiąże się to z wydłużeniem/skróceniem kalenicy dachu.
Poznaj praktyczne porady ekspertów, które ułatwią Ci każdy etap budowy i od wyboru wymarzonego domu po jego wykończenie. Zyskaj pewność, że podejmujesz najlepsze decyzje dzięki sprawdzonym wskazówkom od specjalistów z planz.pl
Wycena szacunkowa, w kwotach netto, nie zawiera instalacji.
bezpłatnie (0zł)
przelew zwykły / PayNow
przy odbiorze
3-5 dni roboczych (jeśli projekt nie jest koncepcją)
Wybierz wygodny dla Ciebie czas kontaktu z naszym Doradcą Technicznym.