Mini 4 Energo



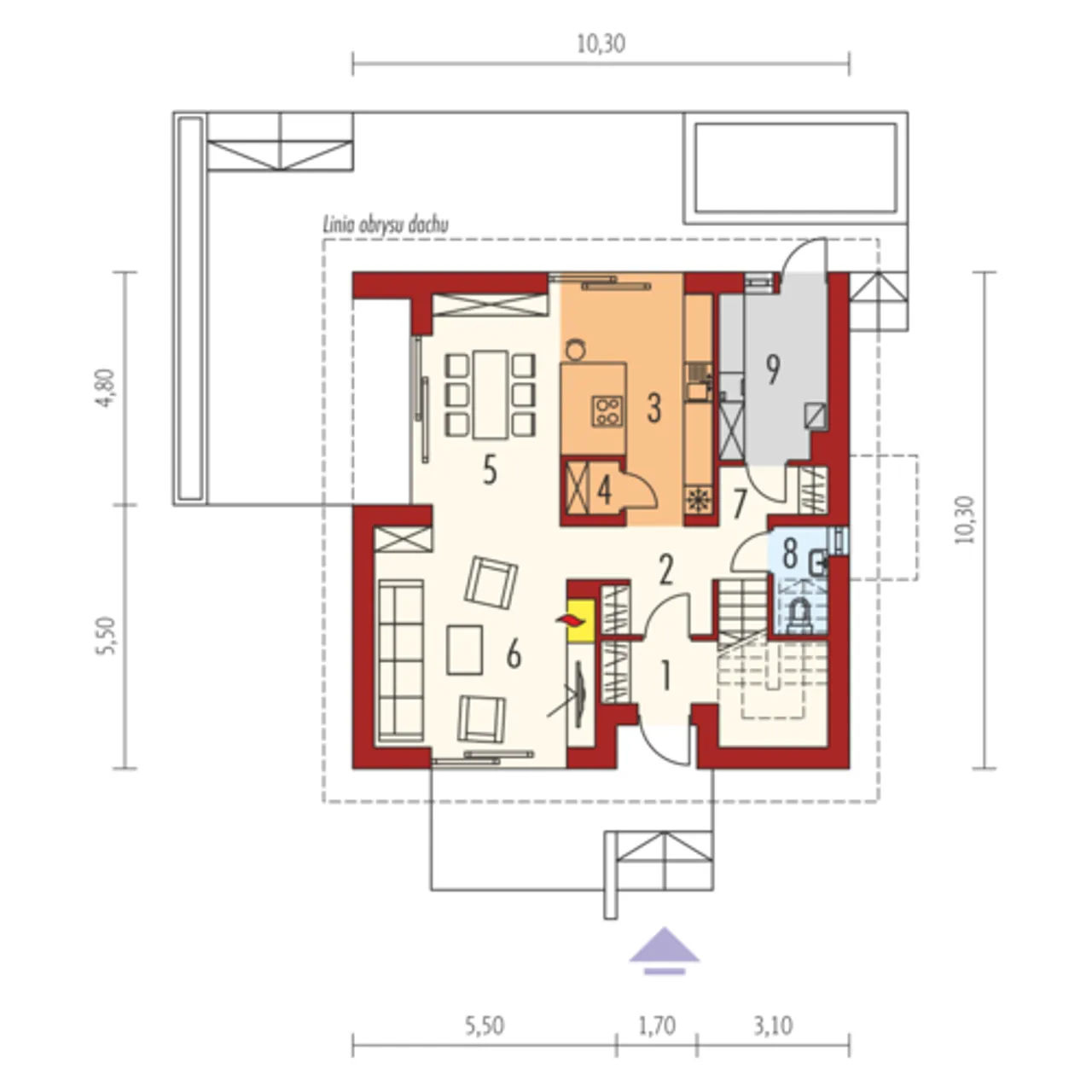
1. Wiatrołap + schody | 7,95 m² |
2. Hol + schody | 8,29 m² |
3. Kuchnia | 12,86 m² |
4. Spiżarnia | 1,17 m² |
5. Jadalnia | 12,57 m² |
6. Pokój dzienny | 19,64 m² |
7. Korytarz | 2,42 m² |
8. Toaleta | 2,45 m² |
9. Kotłownia | 7,39 m² |
1. Korytarz | 8,63 m² |
2. Sypialnia | 12,71 m² |
3. Garderoba | 4,85 m² |
4. Sypialnia | 12,99 m² |
5. Sypialnia | 10,88 m² |
6. łazienka | 6,47 m² |
Wypełnij formularz i otrzymaj rysunki w pdf z dokładnymi wymiarami budynku i pomieszczeń (długość, szerokość, wysokość) dla projektu Mini 5
Pow. użytkowa 123.88 m² |
Ilość pokoi 4 |
Powierzchnia zabudowy 105.47 m² |
Kondygnacje parterowy+poddasze |
Garaż bez garażu |
Technologia murowany |
Szerokość działki 18.3 m |
Obiekt dom |
Typ domu jednorodzinny całoroczny |
Kalenica równoległa do drogi |
Kubatura 445.39 m³ |
Powierzchnia dachu 181 m² |
Rodzaj dachu dwuspadowy |
Długość działki 18.3 m |
Ogrzewanie gaz, paliwo stałe |
Funkcje dodatkowe z dwoma wejściami |
Liczba łazieniek 1 |
Wysokość budynku 9.63 m |
Przechowywanie w kuchni spiżarnia |
Kominek kominek w projekcie |
Bryła budynku prosta bryła |
Kotłownia duża kotłownia |
Szerokość budynku 10.3 m |
Styl budynku nowoczesny |
Taras z tarasem |
Kąt nachylenia dachu 45 ° |
Strop gęstożebrowy |
Długość budynku 10.3 m |
Piwnica bez podpiwniczenia |
Koszty budowy 300-350 tys., tylko z kosztorysem |
Pow. użytkowa 123.88 m² |
Powierzchnia zabudowy 105.47 m² |
Garaż bez garażu |
Szerokość działki 18.3 m |
Typ domu jednorodzinny całoroczny |
Kubatura 445.39 m³ |
Rodzaj dachu dwuspadowy |
Ogrzewanie gaz, paliwo stałe |
Liczba łazieniek 1 |
Przechowywanie w kuchni spiżarnia |
Bryła budynku prosta bryła |
Szerokość budynku 10.3 m |
Taras z tarasem |
Strop gęstożebrowy |
Piwnica bez podpiwniczenia |
Ilość pokoi 4 |
Kondygnacje parterowy+poddasze |
Technologia murowany |
Obiekt dom |
Kalenica równoległa do drogi |
Powierzchnia dachu 181 m² |
Długość działki 18.3 m |
Funkcje dodatkowe z dwoma wejściami |
Wysokość budynku 9.63 m |
Kominek kominek w projekcie |
Kotłownia duża kotłownia |
Styl budynku nowoczesny |
Kąt nachylenia dachu 45 ° |
Długość budynku 10.3 m |
Koszty budowy 300-350 tys., tylko z kosztorysem |
Kupując projekt w technologii murowanej powinieneś budować dom murowany. Zupełna zmiana technologii na szkieletową wymaga przeprojektowania całego budynku ( zmieniają się obciążenia, fundamenty, konstrukcja dachu). Wydamy zgodę na takie przeprojektowanie jednak wiążę się to z dużymi kosztami. Istnieją firmy wykonawcze, które podejmują się zmiany technologii budowy bezpłatnie przy skorzystaniu z ich usług wykonawczych. Zdarza się, że pracownia architektoniczna przygotowuje warianty konkretnego projektu przewidując także inne technologie. Prosimy o sprawdzenie czy istnieje poszukiwana wersja projektu, w zakładce - warianty projektu.
Zwężenie/poszerzenie budynku* to nic innego jak zmiana w projekcie. Istnieje możliwość wprowadzenia takich zmian, we własnym zakresie (podczas adaptacji). *zwężenie/poszerzenie budynku nie powinno stanowić problemu w przypadku domów o dachu dwuspadowym jeśli wiąże się to z wydłużeniem/skróceniem kalenicy dachu.
Poznaj praktyczne porady ekspertów, które ułatwią Ci każdy etap budowy i od wyboru wymarzonego domu po jego wykończenie. Zyskaj pewność, że podejmujesz najlepsze decyzje dzięki sprawdzonym wskazówkom od specjalistów z planz.pl
Wycena szacunkowa, w kwotach netto, nie zawiera instalacji.
bezpłatnie (0zł)
przelew zwykły / PayNow
przy odbiorze
3-5 dni roboczych (jeśli projekt nie wymaga aktualizacji)
Wybierz wygodny dla Ciebie czas kontaktu z naszym Doradcą Technicznym.