Migdał



1. Wiatrołap | 3,81 m² |
2. Komunikacja + schody | 8,86 m² |
3. Salon | 26,16 m² |
4. Kuchnia | 10,54 m² |
5. łazienka | 1,85 m² |
6. Pom. gospodarcze / c.o. | 7,44 m² |
7. Spiżarka | 2,48 m² |
8. Garaż | 18,53 m² |
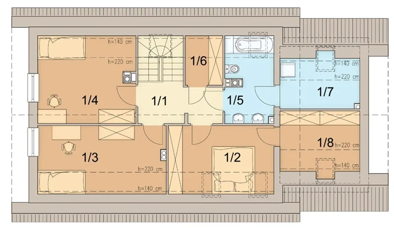
1. Komunikacja | 5,68 m² |
2. Pokój | 10,34 m² |
3. Pokój | 12,48 m² |
4. Pokój | 12,62 m² |
5. łazienka | 6,12 m² |
6. Garderoba | 2,40 m² |
7. Pralnia / suszarnia | 5,24 m² |
8. Garderoba | 6,70 m² |
Wypełnij formularz i otrzymaj rysunki w pdf z dokładnymi wymiarami budynku i pomieszczeń (długość, szerokość, wysokość) dla projektu Migdał 2
Pow. użytkowa 122.62 m² |
Ilość pokoi 5 |
Powierzchnia zabudowy 103.29 m² |
Kondygnacje parterowy+poddasze |
Garaż 1 stanowisko |
Technologia murowany |
Szerokość działki 21.3 m |
Obiekt dom |
Typ domu jednorodzinny całoroczny |
Powierzchnia dachu 205 m² |
Długość działki 16.15 m |
Ogrzewanie gaz, paliwo stałe |
Wysokość budynku 8.68 m |
Kalenica równoległa do drogi |
Styl budynku nowoczesny |
Liczba łazieniek 1 |
Szerokość budynku 14.3 m |
Kominek kominek w projekcie |
Kąt nachylenia dachu 45 ° |
Długość budynku 7.45 m |
Piwnica bez podpiwniczenia |
Kubatura 641 m³ |
Rodzaj dachu dwuspadowy |
Pow. użytkowa 122.62 m² |
Powierzchnia zabudowy 103.29 m² |
Garaż 1 stanowisko |
Szerokość działki 21.3 m |
Typ domu jednorodzinny całoroczny |
Długość działki 16.15 m |
Wysokość budynku 8.68 m |
Styl budynku nowoczesny |
Szerokość budynku 14.3 m |
Kąt nachylenia dachu 45 ° |
Piwnica bez podpiwniczenia |
Rodzaj dachu dwuspadowy |
Ilość pokoi 5 |
Kondygnacje parterowy+poddasze |
Technologia murowany |
Obiekt dom |
Powierzchnia dachu 205 m² |
Ogrzewanie gaz, paliwo stałe |
Kalenica równoległa do drogi |
Liczba łazieniek 1 |
Kominek kominek w projekcie |
Długość budynku 7.45 m |
Kubatura 641 m³ |
Odkryj projekt Migdał 2 - przemyślany model domu jednorodzinnego, łączący estetykę nowoczesnej bryły z funkcjonalnością rozwiązań technicznych. To propozycja stworzona z myślą o osobach ceniących niezawodne technologie budowlane i przestrzeń, która ewoluuje wraz z potrzebami rodziny. Dom wybudowany na podstawie projektu Migdał 2 pozwala poczuć się naprawdę "u siebie" od pierwszych chwil - bez zbędnych kompromisów.
Połącz ponadczasową wygodę parterowego układu z atrakcyjnym poddaszem i praktycznym garażem. Ten dom nie tylko inspiruje wyglądem - jego wnętrza dopracowano tak, by codzienność nabrała nowego wymiaru.
Projekt domu Migdał 2 opiera się na parterze z poddaszem użytkowym, oferując optymalny układ pięciu pokoi oraz wygodny garaż wkomponowany w bryłę budynku. Kąt nachylenia dachu 45° oraz tradycyjny, dwuspadowy dach z ceramiczną dachówką podkreślają trwałość, jakiej oczekują właściciele domów jednorodzinnych. Dzięki równoległej kalenicy dom można komfortowo usytuować na wielu rodzajach działek.
Solidne fundamenty żelbetowe i ściany z pustaków ceramicznych wpływają na wysoką odporność konstrukcji oraz ciepłochronność budynku. Drewno zastosowano w konstrukcji dachu, co przekłada się na estetykę i łatwość ewentualnej adaptacji poddasza. Dom wybudowany według projektu Migdał 2 to przestrzeń dla rodzin poszukujących funkcjonalnych rozwiązań bez rezygnacji z nowoczesnego klimatu.
Nie zwlekaj - wybierz projekt domu Migdał 2 i zbuduj przestrzeń, która dopasuje się do każdej fazy życia Twojej rodziny. Przekonaj się, jak praktyczna i stylowa może być codzienność w nowym domu!
Kupując projekt w technologii murowanej powinieneś budować dom murowany. Zupełna zmiana technologii na szkieletową wymaga przeprojektowania całego budynku ( zmieniają się obciążenia, fundamenty, konstrukcja dachu). Wydamy zgodę na takie przeprojektowanie jednak wiążę się to z dużymi kosztami. Istnieją firmy wykonawcze, które podejmują się zmiany technologii budowy bezpłatnie przy skorzystaniu z ich usług wykonawczych. Zdarza się, że pracownia architektoniczna przygotowuje warianty konkretnego projektu przewidując także inne technologie. Prosimy o sprawdzenie czy istnieje poszukiwana wersja projektu, w zakładce - warianty projektu.
Zwężenie/poszerzenie budynku* to nic innego jak zmiana w projekcie. Istnieje możliwość wprowadzenia takich zmian, we własnym zakresie (podczas adaptacji). *zwężenie/poszerzenie budynku nie powinno stanowić problemu w przypadku domów o dachu dwuspadowym jeśli wiąże się to z wydłużeniem/skróceniem kalenicy dachu.
Poznaj praktyczne porady ekspertów, które ułatwią Ci każdy etap budowy i od wyboru wymarzonego domu po jego wykończenie. Zyskaj pewność, że podejmujesz najlepsze decyzje dzięki sprawdzonym wskazówkom od specjalistów z planz.pl
bezpłatnie (0zł)
przelew zwykły / PayNow
przy odbiorze
3-5 dni roboczych (jeśli projekt nie wymaga aktualizacji)
Wybierz wygodny dla Ciebie czas kontaktu z naszym Doradcą Technicznym.