Mazurek z garażem 1-st. szeregówka A-SZ



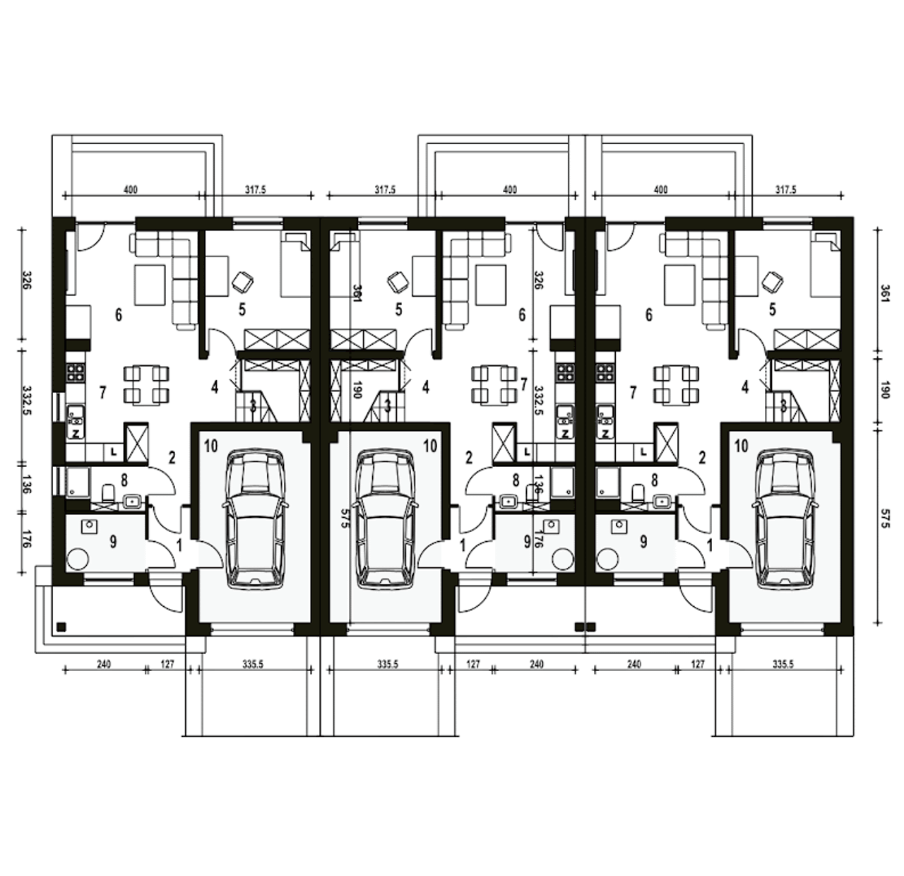
1. Wiatrołap | 2,40 m² |
2. Hol | 3,80 m² |
3. Schody | 4,20 m² |
4. Przedp.+spiżarnia | 3,40 m² |
5. Pokój | 11,50 m² |
6. Salon | 18,80 m² |
7. Kuchnia, jadalnia | 5,70 m² |
8. łazienka | 2,90 m² |
9. Pom.techniczne* | 4,10 m² |
10. Garaż* | 19,00 m² |
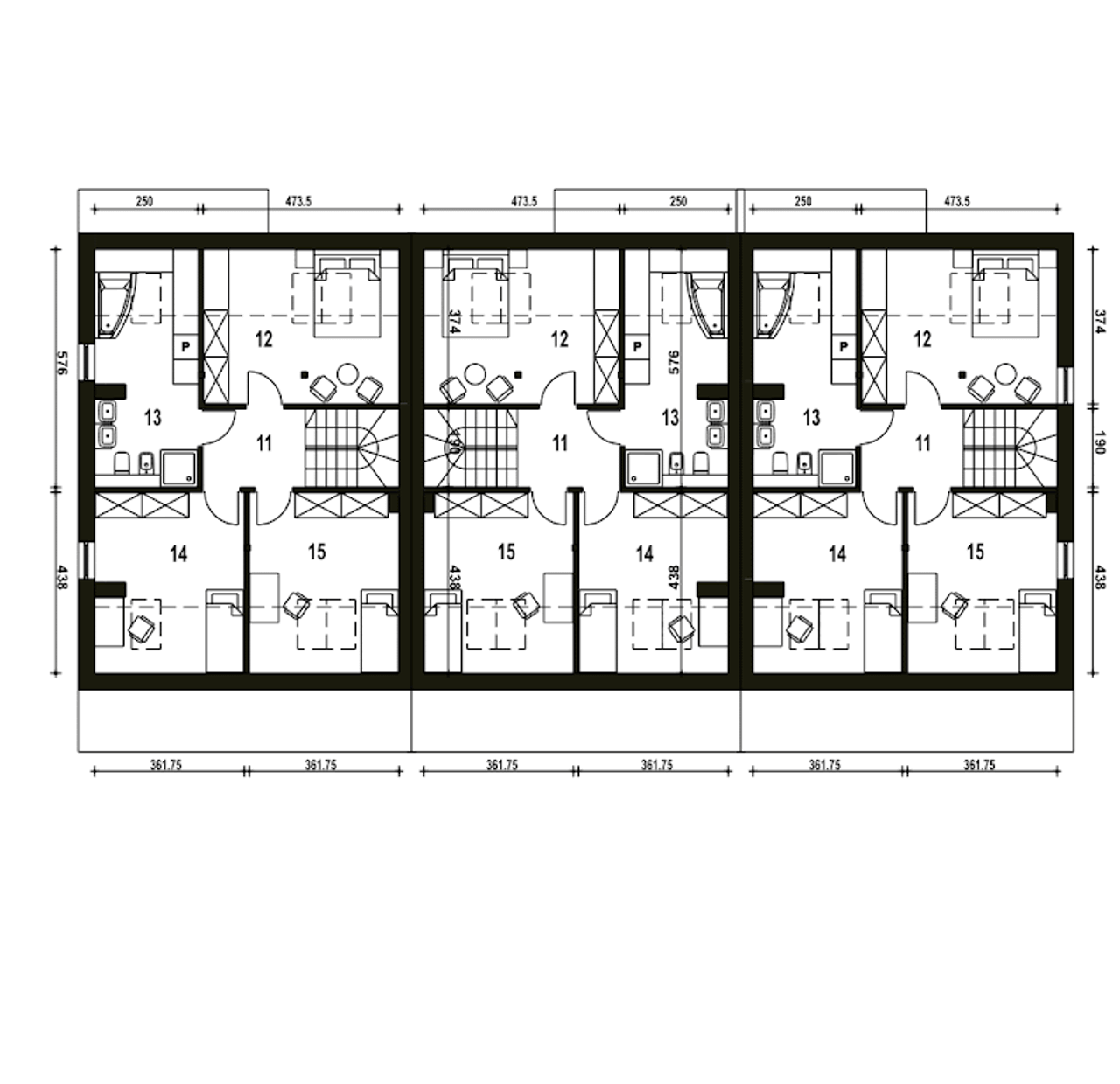
1. Przedpokój | 4,60 (4,60) m² |
2. Sypialnia | 11,60 (17,50) m² |
3. łazienka | 10,80 (13,90) m² |
4. Sypialnia | 11,30 (16,00) m² |
5. Sypialnia | 10,50 (14,80) m² |
Wypełnij formularz i otrzymaj rysunki w pdf z dokładnymi wymiarami budynku i pomieszczeń (długość, szerokość, wysokość) dla projektu Mazurek z garażem 1-st. bliźniak A-BL1
Pow. użytkowa 202.6 m² |
Ilość pokoi 5 |
Powierzchnia zabudowy 193.6 m² |
Kondygnacje parterowy+poddasze |
Garaż 1 stanowisko |
Technologia murowany |
Szerokość działki 24.2 m |
Obiekt dom |
Typ domu bliźniak i dwurodzinny |
Styl budynku nowoczesny |
Strop gęstożebrowy |
Liczba łazieniek 2 |
Kąt nachylenia dachu 35 ° |
Kalenica równoległa do drogi |
Szerokość budynku 16.2 m |
Kominek kominek w projekcie |
Długość budynku 12.7 m |
Rodzaj garażu w bryle |
Piwnica bez podpiwniczenia |
Powierzchnia dachu 221 m² |
Rodzaj dachu dwuspadowy |
Wysokość budynku 8.6 m |
Długość działki 20.7 m |
Bryła budynku prosta bryła |
Koszty budowy tylko z kosztorysem, 200-250 tys. |
Pow. użytkowa 202.6 m² |
Powierzchnia zabudowy 193.6 m² |
Garaż 1 stanowisko |
Szerokość działki 24.2 m |
Typ domu bliźniak i dwurodzinny |
Strop gęstożebrowy |
Kąt nachylenia dachu 35 ° |
Szerokość budynku 16.2 m |
Długość budynku 12.7 m |
Piwnica bez podpiwniczenia |
Rodzaj dachu dwuspadowy |
Długość działki 20.7 m |
Koszty budowy tylko z kosztorysem, 200-250 tys. |
Ilość pokoi 5 |
Kondygnacje parterowy+poddasze |
Technologia murowany |
Obiekt dom |
Styl budynku nowoczesny |
Liczba łazieniek 2 |
Kalenica równoległa do drogi |
Kominek kominek w projekcie |
Rodzaj garażu w bryle |
Powierzchnia dachu 221 m² |
Wysokość budynku 8.6 m |
Bryła budynku prosta bryła |
Kupując projekt w technologii murowanej powinieneś budować dom murowany. Zupełna zmiana technologii na szkieletową wymaga przeprojektowania całego budynku ( zmieniają się obciążenia, fundamenty, konstrukcja dachu). Wydamy zgodę na takie przeprojektowanie jednak wiążę się to z dużymi kosztami. Istnieją firmy wykonawcze, które podejmują się zmiany technologii budowy bezpłatnie przy skorzystaniu z ich usług wykonawczych. Zdarza się, że pracownia architektoniczna przygotowuje warianty konkretnego projektu przewidując także inne technologie. Prosimy o sprawdzenie czy istnieje poszukiwana wersja projektu, w zakładce - warianty projektu.
Zwężenie/poszerzenie budynku* to nic innego jak zmiana w projekcie. Istnieje możliwość wprowadzenia takich zmian, we własnym zakresie (podczas adaptacji). *zwężenie/poszerzenie budynku nie powinno stanowić problemu w przypadku domów o dachu dwuspadowym jeśli wiąże się to z wydłużeniem/skróceniem kalenicy dachu.
Poznaj praktyczne porady ekspertów, które ułatwią Ci każdy etap budowy i od wyboru wymarzonego domu po jego wykończenie. Zyskaj pewność, że podejmujesz najlepsze decyzje dzięki sprawdzonym wskazówkom od specjalistów z planz.pl
Wycena szacunkowa, w kwotach netto, nie zawiera instalacji.
bezpłatnie (0zł)
przelew zwykły / PayNow
przy odbiorze
3-5 dni roboczych (jeśli projekt nie jest koncepcją)
Wybierz wygodny dla Ciebie czas kontaktu z naszym Doradcą Technicznym.