22 299 20 00 (pn-nd 9.30 do 19.30)

Gotowy projekt domu Małgosia DD - bliźniak L.LL (ID: 33685)

8551 2026-01-19
Małgosia DD - bliźniak L.LL - 143.5m²
Dostawa w ciągu 3-10 dni
Gwarantujemy najniższą cenę
8551 zł
W cenie projektu:
📣 GRATIS: WIERTARKA UDAROWA
  • Tablica + dziennik budowy
  • 16 projektów ogrodowych
  • Darmowa wysyłka (kurier, paczkomat, pobranie)
  • 30 dni na zwrot
  • Pozwolenie na zmiany z podpisem i pieczęcią autora
  • GRATIS: Wiertarka Udarowa
22 299 20 00 (pn-nd 9.30 do 19.30)


Zawartość projektu

3 egzemplarze projektu archtektoniczno budowlanego + 3 egzemplarze projektu technicznego.

Dokumentacja projektowa zgodnie z nowymi przepisami WT2021 dostarczana jest w formie: 3+3 egzemplarze, czyli w dwóch częściach zawierających:
 
I - projekt architektoniczno-budowlany (opis i rysunki, analiza możliwości wykorzystania alternatywnych systemów zaopatrzenia w energię i ciepło
II - projekt techniczny, obejmujący:opracowanie konstrukcyjne (opis i wyciąg z obliczeń konstrukcji), projekt wewnętrznych instalacji sanitarnych (wodnej, kanalizacyjnej, gazowej, ogrzewanie), projekt wewnętrznych instalacji elektrycznych, projektowaną charakterystykę energetyczną.
 
W części architektonicznej znajdują się:

- Opis architektoniczno - budowlany
- Część rysunkowa (elewacje, rzuty, przekroje, zestawienie stolarki)

Projekt techniczny zawiera:

- Projekt konstrukcji
- Instalacje sanitarne + gazowe/ sanitarne + paliwo stałe
- instalacje elektryczne

Zawartość projektu nie dotyczy budynków gospodarczych, garaży oraz obiektów malej architektury.
Zawartość projektów bez rozrysowanej na rzucie kotłowni/łazienki/kuchni może nie obejmować schematów c.o. i wodno-kanalizacyjnych. W przypadku obiektów małej architektury - również może nie zawierać schematów instalacji elektrycznej.

Rzuty gotowego projektu domu Małgosia DD - bliźniak L.LL

1. Wiatrołap 6,00 m²
2. Korytarz 9,00 m²
3. Pokójdzienny 24,40 m²
4. Kuchnia 11,20 m²
5. Kotłownia 3,90 m²
6. Toaleta 1,80 m²
7. Pokój 11,90 m²
8. łazienka 6,00 m²
9. Pokój 11,90 m²
10. Pokój 12,50 m²
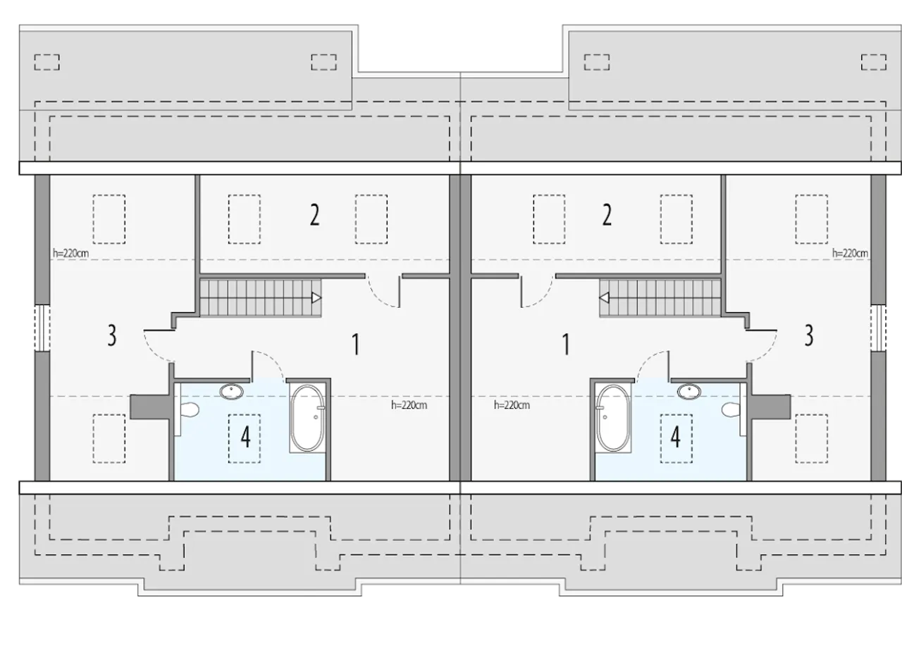
1. Korytarz 18,00 m²
2. Pokój 6,60 m²
3. Pokój 16,30 m²
4. Pokój 4,00 m²

Zapoznaj się ze szczegółami projektu - zamów bezpłatne rysunki do: Małgosia DD - bliźniak L.LL

Wypełnij formularz i otrzymaj na podany adres e-mail rysunki w pdf z dokładnymi wymiarami budynku i pomieszczeń (długość, szerokość, wysokość) dla projektu Małgosia DD - bliźniak L.LL

Parametry Techniczne gotowego projektu domu Małgosia DD - bliźniak L.LL

Pow. użytkowa 143.5 m²
Powierzchnia zabudowy 139.16 m²
Kondygnacje parterowy+poddasze
Garaż bez garażu
Technologia murowany
Szerokość działki 14.9 m
Obiekt dom
Typ domu bliźniak i dwurodzinny
Kąt nachylenia dachu 30 °
Długość działki 20.22 m
Kalenica równoległa do drogi
Wysokość budynku 6.98 m
Liczba łazieniek 3
Piwnica bez podpiwniczenia
Rodzaj dachu dwuspadowy
Koszty budowy 300-350 tys., tylko z kosztorysem

Nasze prawdziwe opinie z Google

Częste pytania

Czy projekty z Planz.pl są kompletne?

Tak. Projekty dostępne na Planz.pl zawierają pełną dokumentację potrzebną do uzyskania pozwolenia na budowę i stanowią gwarancję sprawnej realizacji budowy.

Jesteśmy oficjalnym partnerem ponad 50 pracowni architektonicznych z całej Polski - dlatego każdy projekt pochodzi wyłącznie od autorów zrzeszonych w Izbie Architektów RP. 

Planz.pl to polska firma działającą na rynku od 15 lat. Mamy tysiące zadowolonych klientów, doskonałe opinie i oferujemy wsparcie również po zakupie, doradzamy, pomagamy w adaptacji i pozostajemy w kontakcie na każdym etapie inwestycji.

Dodatkowo do każdego projektu dodajemy tablicę informacyjną, dziennik budowy oraz 16 projektów elektronicznych drewnianej architektury ogrodowej. A dzięki naszej współpracy z producentami sprzętu elektrycznego, oferujemy możliwość otrzymania np. Wiertarki udarowej w formie atrakcyjnego gratisu.

Wybierając Planz.pl, otrzymujesz ten sam oryginalny projekt od autora, wzbogacony o realne dodatki, które ułatwiają rozpoczęcie budowy.

Czy mogę wprowadzić zmiany w projekcie?

Co zrobić gdy wybrany dom nie mieści się na działce?

Jakie zmiany można wprowadzić w projekcie?

Porady ekspertów

Poznaj praktyczne porady ekspertów, które ułatwią Ci każdy etap budowy i od wyboru wymarzonego domu po jego wykończenie. Zyskaj pewność, że podejmujesz najlepsze decyzje dzięki sprawdzonym wskazówkom od specjalistów z planz.pl

Co zawiera projekt

  • ✓ 3 x projekt architektoniczno-budowlany ➞ szczegóły
  • ✓ Projekty techniczne ➞ szczegóły
  • ✓ charakterystyka energetyczna (do projektów domów)
  • ✓ zgoda na zmiany w projekcie ➞ szczegóły
  • ✓ GRATIS: Wiertarka (do projektów w cenie od 3000 zł)
  • ✓ GRATIS: 16 projektów (drewutni, altany i wiaty)
  • ✓ GRATIS: tablica i dziennik budowy
  • ✓ GRATIS: przesyłka kurierska

Dodatki do projektu Małgosia DD - bliźniak L.LL

Dodatki możesz kupić razem z projektem lub dokupić po czasie

[Hor] Wentylacja mechaniczna z rekuperacją (750 zł)

[Hor] Projekt instalacji pompy ciepła (1000 zł)

[Hor] Płyta fundamentowa (1800 zł)

[Hor] Ogrzewanie podłogowe (800 zł)

[Hor] Egzemplarz archiwalny projektu (300 zł)

[Hor] Strop monolityczny (1900 zł)

[Planz] Tablica budowlana (0 zł)

[Planz] Dziennik budowy (0 zł)

[Planz] Wiertarka udarowa (0 zł)

[Planz] Zgoda na zmiany w projekcie (0 zł)

[Planz] Projekty architektury ogrodowej (0 zł)

[Planz] Charakterystyka energetyczna, tylko dla domów całorocznych (0 zł)

Wysyłka i płatność za projekt Małgosia DD - bliźniak L.LL

Koszty wysyłki

bezpłatnie (0zł)

Formy płatności

przelew zwykły / PayNow
przy odbiorze

Czas oczekiwania

4-8 dni roboczych (jeśli projekt nie wymaga aktualizacji)

 

Komentarze / pytania do projektu domu Małgosia DD - bliźniak L.LL

Lena

Zachwycający projekt domu Małgosia DD - bliźniak L.LL to prawdziwy klejnot wśród współczesnych realizacji architektonicznych, idealnie harmonizujący funkcjonalność z elegancką estetyką. Jego wyjątkowa forma bliźniaka pozwala na wygodną koegzystencję dwóch rodzin, zachowując przy tym intymność i niezależność każdej z nich. Zmysłowe linie architektoniczne i przemyślany rozkład pomieszczeń sprawiają, że życie w takim domu to czysta przyjemność. Szczególnie urzeka przestronność i świetliste wnętrza, które stwarzają poczucie ciepła i domowego ogniska. To idealne rozwiązanie dla tych, którzy marzą o eleganckim, ale jednocześnie przytulnym i funkcjonalnym miejscu dla swojej rodziny. Projekt Małgosia DD - bliźniak L.LL to zdecydowanie wybór, który zapewni nie tylko komfortowe życie, ale też stanie się źródłem dumy i zadowolenia.

Szacunkowy kosztorys dla projektu Małgosia DD - bliźniak L.LL

Stan surowy zamknięty 196500 zł
Stan surowy zamknięty
Stan deweloperski 309000 zł
Stan deweloperski

Wycena szacunkowa, w kwotach netto, nie zawiera instalacji.

PRACOWNIA: Horyzont