Makolągwa z garażem 1-st. A



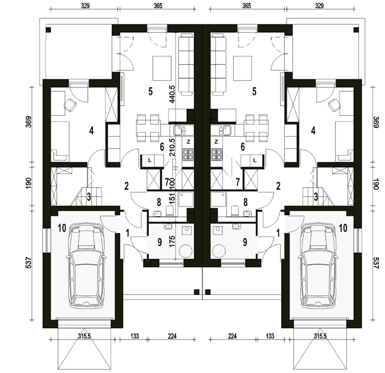
1. Wiatrołap | 3,00 m² |
2. Komunik., garderoba | 6,70 m² |
3. Schody | 4,20 m² |
4. Pokój | 10,70 m² |
5. Salon | 16,00 m² |
6. Kuchnia, jadalnia | 8,30 m² |
7. Spiżarnia | 1,50 m² |
8. łazienka | 3,00 m² |
9. Pom.techniczne* | 3,80 m² |
10. Garaż* | 16,60 m² |
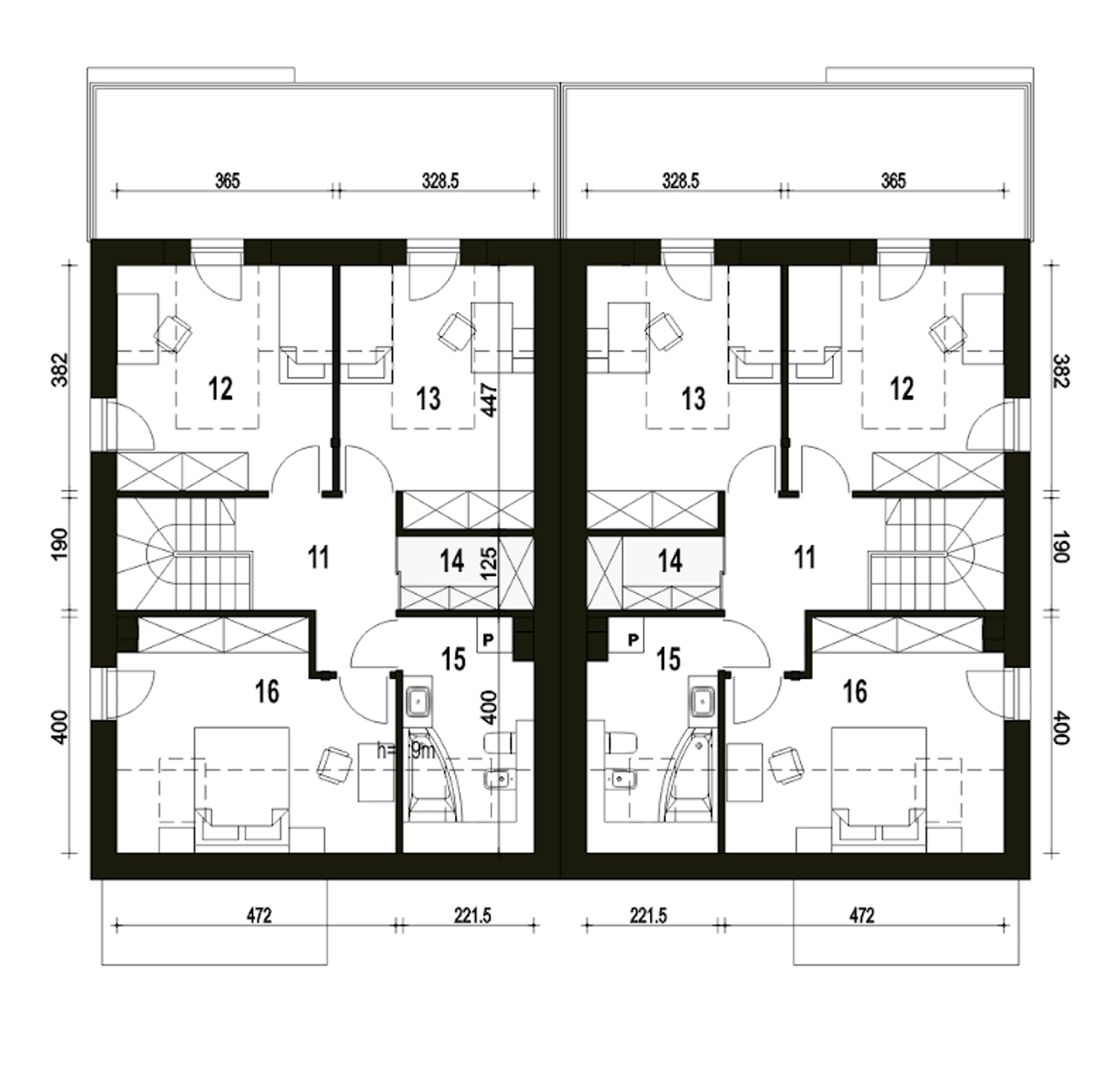
1. Przedpokój | 6,20 (6,20) m² |
2. Sypialnia | 9,20 (13,70) m² |
3. Sypialnia | 9,60 (13,50) m² |
4. Garderoba* | 2,90 (2,90) m² |
5. łazienka | 5,70 (6,10) m² |
6. Sypialnia | 11,10 (17,00) m² |
Wypełnij formularz i otrzymaj rysunki w pdf z dokładnymi wymiarami budynku i pomieszczeń (długość, szerokość, wysokość) dla projektu Makolągwa z garażem 1-st. bliźniak A-BL2
Ilość pokoi 5 |
Pow. użytkowa 190.2 m² |
Powierzchnia zabudowy 194.6 m² |
Kondygnacje parterowy+poddasze |
Garaż 1 stanowisko |
Technologia murowany |
Szerokość działki 23.6 m |
Obiekt dom |
Typ domu bliźniak i dwurodzinny |
Szerokość budynku 7.8 m |
Rodzaj garażu z przodu |
Kominek kominek w projekcie |
Kalenica równoległa do drogi |
Długość budynku 15.1 m |
Rodzaj dachu dwuspadowy |
Piwnica bez podpiwniczenia |
Funkcje dodatkowe z lukarnami |
Powierzchnia dachu 199.6 m² |
Przechowywanie w kuchni spiżarnia |
Wysokość budynku 8.5 m |
Długość działki 23.1 m |
Styl budynku nowoczesny |
Liczba łazieniek 2 |
Kąt nachylenia dachu 35 ° |
Strop gęstożebrowy |
Koszty budowy tylko z kosztorysem, 200-250 tys. |
Ilość pokoi 5 |
Powierzchnia zabudowy 194.6 m² |
Garaż 1 stanowisko |
Szerokość działki 23.6 m |
Typ domu bliźniak i dwurodzinny |
Rodzaj garażu z przodu |
Kalenica równoległa do drogi |
Rodzaj dachu dwuspadowy |
Funkcje dodatkowe z lukarnami |
Przechowywanie w kuchni spiżarnia |
Długość działki 23.1 m |
Liczba łazieniek 2 |
Strop gęstożebrowy |
Pow. użytkowa 190.2 m² |
Kondygnacje parterowy+poddasze |
Technologia murowany |
Obiekt dom |
Szerokość budynku 7.8 m |
Kominek kominek w projekcie |
Długość budynku 15.1 m |
Piwnica bez podpiwniczenia |
Powierzchnia dachu 199.6 m² |
Wysokość budynku 8.5 m |
Styl budynku nowoczesny |
Kąt nachylenia dachu 35 ° |
Koszty budowy tylko z kosztorysem, 200-250 tys. |
Kupując projekt w technologii murowanej powinieneś budować dom murowany. Zupełna zmiana technologii na szkieletową wymaga przeprojektowania całego budynku ( zmieniają się obciążenia, fundamenty, konstrukcja dachu). Wydamy zgodę na takie przeprojektowanie jednak wiążę się to z dużymi kosztami. Istnieją firmy wykonawcze, które podejmują się zmiany technologii budowy bezpłatnie przy skorzystaniu z ich usług wykonawczych. Zdarza się, że pracownia architektoniczna przygotowuje warianty konkretnego projektu przewidując także inne technologie. Prosimy o sprawdzenie czy istnieje poszukiwana wersja projektu, w zakładce - warianty projektu.
Zwężenie/poszerzenie budynku* to nic innego jak zmiana w projekcie. Istnieje możliwość wprowadzenia takich zmian, we własnym zakresie (podczas adaptacji). *zwężenie/poszerzenie budynku nie powinno stanowić problemu w przypadku domów o dachu dwuspadowym jeśli wiąże się to z wydłużeniem/skróceniem kalenicy dachu.
Poznaj praktyczne porady ekspertów, które ułatwią Ci każdy etap budowy i od wyboru wymarzonego domu po jego wykończenie. Zyskaj pewność, że podejmujesz najlepsze decyzje dzięki sprawdzonym wskazówkom od specjalistów z planz.pl
Wycena szacunkowa, w kwotach netto, nie zawiera instalacji.
bezpłatnie (0zł)
przelew zwykły / PayNow
przy odbiorze
3-5 dni roboczych (jeśli projekt nie jest koncepcją)
Wybierz wygodny dla Ciebie czas kontaktu z naszym Doradcą Technicznym.