Magnetyt z garażem 2-st. A



1. Wiatrołap+garderoba | 7,60 m² |
2. Spiżarnia | 3,30 m² |
3. Kuchnia | 16,20 m² |
4. Jadalnia | 19,50 m² |
5. Salon | 32,70 m² |
6. Korytarz | 12,80 m² |
7. Pokój | 17,90 m² |
8. łazienka | 6,00 m² |
9. Pokój | 13,50 m² |
10. Pokój | 12,70 m² |
11. łazienka | 8,90 m² |
12. Wc | 1,90 m² |
13. Pokój | 13,70 m² |
14. Pom. tech. co, pralnia | 5,40 m² |
15. Garaż | 39,90 m² |
Wypełnij formularz i otrzymaj rysunki w pdf z dokładnymi wymiarami budynku i pomieszczeń (długość, szerokość, wysokość) dla projektu Magnetyt z garażem 2-st. A
Pow. użytkowa 166.5 m² |
Ilość pokoi 5 |
Powierzchnia zabudowy 261.5 m² |
Kondygnacje parterowy |
Garaż 2 stanowiska |
Technologia murowany |
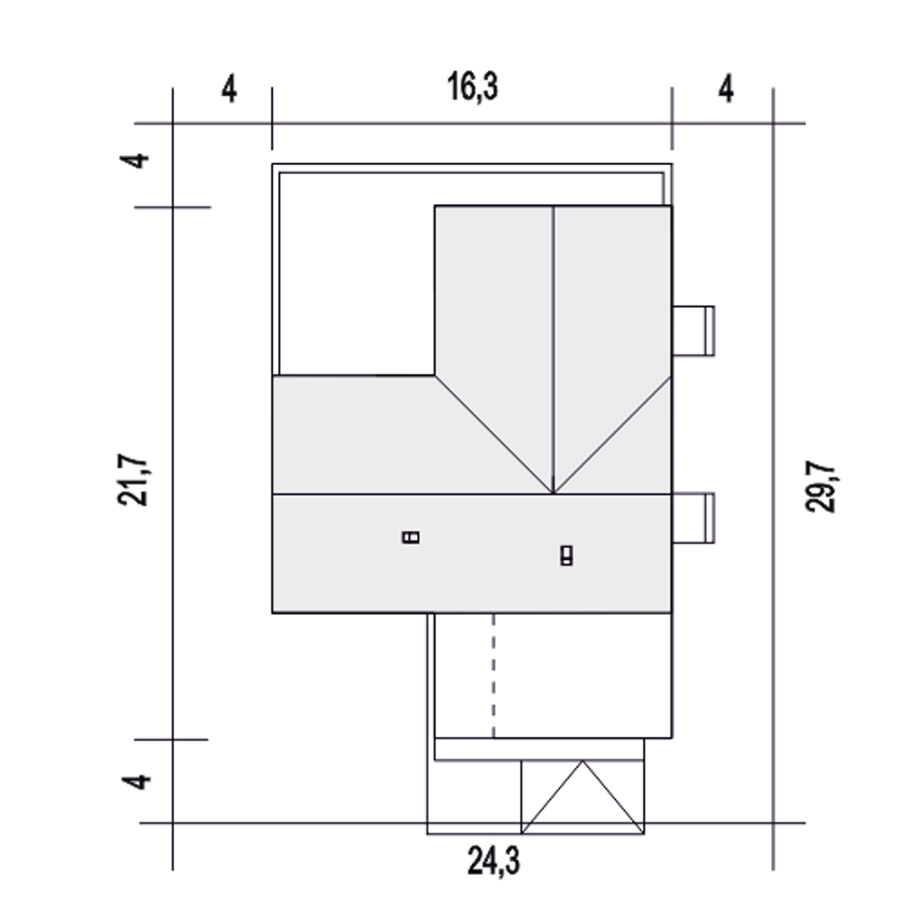
Szerokość działki 24.3 m |
Obiekt dom |
Typ domu jednorodzinny całoroczny |
Styl budynku nowoczesny |
Liczba łazieniek 2 |
Kąt nachylenia dachu 35 ° |
Szerokość budynku 16.3 m |
Kominek kominek w projekcie |
Kalenica równoległa do drogi |
Długość budynku 21.7 m |
Rodzaj garażu z przodu |
Piwnica bez podpiwniczenia |
Powierzchnia dachu 275 m² |
Rodzaj dachu dwuspadowy |
Wysokość budynku 7 m |
Przechowywanie w kuchni spiżarnia |
Długość działki 29.7 m |
Bryła budynku plan litery T |
Koszty budowy 400-450 tys., tylko z kosztorysem |
Pow. użytkowa 166.5 m² |
Powierzchnia zabudowy 261.5 m² |
Garaż 2 stanowiska |
Szerokość działki 24.3 m |
Typ domu jednorodzinny całoroczny |
Liczba łazieniek 2 |
Szerokość budynku 16.3 m |
Kalenica równoległa do drogi |
Rodzaj garażu z przodu |
Powierzchnia dachu 275 m² |
Wysokość budynku 7 m |
Długość działki 29.7 m |
Koszty budowy 400-450 tys., tylko z kosztorysem |
Ilość pokoi 5 |
Kondygnacje parterowy |
Technologia murowany |
Obiekt dom |
Styl budynku nowoczesny |
Kąt nachylenia dachu 35 ° |
Kominek kominek w projekcie |
Długość budynku 21.7 m |
Piwnica bez podpiwniczenia |
Rodzaj dachu dwuspadowy |
Przechowywanie w kuchni spiżarnia |
Bryła budynku plan litery T |
Kupując projekt w technologii murowanej powinieneś budować dom murowany. Zupełna zmiana technologii na szkieletową wymaga przeprojektowania całego budynku ( zmieniają się obciążenia, fundamenty, konstrukcja dachu). Wydamy zgodę na takie przeprojektowanie jednak wiążę się to z dużymi kosztami. Istnieją firmy wykonawcze, które podejmują się zmiany technologii budowy bezpłatnie przy skorzystaniu z ich usług wykonawczych. Zdarza się, że pracownia architektoniczna przygotowuje warianty konkretnego projektu przewidując także inne technologie. Prosimy o sprawdzenie czy istnieje poszukiwana wersja projektu, w zakładce - warianty projektu.
Zwężenie/poszerzenie budynku* to nic innego jak zmiana w projekcie. Istnieje możliwość wprowadzenia takich zmian, we własnym zakresie (podczas adaptacji). *zwężenie/poszerzenie budynku nie powinno stanowić problemu w przypadku domów o dachu dwuspadowym jeśli wiąże się to z wydłużeniem/skróceniem kalenicy dachu.
Poznaj praktyczne porady ekspertów, które ułatwią Ci każdy etap budowy i od wyboru wymarzonego domu po jego wykończenie. Zyskaj pewność, że podejmujesz najlepsze decyzje dzięki sprawdzonym wskazówkom od specjalistów z planz.pl
Wycena szacunkowa, w kwotach netto, nie zawiera instalacji.
bezpłatnie (0zł)
przelew zwykły / PayNow
przy odbiorze
3-5 dni roboczych (jeśli projekt nie jest koncepcją)
Wybierz wygodny dla Ciebie czas kontaktu z naszym Doradcą Technicznym.