22 299 20 00 (pn-nd 9.30 do 19.30)

Gotowy projekt domu Madzia C z poddaszem do adaptacji z garażem dwstanowiskowym (ID: 25337)

3910 2026-01-18
Madzia C z poddaszem do adaptacji z garażem dwstanowiskowym - 98m²
Dostawa w ciągu 3-10 dni
Gwarantujemy najniższą cenę
3910 zł
(4600 zł brutto)
TANIEJ 690 zł do 12.01.2026
Najniższa cena z 30 dni przed obniżką: 3910 zł
3910 2026-01-18
W cenie projektu:
📣 GRATIS: WIERTARKA UDAROWA
  • Tablica + dziennik budowy
  • 16 projektów ogrodowych
  • Darmowa wysyłka (kurier, paczkomat, pobranie)
  • 30 dni na zwrot
  • Pozwolenie na zmiany z podpisem i pieczęcią autora
  • GRATIS: Wiertarka Udarowa
22 299 20 00 (pn-nd 9.30 do 19.30)

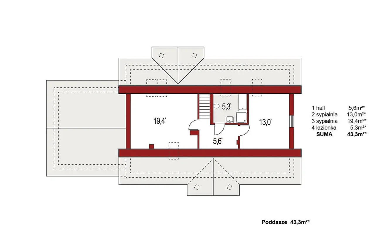
Rzuty gotowego projektu domu Madzia C z poddaszem do adaptacji z garażem dwstanowiskowym

1. Wiatrołap 2,50 m²
2. Korytarz 3,10 m²
3. Kuchnia 9,40 m²
4. Spiżarnia 3,70 m²
5. Pralnia/c.o. 6,20 m²
6. Pokój dzienny 31,70 m²
7. Sypialnia 10,30 m²
8. Sypialnia 12,30 m²
9. Hall 6,00 m²
10. Sypialnia 11,70 m²
11. łazienka 6,20 m²
12. Wc 1,10 m²
13. Garaż 36,00 m²
1. Hall 5,60 m²
2. Sypialnia 13,00 m²
3. Sypialnia 19,40 m²
4. łazienka 5,30 m²

Zapoznaj się ze szczegółami projektu - zamów bezpłatne rysunki do: Madzia C z poddaszem do adaptacji z garażem dwstanowiskowym

Wypełnij formularz i otrzymaj na podany adres e-mail rysunki w pdf z dokładnymi wymiarami budynku i pomieszczeń (długość, szerokość, wysokość) dla projektu Madzia C z poddaszem do adaptacji z garażem dwstanowiskowym

Parametry Techniczne gotowego projektu domu Madzia C z poddaszem do adaptacji z garażem dwstanowiskowym

Ilość pokoi 4
Pow. użytkowa 98 m²
Powierzchnia zabudowy 178.3 m²
Kondygnacje parterowy
Garaż 2 stanowiska
Technologia murowany
Szerokość działki 27.4 m
Obiekt dom
Typ domu jednorodzinny całoroczny
Kubatura 434 m³
Rodzaj dachu dwuspadowy
Wysokość budynku 6.6 m
Przechowywanie w kuchni spiżarnia
Długość działki 17.5 m
Bryła budynku prosta bryła
Styl budynku tradycyjny
Liczba łazieniek 1
Kąt nachylenia dachu 30 °
Strop gęstożebrowy
Szerokość budynku 20.4 m
Kominek kominek w projekcie
Kalenica równoległa do drogi
Długość budynku 9.5 m
Rodzaj garażu przyklejony
Piwnica bez podpiwniczenia
Koszty budowy tylko z kosztorysem, 250-300 tys.

Nasze prawdziwe opinie z Google

Opis projektu domu Madzia C z poddaszem do adaptacji z garażem dwstanowiskowym

Technologia wykonania:

  • Ściany: bloczek ceramiczny Porotherm 25 cm, styropian Termo Organika 12 cm, tynk.
  • Strop: strop Teriva.
  • Dach: dwuspadowy, nachylenie 30 st. , więźba drewniana, dachówka ceramiczne.
  • Ocieplenie dachu: wełna mineralna ISOVER Uni Mata.
  • Ogrzewanie: gazowe, paliwo stałe (płatny dodatek).
  • Okna dachowe: VELUX.

Częste pytania

Czy projekty z Planz.pl są kompletne?

Tak. Projekty dostępne na Planz.pl zawierają pełną dokumentację potrzebną do uzyskania pozwolenia na budowę i stanowią gwarancję sprawnej realizacji budowy.

Jesteśmy oficjalnym partnerem ponad 50 pracowni architektonicznych z całej Polski - dlatego każdy projekt pochodzi wyłącznie od autorów zrzeszonych w Izbie Architektów RP. 

Planz.pl to polska firma działającą na rynku od 15 lat. Mamy tysiące zadowolonych klientów, doskonałe opinie i oferujemy wsparcie również po zakupie, doradzamy, pomagamy w adaptacji i pozostajemy w kontakcie na każdym etapie inwestycji.

Dodatkowo do każdego projektu dodajemy tablicę informacyjną, dziennik budowy oraz 16 projektów elektronicznych drewnianej architektury ogrodowej. A dzięki naszej współpracy z producentami sprzętu elektrycznego, oferujemy możliwość otrzymania np. Wiertarki udarowej w formie atrakcyjnego gratisu.

Wybierając Planz.pl, otrzymujesz ten sam oryginalny projekt od autora, wzbogacony o realne dodatki, które ułatwiają rozpoczęcie budowy.

Czy mogę wprowadzić zmiany w projekcie?

Co zrobić gdy wybrany dom nie mieści się na działce?

Jakie zmiany można wprowadzić w projekcie?

Porady ekspertów

Poznaj praktyczne porady ekspertów, które ułatwią Ci każdy etap budowy i od wyboru wymarzonego domu po jego wykończenie. Zyskaj pewność, że podejmujesz najlepsze decyzje dzięki sprawdzonym wskazówkom od specjalistów z planz.pl

Co zawiera projekt

  • ✓ 3 x projekt architektoniczno-budowlany ➞ szczegóły
  • ✓ Projekty techniczne ➞ szczegóły
  • ✓ charakterystyka energetyczna (do projektów domów)
  • ✓ zgoda na zmiany w projekcie ➞ szczegóły
  • ✓ GRATIS: Wiertarka (do projektów w cenie od 3000 zł)
  • ✓ GRATIS: 16 projektów (drewutni, altany i wiaty)
  • ✓ GRATIS: tablica i dziennik budowy
  • ✓ GRATIS: przesyłka kurierska

Dodatki do projektu Madzia C z poddaszem do adaptacji z garażem dwstanowiskowym

Dodatki możesz kupić razem z projektem lub dokupić po czasie

[Alexanderstudio] Kosztorys inwestorski domu (439 zł)

[Alexanderstudio] Dodatkowy egzemplarz projektu domu (1200 zł)

[Alexanderstudio] Elektroniczna wersja projektu (439 zł)

[Alexanderstudio] Ogrzewanie podłogowe (480 zł)

[Alexanderstudio] Instalacja fotowoltaiczna (440 zł)

[Alexanderstudio] Aneks na paliwo stałe (480 zł)

[Alexanderstudio] Wentylacja mechaniczna z rekuperacją (480 zł)

[Alexanderstudio] Pompa ciepła powietrzna lub gruntowa (480 zł)

[Alexanderstudio] Ogrzewanie podłogowe + pompa ciepła (880 zł)

[Alexanderstudio] Zestawienie stali (240 zł)

[Alexanderstudio] Dodatkowy egzemplarz projektu garażu (360 zł)

[Alexanderstudio] Kosztorys inwestorski garażu (296 zł)

[Alexanderstudio] Egzemplarz archiwalny projektu garażu (200 zł)

[Alexanderstudio] Egzemplarz archiwalny projektu domu (400 zł)

[Planz] Tablica budowlana (0 zł)

[Planz] Dziennik budowy (0 zł)

[Planz] Wiertarka udarowa (0 zł)

[Planz] Zgoda na zmiany w projekcie (0 zł)

[Planz] Projekty architektury ogrodowej (0 zł)

[Planz] Charakterystyka energetyczna, tylko dla domów całorocznych (0 zł)

Wysyłka i płatność za projekt Madzia C z poddaszem do adaptacji z garażem dwstanowiskowym

Koszty wysyłki

bezpłatnie (0zł)

Formy płatności

przelew zwykły / PayNow
przy odbiorze

Czas oczekiwania

3-5 dni roboczych (jeśli projekt nie jest koncepcją)

Wersje gotowego projektu domu Madzia C z poddaszem do adaptacji z garażem dwstanowiskowym

TANIEJ O 600 zł
4000 zł 3400 zł

Madzia 2A z poddaszem do adaptacji bez garażu 2 A

powierzchnia 96 m²
technologia murowany
stanowisk w garażu bez garażu
kondygnacja parterowy
Zobacz projekt
TANIEJ O 615 zł
4100 zł 3485 zł

Madzia 2B z poddaszem do adaptacji z garażem jednostanowiskowym

powierzchnia 96 m²
technologia murowany
stanowisk w garażu 1 stanowisko
kondygnacja parterowy
Zobacz projekt

Podobne projekty do domu Madzia C z poddaszem do adaptacji z garażem dwstanowiskowym

Szacunkowy kosztorys dla projektu Madzia C z poddaszem do adaptacji z garażem dwstanowiskowym

Stan surowy zamknięty 195500 zł
Stan surowy zamknięty
Stan deweloperski 260500 zł
Stan deweloperski

Wycena szacunkowa, w kwotach netto, nie zawiera instalacji.

PRACOWNIA: Alexanderstudio