Madzia 2A z poddaszem do adaptacji bez garażu 2 A



1. Wiatrołap | 2,50 m² |
2. Korytarz | 3,10 m² |
3. Kuchnia | 9,40 m² |
4. Spiżarnia | 3,70 m² |
5. Pralnia/c.o. | 6,20 m² |
6. Pokój dzienny | 31,70 m² |
7. Sypialnia | 10,30 m² |
8. Sypialnia | 12,30 m² |
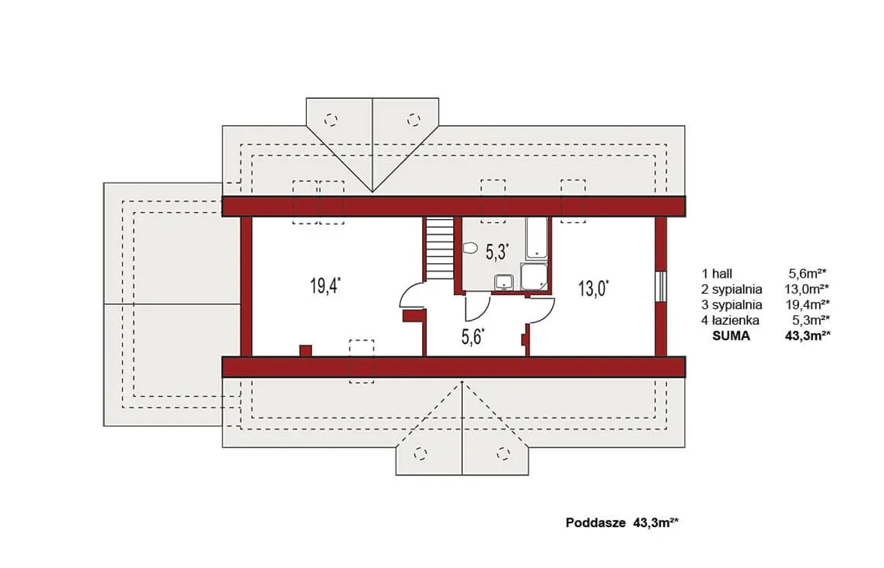
9. Hall | 6,00 m² |
10. Sypialnia | 11,70 m² |
11. łazienka | 6,20 m² |
12. Wc | 1,10 m² |
13. Garaż | 21,00 m² |
Wypełnij formularz i otrzymaj rysunki w pdf z dokładnymi wymiarami budynku i pomieszczeń (długość, szerokość, wysokość) dla projektu Madzia B z poddaszem do adaptacji z garażem jednostanowiskowym
Pow. użytkowa 98 m² |
Ilość pokoi 4 |
Powierzchnia zabudowy 162 m² |
Kondygnacje parterowy |
Garaż 1 stanowisko |
Technologia murowany |
Szerokość działki 24.9 m |
Obiekt dom |
Typ domu jednorodzinny całoroczny |
Styl budynku tradycyjny |
Liczba łazieniek 1 |
Kąt nachylenia dachu 30 ° |
Strop gęstożebrowy |
Szerokość budynku 17.9 m |
Kominek kominek w projekcie |
Kalenica równoległa do drogi |
Długość budynku 9.5 m |
Rodzaj garażu przyklejony |
Piwnica bez podpiwniczenia |
Kubatura 381 m³ |
Rodzaj dachu dwuspadowy |
Wysokość budynku 6.6 m |
Przechowywanie w kuchni spiżarnia |
Długość działki 17.5 m |
Bryła budynku prosta bryła |
Koszty budowy tylko z kosztorysem, 250-300 tys. |
Pow. użytkowa 98 m² |
Powierzchnia zabudowy 162 m² |
Garaż 1 stanowisko |
Szerokość działki 24.9 m |
Typ domu jednorodzinny całoroczny |
Liczba łazieniek 1 |
Strop gęstożebrowy |
Kominek kominek w projekcie |
Długość budynku 9.5 m |
Piwnica bez podpiwniczenia |
Rodzaj dachu dwuspadowy |
Przechowywanie w kuchni spiżarnia |
Bryła budynku prosta bryła |
Ilość pokoi 4 |
Kondygnacje parterowy |
Technologia murowany |
Obiekt dom |
Styl budynku tradycyjny |
Kąt nachylenia dachu 30 ° |
Szerokość budynku 17.9 m |
Kalenica równoległa do drogi |
Rodzaj garażu przyklejony |
Kubatura 381 m³ |
Wysokość budynku 6.6 m |
Długość działki 17.5 m |
Koszty budowy tylko z kosztorysem, 250-300 tys. |
Kupując projekt w technologii murowanej powinieneś budować dom murowany. Zupełna zmiana technologii na szkieletową wymaga przeprojektowania całego budynku ( zmieniają się obciążenia, fundamenty, konstrukcja dachu). Wydamy zgodę na takie przeprojektowanie jednak wiążę się to z dużymi kosztami. Istnieją firmy wykonawcze, które podejmują się zmiany technologii budowy bezpłatnie przy skorzystaniu z ich usług wykonawczych. Zdarza się, że pracownia architektoniczna przygotowuje warianty konkretnego projektu przewidując także inne technologie. Prosimy o sprawdzenie czy istnieje poszukiwana wersja projektu, w zakładce - warianty projektu.
Zwężenie/poszerzenie budynku* to nic innego jak zmiana w projekcie. Istnieje możliwość wprowadzenia takich zmian, we własnym zakresie (podczas adaptacji). *zwężenie/poszerzenie budynku nie powinno stanowić problemu w przypadku domów o dachu dwuspadowym jeśli wiąże się to z wydłużeniem/skróceniem kalenicy dachu.
Poznaj praktyczne porady ekspertów, które ułatwią Ci każdy etap budowy i od wyboru wymarzonego domu po jego wykończenie. Zyskaj pewność, że podejmujesz najlepsze decyzje dzięki sprawdzonym wskazówkom od specjalistów z planz.pl
Wycena szacunkowa, w kwotach netto, nie zawiera instalacji.
bezpłatnie (0zł)
przelew zwykły / PayNow
przy odbiorze
3-5 dni roboczych (jeśli projekt nie jest koncepcją)
Wybierz wygodny dla Ciebie czas kontaktu z naszym Doradcą Technicznym.