Małgosia 2 D bez garażu, z poddaszem, z wykuszem



Zawartość projektu
3 egzemplarze projektu archtektoniczno budowlanego + 3 egzemplarze projektu technicznego.
- Opis architektoniczno - budowlany
- Część rysunkowa (elewacje, rzuty, przekroje, zestawienie stolarki)
Projekt techniczny zawiera:
- Projekt konstrukcji
- Instalacje sanitarne + gazowe/ sanitarne + paliwo stałe
- instalacje elektryczne
Wypełnij formularz i otrzymaj rysunki w pdf z dokładnymi wymiarami budynku i pomieszczeń (długość, szerokość, wysokość) dla projektu Małgosia 2 BB pojedynczy garaż
Ilość pokoi 3 |
Pow. użytkowa 87.7 m² |
Powierzchnia zabudowy 161 m² |
Kondygnacje parterowy |
Garaż 1 stanowisko |
Technologia murowany |
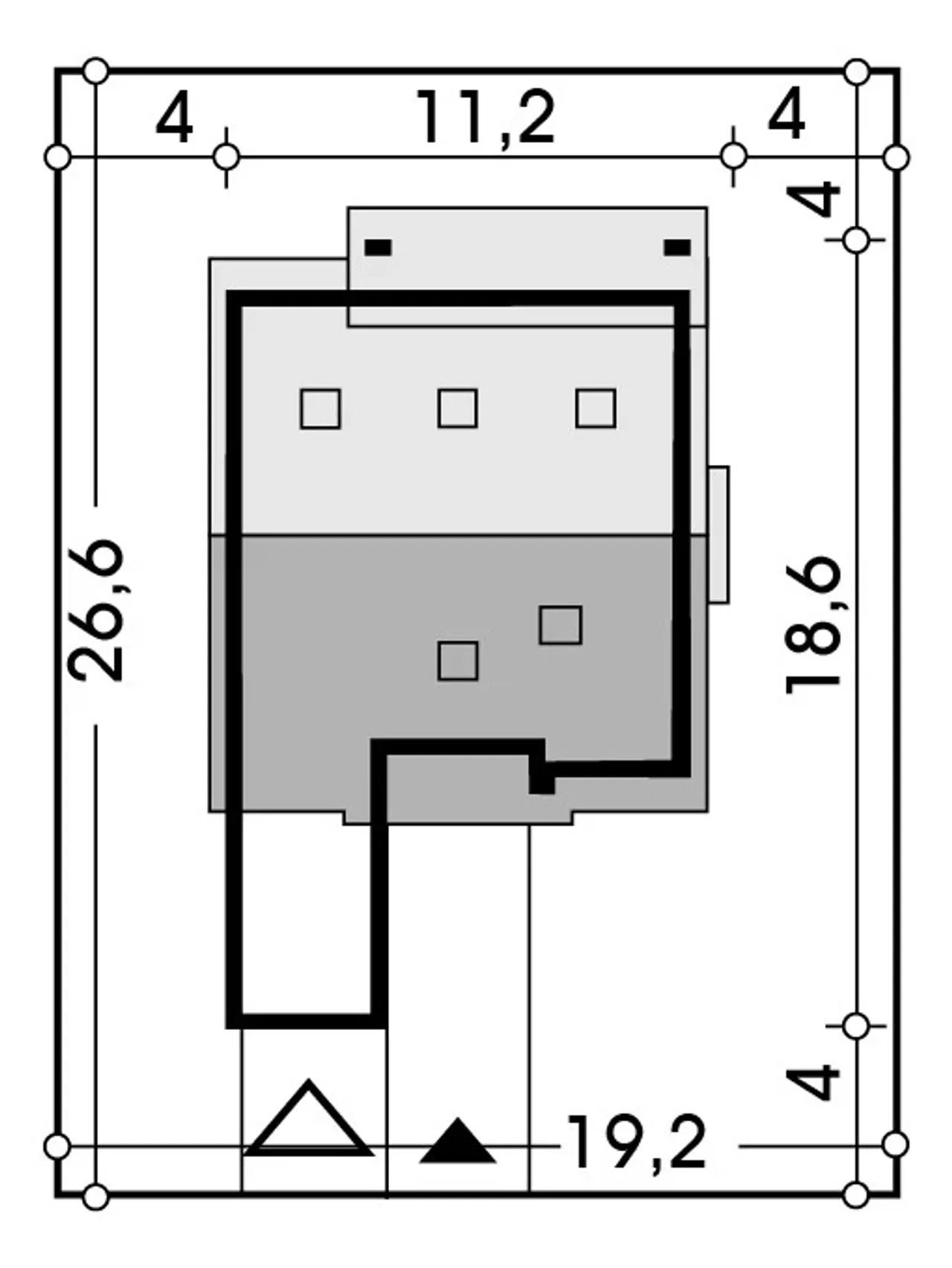
Szerokość działki 19.2 m |
Obiekt dom |
Typ domu jednorodzinny całoroczny |
Kalenica równoległa do drogi |
Długość budynku 18.6 m |
Rodzaj garażu z przodu |
Piwnica bez podpiwniczenia |
Funkcje dodatkowe z pralnią |
Powierzchnia dachu 188.2 m² |
Rodzaj dachu dwuspadowy |
Wysokość budynku 7 m |
Przechowywanie w kuchni spiżarnia |
Długość działki 26.6 m |
Bryła budynku prosta bryła |
Styl budynku nowoczesny |
Liczba łazieniek 1 |
Kąt nachylenia dachu 30 ° |
Strop gęstożebrowy |
Szerokość budynku 11.2 m |
Kominek kominek w projekcie |
Koszty budowy tylko z kosztorysem, 200-250 tys. |
Ilość pokoi 3 |
Powierzchnia zabudowy 161 m² |
Garaż 1 stanowisko |
Szerokość działki 19.2 m |
Typ domu jednorodzinny całoroczny |
Długość budynku 18.6 m |
Piwnica bez podpiwniczenia |
Powierzchnia dachu 188.2 m² |
Wysokość budynku 7 m |
Długość działki 26.6 m |
Styl budynku nowoczesny |
Kąt nachylenia dachu 30 ° |
Szerokość budynku 11.2 m |
Koszty budowy tylko z kosztorysem, 200-250 tys. |
Pow. użytkowa 87.7 m² |
Kondygnacje parterowy |
Technologia murowany |
Obiekt dom |
Kalenica równoległa do drogi |
Rodzaj garażu z przodu |
Funkcje dodatkowe z pralnią |
Rodzaj dachu dwuspadowy |
Przechowywanie w kuchni spiżarnia |
Bryła budynku prosta bryła |
Liczba łazieniek 1 |
Strop gęstożebrowy |
Kominek kominek w projekcie |
Kupując projekt w technologii murowanej powinieneś budować dom murowany. Zupełna zmiana technologii na szkieletową wymaga przeprojektowania całego budynku ( zmieniają się obciążenia, fundamenty, konstrukcja dachu). Wydamy zgodę na takie przeprojektowanie jednak wiążę się to z dużymi kosztami. Istnieją firmy wykonawcze, które podejmują się zmiany technologii budowy bezpłatnie przy skorzystaniu z ich usług wykonawczych. Zdarza się, że pracownia architektoniczna przygotowuje warianty konkretnego projektu przewidując także inne technologie. Prosimy o sprawdzenie czy istnieje poszukiwana wersja projektu, w zakładce - warianty projektu.
Zwężenie/poszerzenie budynku* to nic innego jak zmiana w projekcie. Istnieje możliwość wprowadzenia takich zmian, we własnym zakresie (podczas adaptacji). *zwężenie/poszerzenie budynku nie powinno stanowić problemu w przypadku domów o dachu dwuspadowym jeśli wiąże się to z wydłużeniem/skróceniem kalenicy dachu.
Poznaj praktyczne porady ekspertów, które ułatwią Ci każdy etap budowy i od wyboru wymarzonego domu po jego wykończenie. Zyskaj pewność, że podejmujesz najlepsze decyzje dzięki sprawdzonym wskazówkom od specjalistów z planz.pl
Wycena szacunkowa, w kwotach netto, nie zawiera instalacji.
bezpłatnie (0zł)
przelew zwykły / PayNow
przy odbiorze
4-8 dni roboczych (jeśli projekt nie wymaga aktualizacji)
Wybierz wygodny dla Ciebie czas kontaktu z naszym Doradcą Technicznym.