Longinus



Zawartość projektu
3 egzemplarze projektu archtektoniczno budowlanego + 3 egzemplarze projektu technicznego.
- opis techniczny (wraz z analizą techniczną, środowiskową i ekonomiczną)
- rzuty wszystkich kondygnacji- pokazuje rozmieszczenie poszczególnych pomieszczeń i ich wymiary, powierzchnie, rozmieszczenie ścian, rozmieszczenie otworów drzwiowych, okiennych, urządzeń kuchennych i sanitarnych
- rzut więźby dachowej - pokazuje układ elementów konstrukcyjnych dachu i ich przekroje, zestawienie elementów więźby dachowej
- rzut dachu - ukazuje jego kształt, wymiary, kąt nachylenia połaci, rozmieszczenie okien połaciowych, lukarn, świetlików i rur spustowych, pokazuje rozmieszczenie kominów i informuje o sposobie odwodnienia: rozmieszczeniu i rozmiarach rynien
- przekroje - pokazują wszystkie elementy budynku po przecięciu go wzdłuż lub w poprzek od dachu do fundamentów tj. warstwy podłogi, stropów i dachu
- elewacje - pokazują dokładny wygląd domu od frontu, z tyłu i z boków
Dodatkowo w projekcie znajduje się:
- aksonometria więźby dachowej - przedstawia widok aksonometryczny więźby i jej elementów (dla dachów skomplikowanych)
- zestawienia stolarki okiennej i drzwiowej - wykazy okien i drzwi zawartych w projekcie i sposób ich otwierania
Projekt techniczny zawiera:
- projekt konstrukcji: zawiera opis techniczny, obliczenia statyczno-wytrzymałościowe, rzuty fundamentów i płyt stropowych w skali 1:50, rysunki detali konstrukcyjnych (zbrojenie schodów, słupów, wieńców, nadproży), zestawienia stali konstrukcyjnej
- projekt instalacji sanitarnych: zawiera opis techniczny oraz rysunki z rozmieszczeniem elementów instalacji: wodno-kanalizacyjnej, centralnego ogrzewania, gazowej - w skali 1:50
- projekt instalacji elektrycznej: zawiera opis techniczny, schemat ideowy oraz rysunki z rozmieszczeniem elementów instalacji: wodno-kanalizacyjnej, centralnego ogrzewania, gazowej - w skali 1:50 oraz opis zastosowanych rozwiązań
- projekt instalacji wentylacji mechanicznej (o ile występuje): zawiera opis techniczny oraz rysunki z rozmieszczeniem elementów instalacji
1. Pokój dzienny | 24,29 m² |
2. Kuchnia | 7,48 m² |
3. Hol | 6,77 m² |
4. Sień | 3,07 m² |
5. Sypialnia | 12,43 m² |
6. Garderoba | 3,87 m² |
7. łazienka | 3,99 m² |
8. Kotłownia | 4,30 m² |
9. Schody | 2,70 m² |
1. Pokój | 16,64 (22,10) m² |
2. Pokój | 10,57 (14,50) m² |
3. Pokój | 10,77 (14,70) m² |
4. Przedpokój | 6,36 (6,40) m² |
5. łazienka | 4,60 (6,40) m² |
6. Schody | 2,70 (2,70) m² |
Wypełnij formularz i otrzymaj rysunki w pdf z dokładnymi wymiarami budynku i pomieszczeń (długość, szerokość, wysokość) dla projektu Longinus Prima
Pow. użytkowa 110.84 m² |
Ilość pokoi 5 |
Powierzchnia zabudowy 87.9 m² |
Kondygnacje parterowy+poddasze |
Garaż bez garażu |
Technologia murowany |
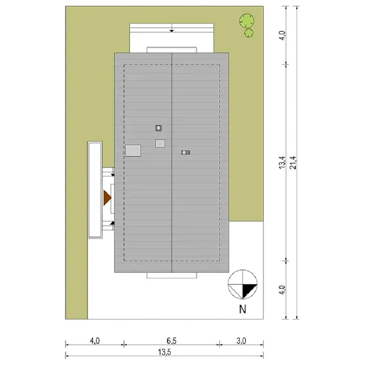
Szerokość działki 21.4 m |
Obiekt dom |
Typ domu jednorodzinny całoroczny |
Powierzchnia dachu 157.96 m² |
Długość działki 13.5 m |
Wysokość budynku 7.76 m |
Kalenica równoległa do drogi |
Styl budynku nowoczesny |
Liczba łazieniek 2 |
Szerokość budynku 13.4 m |
Kominek kominek opcjonalnie |
Kąt nachylenia dachu 40 ° |
Długość budynku 6.5 m |
Rodzaj dachu dwuspadowy |
Piwnica bez podpiwniczenia |
Kubatura 734.84 m³ |
Koszty budowy tylko z kosztorysem, 250-300 tys. |
Pow. użytkowa 110.84 m² |
Powierzchnia zabudowy 87.9 m² |
Garaż bez garażu |
Szerokość działki 21.4 m |
Typ domu jednorodzinny całoroczny |
Długość działki 13.5 m |
Kalenica równoległa do drogi |
Liczba łazieniek 2 |
Kominek kominek opcjonalnie |
Długość budynku 6.5 m |
Piwnica bez podpiwniczenia |
Koszty budowy tylko z kosztorysem, 250-300 tys. |
Ilość pokoi 5 |
Kondygnacje parterowy+poddasze |
Technologia murowany |
Obiekt dom |
Powierzchnia dachu 157.96 m² |
Wysokość budynku 7.76 m |
Styl budynku nowoczesny |
Szerokość budynku 13.4 m |
Kąt nachylenia dachu 40 ° |
Rodzaj dachu dwuspadowy |
Kubatura 734.84 m³ |
Kupując projekt w technologii murowanej powinieneś budować dom murowany. Zupełna zmiana technologii na szkieletową wymaga przeprojektowania całego budynku ( zmieniają się obciążenia, fundamenty, konstrukcja dachu). Wydamy zgodę na takie przeprojektowanie jednak wiążę się to z dużymi kosztami. Istnieją firmy wykonawcze, które podejmują się zmiany technologii budowy bezpłatnie przy skorzystaniu z ich usług wykonawczych. Zdarza się, że pracownia architektoniczna przygotowuje warianty konkretnego projektu przewidując także inne technologie. Prosimy o sprawdzenie czy istnieje poszukiwana wersja projektu, w zakładce - warianty projektu.
Zwężenie/poszerzenie budynku* to nic innego jak zmiana w projekcie. Istnieje możliwość wprowadzenia takich zmian, we własnym zakresie (podczas adaptacji). *zwężenie/poszerzenie budynku nie powinno stanowić problemu w przypadku domów o dachu dwuspadowym jeśli wiąże się to z wydłużeniem/skróceniem kalenicy dachu.
Poznaj praktyczne porady ekspertów, które ułatwią Ci każdy etap budowy i od wyboru wymarzonego domu po jego wykończenie. Zyskaj pewność, że podejmujesz najlepsze decyzje dzięki sprawdzonym wskazówkom od specjalistów z planz.pl
Wycena szacunkowa, w kwotach netto, nie zawiera instalacji.
bezpłatnie (0zł)
przelew zwykły / PayNow
przy odbiorze
2-5 dni roboczych (jeśli projekt nie wymaga aktualizacji)
Projekt domu Longinus Prima to propozycja, która może zainteresować rodziny poszukujące nowoczesnych rozwiązań architektonicznych. Dom przyciąga uwagę eleganckim designem, który łączy tradycyjne elementy z nowoczesnym podejściem do budownictwa. Zastosowanie dużych okien pozwala na doskonałe doświetlenie wnętrz naturalnym światłem, co sprawia, że pomieszczenia wydają się przestronne i przyjazne. Projekt przewiduje również funkcjonalny układ pomieszczeń, co pozwala na wygodne zagospodarowanie przestrzeni. Dodatkowym atutem jest dobrze zaplanowany ogród, który można dostosować do własnych potrzeb, tworząc własną zieloną oazę.
Wybierz wygodny dla Ciebie czas kontaktu z naszym Doradcą Technicznym.