Lerka bez wiaty B



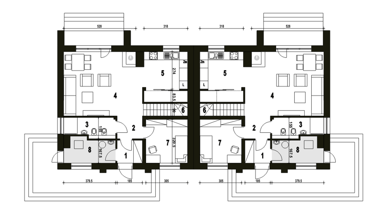
1. Wiatrołap | 3,00 m² |
2. Hol | 3,00 m² |
3. łazienka | 5,20 m² |
4. Salon | 26,30 m² |
5. Kuchnia+spiżarnia | 11,30 m² |
6. Schody | 4,10 m² |
7. Pokój | 9,60 m² |
8. Pom. techniczne | 6,30 m² |
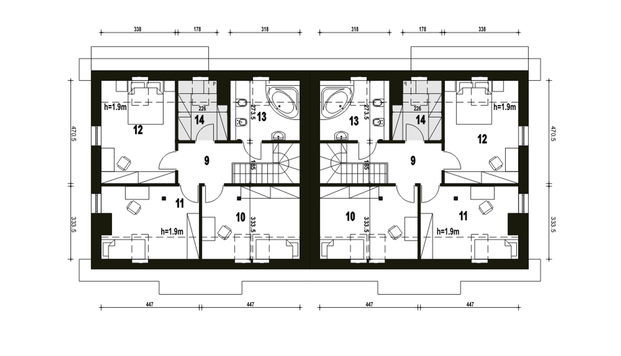
1. Hol | 6,10 (6,10) m² |
2. Sypialnia | 11,30 (14,70) m² |
3. Sypialnia | 10,90 (14,20) m² |
4. Sypialnia | 13,20 (15,70) m² |
5. łazienka | 6,20 (8,50) m² |
6. Garderoba + pralnia | 4,20 (5,50) m² |
Wypełnij formularz i otrzymaj rysunki w pdf z dokładnymi wymiarami budynku i pomieszczeń (długość, szerokość, wysokość) dla projektu Lerka bez wiaty bliźniak B-BL2
Pow. użytkowa 220 m² |
Ilość pokoi 5 |
Powierzchnia zabudowy 184.4 m² |
Kondygnacje parterowy+poddasze |
Garaż bez garażu |
Technologia murowany |
Szerokość działki 19.6 m |
Obiekt dom |
Typ domu bliźniak i dwurodzinny |
Długość budynku 9.1 m |
Rodzaj dachu dwuspadowy |
Piwnica bez podpiwniczenia |
Powierzchnia dachu 299.2 m² |
Wysokość budynku 8.7 m |
Długość działki 17.1 m |
Bryła budynku prosta bryła |
Strop gęstożebrowy |
Styl budynku tradycyjny |
Liczba łazieniek 2 |
Kalenica równoległa do drogi |
Kominek kominek w projekcie |
Kąt nachylenia dachu 40 ° |
Funkcje dodatkowe z pralnią |
Szerokość budynku 9.9 m |
Kotłownia duża kotłownia |
Koszty budowy tylko z kosztorysem, 200-250 tys. |
Pow. użytkowa 220 m² |
Powierzchnia zabudowy 184.4 m² |
Garaż bez garażu |
Szerokość działki 19.6 m |
Typ domu bliźniak i dwurodzinny |
Rodzaj dachu dwuspadowy |
Powierzchnia dachu 299.2 m² |
Długość działki 17.1 m |
Strop gęstożebrowy |
Liczba łazieniek 2 |
Kominek kominek w projekcie |
Funkcje dodatkowe z pralnią |
Kotłownia duża kotłownia |
Ilość pokoi 5 |
Kondygnacje parterowy+poddasze |
Technologia murowany |
Obiekt dom |
Długość budynku 9.1 m |
Piwnica bez podpiwniczenia |
Wysokość budynku 8.7 m |
Bryła budynku prosta bryła |
Styl budynku tradycyjny |
Kalenica równoległa do drogi |
Kąt nachylenia dachu 40 ° |
Szerokość budynku 9.9 m |
Koszty budowy tylko z kosztorysem, 200-250 tys. |
Kupując projekt w technologii murowanej powinieneś budować dom murowany. Zupełna zmiana technologii na szkieletową wymaga przeprojektowania całego budynku ( zmieniają się obciążenia, fundamenty, konstrukcja dachu). Wydamy zgodę na takie przeprojektowanie jednak wiążę się to z dużymi kosztami. Istnieją firmy wykonawcze, które podejmują się zmiany technologii budowy bezpłatnie przy skorzystaniu z ich usług wykonawczych. Zdarza się, że pracownia architektoniczna przygotowuje warianty konkretnego projektu przewidując także inne technologie. Prosimy o sprawdzenie czy istnieje poszukiwana wersja projektu, w zakładce - warianty projektu.
Zwężenie/poszerzenie budynku* to nic innego jak zmiana w projekcie. Istnieje możliwość wprowadzenia takich zmian, we własnym zakresie (podczas adaptacji). *zwężenie/poszerzenie budynku nie powinno stanowić problemu w przypadku domów o dachu dwuspadowym jeśli wiąże się to z wydłużeniem/skróceniem kalenicy dachu.
Poznaj praktyczne porady ekspertów, które ułatwią Ci każdy etap budowy i od wyboru wymarzonego domu po jego wykończenie. Zyskaj pewność, że podejmujesz najlepsze decyzje dzięki sprawdzonym wskazówkom od specjalistów z planz.pl
Wycena szacunkowa, w kwotach netto, nie zawiera instalacji.
bezpłatnie (0zł)
przelew zwykły / PayNow
przy odbiorze
3-5 dni roboczych (jeśli projekt nie jest koncepcją)
Wybierz wygodny dla Ciebie czas kontaktu z naszym Doradcą Technicznym.