22 299 20 00 (pn-nd 9.30 do 19.30)

Gotowy projekt domu Lena bez garażu B (ID: 34762)

5990 2025-12-15
Lena bez garażu B - 173.8m²
Projekt dostępny od ręki
Gwarantujemy najniższą cenę
5990 zł
W cenie projektu:
📣 GRATIS: WIERTARKA UDAROWA
  • Tablica + dziennik budowy
  • 16 projektów ogrodowych
  • Darmowa wysyłka (kurier, paczkomat, pobranie)
  • 30 dni na zwrot
  • Pozwolenie na zmiany z podpisem i pieczęcią autora
  • GRATIS: Wiertarka Udarowa
22 299 20 00 (pn-nd 9.30 do 19.30)

Rzuty gotowego projektu domu Lena bez garażu B

1. Wiatrołap 2,90 m²
2. Komunikacja 10,90 m²
3. Wc 1,90 m²
4. Kuchnia 12,90 m²
5. Spiżarnia 2,20 m²
6. Salon 25,30 m²
7. Schody 9,50 m²
8. Pokój 12,80 m²
9. Pokój 15,00 m²
10. Pokój 14,50 m²
11. łazienka 5,30 m²
12. Pom. techniczne* 4,90 m²
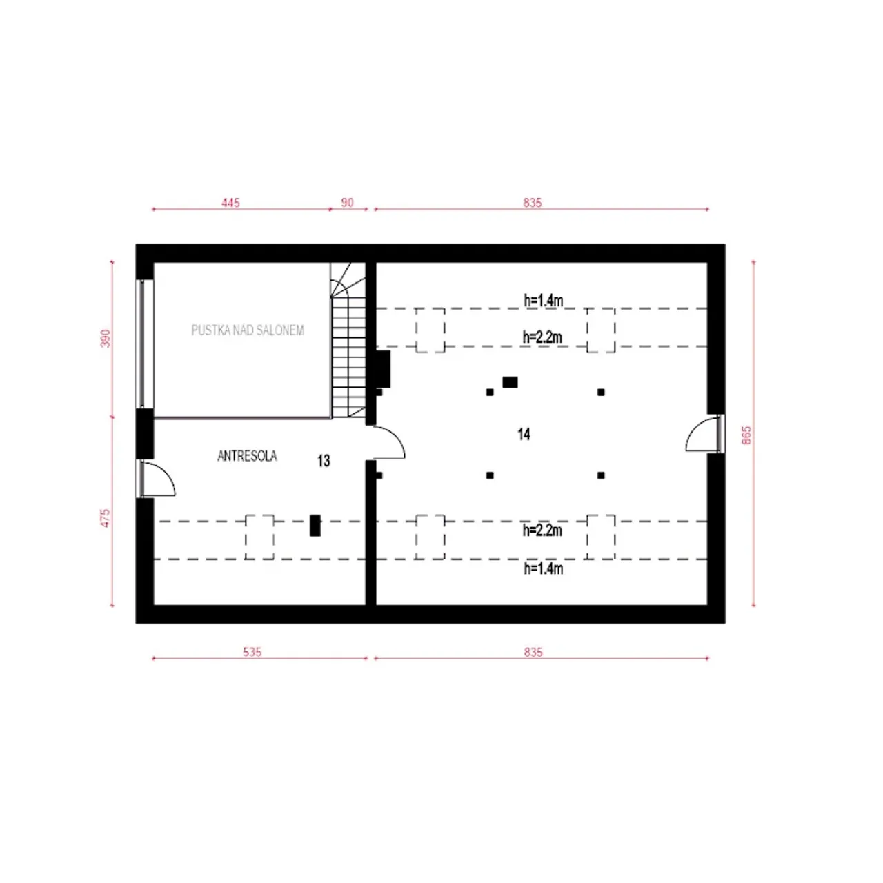
1. Amtresola 16,40 m²
2. Pom. do adaptacji 44,20 m²

Zapoznaj się ze szczegółami projektu - pobierz bezpłatne rysunki do: Lena bez garażu B

Wypełnij formularz i otrzymaj rysunki w pdf z dokładnymi wymiarami budynku i pomieszczeń (długość, szerokość, wysokość) dla projektu Lena bez garażu B

Parametry Techniczne gotowego projektu domu Lena bez garażu B

Ilość pokoi 3
Pow. użytkowa 173.8 m²
Powierzchnia zabudowy 142.6 m²
Kondygnacje parterowy
Garaż bez garażu
Technologia murowany
Szerokość działki 23 m
Obiekt dom
Typ domu jednorodzinny całoroczny
Powierzchnia dachu 186.2 m²
Styl budynku nowoczesny
Wysokość budynku 8 m
Długość działki 17.7 m
Kąt nachylenia dachu 40 °
Rodzaj dachu dwuspadowy
Liczba łazieniek 1
Szerokość budynku 15 m
Kominek kominek opcjonalnie
Długość budynku 9.7 m
Kalenica równoległa do drogi
Piwnica bez podpiwniczenia

Wnętrza domu Lena bez garażu B

Nasze prawdziwe opinie z Google

Częste pytania

Czy projekty z Planz.pl są kompletne?

Tak. Projekty dostępne na Planz.pl zawierają pełną dokumentację potrzebną do uzyskania pozwolenia na budowę i stanowią gwarancję sprawnej realizacji budowy.

Jesteśmy oficjalnym partnerem ponad 50 pracowni architektonicznych z całej Polski - dlatego każdy projekt pochodzi wyłącznie od autorów zrzeszonych w Izbie Architektów RP. 

Planz.pl to polska firma działającą na rynku od 15 lat. Mamy tysiące zadowolonych klientów, doskonałe opinie i oferujemy wsparcie również po zakupie, doradzamy, pomagamy w adaptacji i pozostajemy w kontakcie na każdym etapie inwestycji.

Dodatkowo do każdego projektu dodajemy tablicę informacyjną, dziennik budowy oraz 16 projektów elektronicznych drewnianej architektury ogrodowej. A dzięki naszej współpracy z producentami sprzętu elektrycznego, oferujemy możliwość otrzymania np. Wiertarki udarowej w formie atrakcyjnego gratisu.

Wybierając Planz.pl, otrzymujesz ten sam oryginalny projekt od autora, wzbogacony o realne dodatki, które ułatwiają rozpoczęcie budowy.

Czy mogę wprowadzić zmiany w projekcie?

Co zrobić gdy wybrany dom nie mieści się na działce?

Jakie zmiany można wprowadzić w projekcie?

Porady ekspertów

Poznaj praktyczne porady ekspertów, które ułatwią Ci każdy etap budowy i od wyboru wymarzonego domu po jego wykończenie. Zyskaj pewność, że podejmujesz najlepsze decyzje dzięki sprawdzonym wskazówkom od specjalistów z planz.pl

Co zawiera projekt

  • ✓ 3 x projekt architektoniczno-budowlany ➞ szczegóły
  • ✓ Projekty techniczne ➞ szczegóły
  • ✓ charakterystyka energetyczna (do projektów domów)
  • ✓ zgoda na zmiany w projekcie ➞ szczegóły
  • ✓ GRATIS: Wiertarka (do projektów w cenie od 3000 zł)
  • ✓ GRATIS: 16 projektów (drewutni, altany i wiaty)
  • ✓ GRATIS: tablica i dziennik budowy
  • ✓ GRATIS: przesyłka kurierska

Dodatki do projektu Lena bez garażu B

Dodatki możesz kupić razem z projektem lub dokupić po czasie

[Planz] Tablica budowlana (0 zł)

[Planz] Dziennik budowy (0 zł)

[Planz] Wiertarka udarowa (0 zł)

[Planz] Zgoda na zmiany w projekcie (0 zł)

[Planz] Projekty architektury ogrodowej (0 zł)

[Planz] Charakterystyka energetyczna, tylko dla domów całorocznych (0 zł)

Wysyłka i płatność za projekt Lena bez garażu B

Koszty wysyłki

bezpłatnie (0zł)

Formy płatności

przelew zwykły / PayNow
przy odbiorze

Czas oczekiwania

3-5 dni roboczych (jeśli projekt nie jest koncepcją)

Wersje gotowego projektu domu Lena bez garażu B

Komentarze / pytania do projektu domu Lena bez garażu B

Kamil

Projekt Lena B imponuje już na pierwszy rzut oka. Elegancja elewacji jest urzekająca, a każdy element został starannie zaplanowany. Wnętrza zachwycają przestronnością, a nowoczesny design natychmiast przyciąga uwagę. Duże okna zapewniają obfitość światła, a układ pomieszczeń jest niezwykle intuicyjny. Projekt domu Lena B inspiruje do życia, a ogród w sposób harmonijny współgra z całością architektoniczną. Salon stanowi centralny punkt domu. Rozważam zakup projektu i rozpoczęcie budowy tej nieruchomości.

PRACOWNIA: Dom Dla Ciebie Maja Klimowicz