22 299 20 00 (pn-nd 9.30 do 19.30)

Gotowy projekt domu Lambada (ID: 34057)

6890 2026-01-19
Lambada - 149.44m²
Dostawa w ciągu 3-10 dni
Gwarantujemy najniższą cenę
6890 zł
W cenie projektu:
📣 GRATIS: WIERTARKA UDAROWA
  • Tablica + dziennik budowy
  • 16 projektów ogrodowych
  • Darmowa wysyłka (kurier, paczkomat, pobranie)
  • 30 dni na zwrot
  • Pozwolenie na zmiany z podpisem i pieczęcią autora
  • GRATIS: Wiertarka Udarowa
22 299 20 00 (pn-nd 9.30 do 19.30)

Rzuty gotowego projektu domu Lambada

1. Sień 5,25 m²
2. Holl 10,48 m²
3. Spiżarnia 2,79 m²
4. Kuchnia 10,99 m²
5. Pokój dzienny 32,77 m²
6. łazienka 5,29 m²
7. Pokój / gabinet 13,28 m²
8. Kotłownia 7,15 m²
9. Garaż 33,63 m²
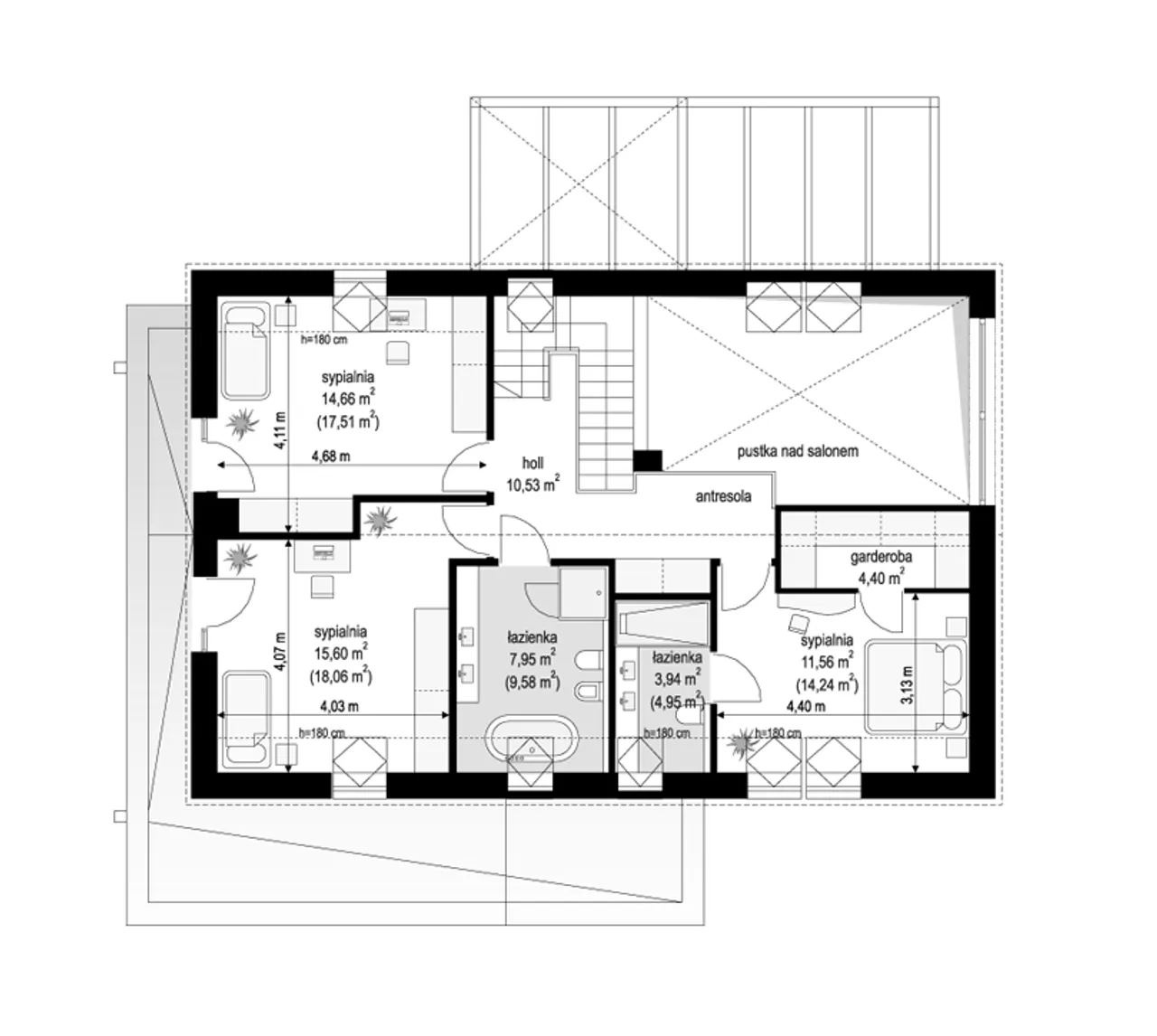
1. Holl 10,53 m²
2. Sypialnia 14,66 (17,51) m²
3. Sypialnia 15,60 (18,06) m²
4. łazienka 7,95 (9,58) m²
5. łazienka 3,94 (4,95) m²
6. Sypialnia 11,56 (14,24) m²
7. Garderoba 4,40 m²

Zapoznaj się ze szczegółami projektu - zamów bezpłatne rysunki do: Lambada

Wypełnij formularz i otrzymaj na podany adres e-mail rysunki w pdf z dokładnymi wymiarami budynku i pomieszczeń (długość, szerokość, wysokość) dla projektu Lambada

Parametry Techniczne gotowego projektu domu Lambada

Pow. użytkowa 149.44 m²
Ilość pokoi 5
Kondygnacje parterowy+poddasze
Garaż 2 stanowiska
Technologia murowany
Szerokość działki 22.16 m
Obiekt dom
Typ domu jednorodzinny całoroczny
Wysokość budynku 8.93 m
Rodzaj dachu dwuspadowy
Długość działki 21.42 m
Ogrzewanie gaz
Liczba łazieniek 3
Ek 52.2
Szerokość budynku 15.16 m
Kominek kominek w projekcie
Kalenica równoległa do drogi
Długość budynku 11.42 m
Styl budynku nowoczesny
Taras z tarasem
Kubatura 710 m³
Piwnica bez podpiwniczenia
Kąt nachylenia dachu 42 °
Powierzchnia dachu 176.4 m²
Koszty budowy 550-600 tys., tylko z kosztorysem

Energia i ogrzewanie gotowego projektu domu Lambada

Źródło ogrzewania:
gaz
Możliwość dokupienia dodatku zmieniającego źródło ciepła:
- Aneks na paliwo stałe
- Powietrzna pompa ciepła
- Gruntowa pompa ciepła
Dodatek dostępny w formularzu zamówienia
Wentylacja: Mechaniczna nawiewno-wywiewna z rekuperacją
Parametry energetyczne:
Ep: 68.7 kWh/(m²rok)
Ek: 52.2 kWh/(m²rok)
Euco: 47.4 kWh/(m²rok)

Wnętrza domu Lambada

Nasze prawdziwe opinie z Google

Opis projektu domu Lambada

Projekt domu jednorodzinnego całorocznego Lambada - nowoczesny dom z dwuspadowym dachem, 2-stanowiskowym garażem i tarasem

Odkryj nowoczesny projekt domu jednorodzinnego Lambada - idealne rozwiązanie dla rodzin ceniących przestrzeń i dynamiczny styl życia! Ten parterowy dom z poddaszem użytkowym łączy praktyczność z wyjątkową estetyką, oferując funkcjonalny układ pomieszczeń, garaż dwustanowiskowy i piękny taras na długie popołudnia.

Elegancki wygląd, efektowne wykończenie i solidna konstrukcja sprawiają, że dom Lambada to doskonała inwestycja na lata. Przekonaj się, jak możesz odmienić codzienność, wybierając projekt dopasowany do Twoich potrzeb.

Dlaczego warto wybrać projekt domu Lambada?

  • Garaż na dwa auta: Zyskaj komfort niezależności i bezpieczeństwa dla swoich pojazdów dzięki przestronnemu, dwustanowiskowemu garażowi.
  • Wyjątkowy taras: Zrelaksuj się na obszernym tarasie, gdzie czeka miejsce na rodzinne spotkania i odpoczynek na świeżym powietrzu bez względu na porę roku.
  • Kominek w projekcie: Stwórz niepowtarzalny klimat w salonie. Kominek to serce domu, przy którym spędzisz niezapomniane chwile z bliskimi.
  • Nowoczesny styl i trwałe materiały: Elewacje wykończone klinkierem i drewnem przyciągają wzrok i podnoszą prestiż budynku, a technologie murowane gwarantują wieloletnią trwałość.
  • Optymalna bryła z dwuspadowym dachem: Dach o kącie nachylenia 42° i blacha na rąbek łączą elegancję z doskonałą ochroną przed niesprzyjającą pogodą.

Funkcjonalność i styl - poznaj szczegóły projektu Lambada

Projekt domu Lambada to odpowiedź na oczekiwania aktywnych rodzin poszukujących praktycznego, ale i efektownego domu. Układ pomieszczeń obejmuje aż pięć pokoi, co pozwala zaaranżować osobne strefy dla każdego domownika - od komfortowej sypialni po inspirujące miejsce do pracy czy nauki.

Dwuspadowy dach o nachyleniu 42 stopni sprawia, że sylwetka budynku wyróżnia się na tle innych, a kalenica równoległa do ulicy podkreśla nowoczesny charakter projektu. Starannie dobrane materiały, jak pustaki Porotherm oraz elewacje z płytki klinkierowej i drewna, nie tylko podnoszą trwałość konstrukcji, ale także emanują niepowtarzalnym stylem.

Dom wybudowany na podstawie projektu Lambada oferuje funkcjonalne wnętrza i wygodę użytkowania przez okrągły rok. Brak piwnicy upraszcza organizację przestrzeni, a solidne fundamenty pozwalają postawić dom niemal na każdej działce. Ogrzewanie gazowe oraz wentylacja mechaniczna sprzyjają energooszczędności i dbają o zdrowe powietrze. Strop gęstożebrowy to gwarancja akustycznego komfortu.

Podsumowanie głównych atutów projektu domu Lambada

  • Nowoczesna estetyka: Drewniana i klinkierowa elewacja nadaje charakter.
  • Przemyślany układ: 5 pokoi daje przestrzeń dla całej rodziny.
  • Praktyczny taras: Doskonały na odpoczynek i rodzinne spotkania.
  • Kominek dla klimatu: Ciepło i przyjemny nastrój na co dzień.
  • Dwuspadowy dach 42°: Nowoczesny wygląd i ochrona przed pogodą.

Zobacz, jak projekt Lambada może zmienić Twój sposób życia! Wybierz nowoczesny dom, który łączy ponadczasową stylistykę z funkcjonalnością. Nie zwlekaj - zamów projekt i rozpocznij budowę swojego wymarzonego domu już teraz.



Technologia wykonania:

  • Fundamenty: betonowe ławy i ściany fundamentowe z bloczków betonowych.
  • Ściany zewnętrzne: ściany murowane – pustaki porotherm 25 + styropian.
  • Strop: gęstożebrowy.
  • Elewacje: płytki klinkierowe i elewacja drewniana.
  • Dach: dwuspadowy, kąt nachylenia 42 st.
  • Pokrycie dachu: blacha na rąbek.
  • Ogrzewanie: kocioł gazowy.
  • Wentylacja:mechaniczna.

Częste pytania

Czy projekty z Planz.pl są kompletne?

Tak. Projekty dostępne na Planz.pl zawierają pełną dokumentację potrzebną do uzyskania pozwolenia na budowę i stanowią gwarancję sprawnej realizacji budowy.

Jesteśmy oficjalnym partnerem ponad 50 pracowni architektonicznych z całej Polski - dlatego każdy projekt pochodzi wyłącznie od autorów zrzeszonych w Izbie Architektów RP. 

Planz.pl to polska firma działającą na rynku od 15 lat. Mamy tysiące zadowolonych klientów, doskonałe opinie i oferujemy wsparcie również po zakupie, doradzamy, pomagamy w adaptacji i pozostajemy w kontakcie na każdym etapie inwestycji.

Dodatkowo do każdego projektu dodajemy tablicę informacyjną, dziennik budowy oraz 16 projektów elektronicznych drewnianej architektury ogrodowej. A dzięki naszej współpracy z producentami sprzętu elektrycznego, oferujemy możliwość otrzymania np. Wiertarki udarowej w formie atrakcyjnego gratisu.

Wybierając Planz.pl, otrzymujesz ten sam oryginalny projekt od autora, wzbogacony o realne dodatki, które ułatwiają rozpoczęcie budowy.

Czy mogę wprowadzić zmiany w projekcie?

Co zrobić gdy wybrany dom nie mieści się na działce?

Jakie zmiany można wprowadzić w projekcie?

Porady ekspertów

Poznaj praktyczne porady ekspertów, które ułatwią Ci każdy etap budowy i od wyboru wymarzonego domu po jego wykończenie. Zyskaj pewność, że podejmujesz najlepsze decyzje dzięki sprawdzonym wskazówkom od specjalistów z planz.pl

Co zawiera projekt

  • ✓ 3 x projekt architektoniczno-budowlany ➞ szczegóły
  • ✓ Projekty techniczne ➞ szczegóły
  • ✓ charakterystyka energetyczna (do projektów domów)
  • ✓ zgoda na zmiany w projekcie ➞ szczegóły
  • ✓ GRATIS: Wiertarka (do projektów w cenie od 3000 zł)
  • ✓ GRATIS: 16 projektów (drewutni, altany i wiaty)
  • ✓ GRATIS: tablica i dziennik budowy
  • ✓ GRATIS: przesyłka kurierska

Dodatki do projektu Lambada

Dodatki możesz kupić razem z projektem lub dokupić po czasie

[MG] Pakiet energooszczędny (0 zł)

[MG] Pakiet kotłownia na paliwo stałe (550 zł)

[MG] Kosztorys inwestorski (600 zł)

[MG] Pakiet instalacja fotowoltaiczna (550 zł)

[MG] Projekt instalacji odkurzania centralnego (550 zł)

[MG] Wersja elektroniczna projektu (600 zł)

[MG] Pakiet instalacja solarna (550 zł)

[MG] Ogrzewanie podłogowe (550 zł)

[MG] Pakiet pompa ciepła (550 zł)

[MG] Pakiet klimatyzacja (550 zł)

[MG] Pakiet wentylacja mechaniczna i kominek DGP (550 zł)

[MG] Pakiet płaszcz wodny (550 zł)

[MG] Projekt szamba (0 zł)

[MG] Dodatkowy egzemplarz (650 zł)

[Planz] Tablica budowlana (0 zł)

[Planz] Dziennik budowy (0 zł)

[Planz] Wiertarka udarowa (0 zł)

[Planz] Zgoda na zmiany w projekcie (0 zł)

[Planz] Projekty architektury ogrodowej (0 zł)

[Planz] Charakterystyka energetyczna, tylko dla domów całorocznych (0 zł)

Wysyłka i płatność za projekt Lambada

Koszty wysyłki

bezpłatnie (0zł)

Formy płatności

przelew zwykły / PayNow
przy odbiorze

Czas oczekiwania

3-10 dni roboczych

 

Komentarze / pytania do projektu domu Lambada

Jakub

Projekt Domu Lambada wyróżnia się oryginalnym połączeniem funkcjonalności z nowoczesnym designem, co sprawia, że jest idealnym wyborem dla rodziny ceniącej sobie styl życia blisko natury i współczesne podejście do architektury. Jasna elewacja z elementami drewna doskonale wpisuje się w otoczenie ogrodowe, tworząc harmonijną całość. Przestronne wnętrze, wielofunkcyjne pomieszczenia oraz przeszklone ściany zapewniają nie tylko komfortowe użytkowanie, ale również maksymalne wykorzystanie światła naturalnego, co jest nie tylko praktyczne, ale i ekologiczne. To idealne połączenie estetyki i użyteczności, które zapewni ciepło domowego ogniska każdego dnia. Projekt Domu Lambada to więcej niż dom; to przestrzeń, gdzie każdy dzień można zaczynać od pięknych widoków i zakończyć w komforcie własnego azylu.

FAQ

Czy można w projekcie domu Lambada zmienić przewidziany rodzaj ogrzewania, np. zastosować pompę ciepła zamiast ogrzewania gazowego?

Czy układ pomieszczeń w projekcie Lambada pozwala na wydzielenie oddzielnego biura lub pokoju gościnnego na parterze?

Czy wykończenie elewacji klinkierem i drewnem jest obowiązkowe, czy można wybrać inne materiały podczas budowy domu Lambada?

Szacunkowy kosztorys dla projektu Lambada

Stan surowy zamknięty 364000 zł
Stan surowy zamknięty
Stan deweloperski 560500 zł
Stan deweloperski

Wycena szacunkowa, w kwotach netto, nie zawiera instalacji.

PRACOWNIA: MG Projekt