L-95 z bali



Wypełnij formularz i otrzymaj rysunki w pdf z dokładnymi wymiarami budynku i pomieszczeń (długość, szerokość, wysokość) dla projektu L-310
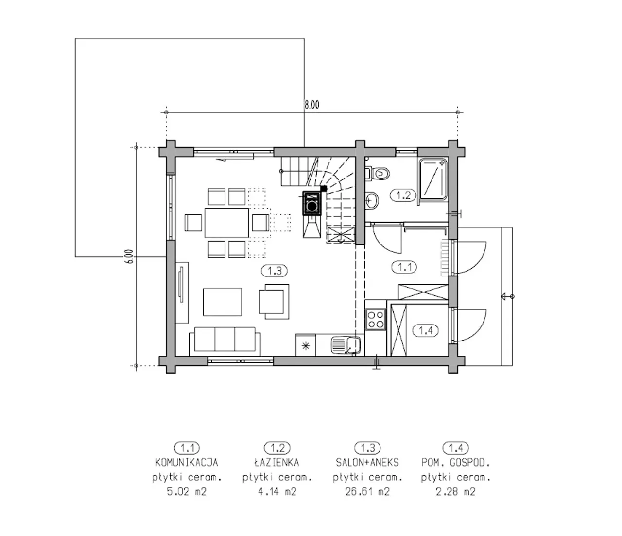
Pow. użytkowa 66.79 m² |
Ilość pokoi 4 |
Powierzchnia zabudowy 48 m² |
Kondygnacje parterowy+poddasze |
Garaż bez garażu |
Technologia z bali |
Szerokość działki 18 m |
Obiekt dom |
Typ domu jednorodzinny całoroczny |
Powierzchnia dachu 150 m² |
Długość działki 20 m |
Bryła budynku prosta bryła |
Wysokość budynku 7.36 m |
Kalenica równoległa do drogi |
Styl budynku tradycyjny |
Liczba łazieniek 1 |
Kąt nachylenia dachu 45 ° |
Funkcje dodatkowe z lukarnami |
Szerokość budynku 8 m |
Kominek kominek w projekcie |
Długość budynku 6 m |
Rodzaj dachu dwuspadowy |
Piwnica bez podpiwniczenia |
Kubatura 282 m³ |
Koszty budowy tylko z kosztorysem, 200-250 tys. |
Pow. użytkowa 66.79 m² |
Powierzchnia zabudowy 48 m² |
Garaż bez garażu |
Szerokość działki 18 m |
Typ domu jednorodzinny całoroczny |
Długość działki 20 m |
Wysokość budynku 7.36 m |
Styl budynku tradycyjny |
Kąt nachylenia dachu 45 ° |
Szerokość budynku 8 m |
Długość budynku 6 m |
Piwnica bez podpiwniczenia |
Koszty budowy tylko z kosztorysem, 200-250 tys. |
Ilość pokoi 4 |
Kondygnacje parterowy+poddasze |
Technologia z bali |
Obiekt dom |
Powierzchnia dachu 150 m² |
Bryła budynku prosta bryła |
Kalenica równoległa do drogi |
Liczba łazieniek 1 |
Funkcje dodatkowe z lukarnami |
Kominek kominek w projekcie |
Rodzaj dachu dwuspadowy |
Kubatura 282 m³ |
Odkryj funkcjonalność i wyjątkowy styl tradycyjnego, jednorodzinnego domu z bali z dwuspadowym dachem i poddaszem do adaptacji. Ten projekt wyróżnia się prostą, ponadczasową bryłą oraz przemyślanym układem pomieszczeń, które odpowiadają na potrzeby osób poszukujących przestrzeni na lata. Dom bez garażu, z kominkiem w salonie oraz czterema wygodnymi pokojami, świetnie wpisuje się na działki o wąskiej zabudowie.
Wybierając ten projekt, inwestujesz w trwałe materiały, przytulny klimat i ponadczasową elegancję. Przekonaj się, jak wygodne i praktyczne może być codzienne życie w domu zaprojektowanym z myślą o Tobie i Twojej rodzinie.
Ten projekt to połączenie nowoczesnych rozwiązań funkcjonalnych z wyrazistą, tradycyjną architekturą. Prosta forma domu ułatwia prace budowlane i pozwala zoptymalizować koszty wykonania. Brak garażu czyni projekt uniwersalnym - pasuje zarówno do niewielkich działek, jak i terenów rekreacyjnych. Wnętrze tworzą cztery ustawne pokoje rozmieszczone na dwóch kondygnacjach: parterze oraz poddaszu z lukarnami, które nadają bryle lekkości i zwiększają powierzchnię użytkową poddasza.
Atutem projektu jest wyraźnie wydzielona strefa dzienna z kominkiem, a także praktyczne rozwiązania dachu dwuspadowego z kalenicą równoległą do drogi - świetnie komponuje się z sąsiednimi domami i wpisuje się w założenia tradycyjnej zabudowy. Technologia wykonania z bali gwarantuje ponadprzeciętną trwałość ścian oraz wspaniały mikroklimat we wnętrzu przez cały rok.
Nie zwlekaj - zamów gotowy projekt domu z bali i rozpocznij budowę rodzinnej przestrzeni na pokolenia. Przekonaj się, jak wiele możliwości daje tradycyjna, a zarazem nowoczesna forma domu.
Kupując projekt w technologii murowanej powinieneś budować dom murowany. Zupełna zmiana technologii na szkieletową wymaga przeprojektowania całego budynku ( zmieniają się obciążenia, fundamenty, konstrukcja dachu). Wydamy zgodę na takie przeprojektowanie jednak wiążę się to z dużymi kosztami. Istnieją firmy wykonawcze, które podejmują się zmiany technologii budowy bezpłatnie przy skorzystaniu z ich usług wykonawczych. Zdarza się, że pracownia architektoniczna przygotowuje warianty konkretnego projektu przewidując także inne technologie. Prosimy o sprawdzenie czy istnieje poszukiwana wersja projektu, w zakładce - warianty projektu.
Zwężenie/poszerzenie budynku* to nic innego jak zmiana w projekcie. Istnieje możliwość wprowadzenia takich zmian, we własnym zakresie (podczas adaptacji). *zwężenie/poszerzenie budynku nie powinno stanowić problemu w przypadku domów o dachu dwuspadowym jeśli wiąże się to z wydłużeniem/skróceniem kalenicy dachu.
Poznaj praktyczne porady ekspertów, które ułatwią Ci każdy etap budowy i od wyboru wymarzonego domu po jego wykończenie. Zyskaj pewność, że podejmujesz najlepsze decyzje dzięki sprawdzonym wskazówkom od specjalistów z planz.pl
Wycena szacunkowa, w kwotach netto, nie zawiera instalacji.
bezpłatnie (0zł)
przelew zwykły / PayNow
przy odbiorze
3-5 dni roboczych (jeśli projekt nie jest koncepcją)
Wybierz wygodny dla Ciebie czas kontaktu z naszym Doradcą Technicznym.