L-209



Wypełnij formularz i otrzymaj rysunki w pdf z dokładnymi wymiarami budynku i pomieszczeń (długość, szerokość, wysokość) dla projektu L-225
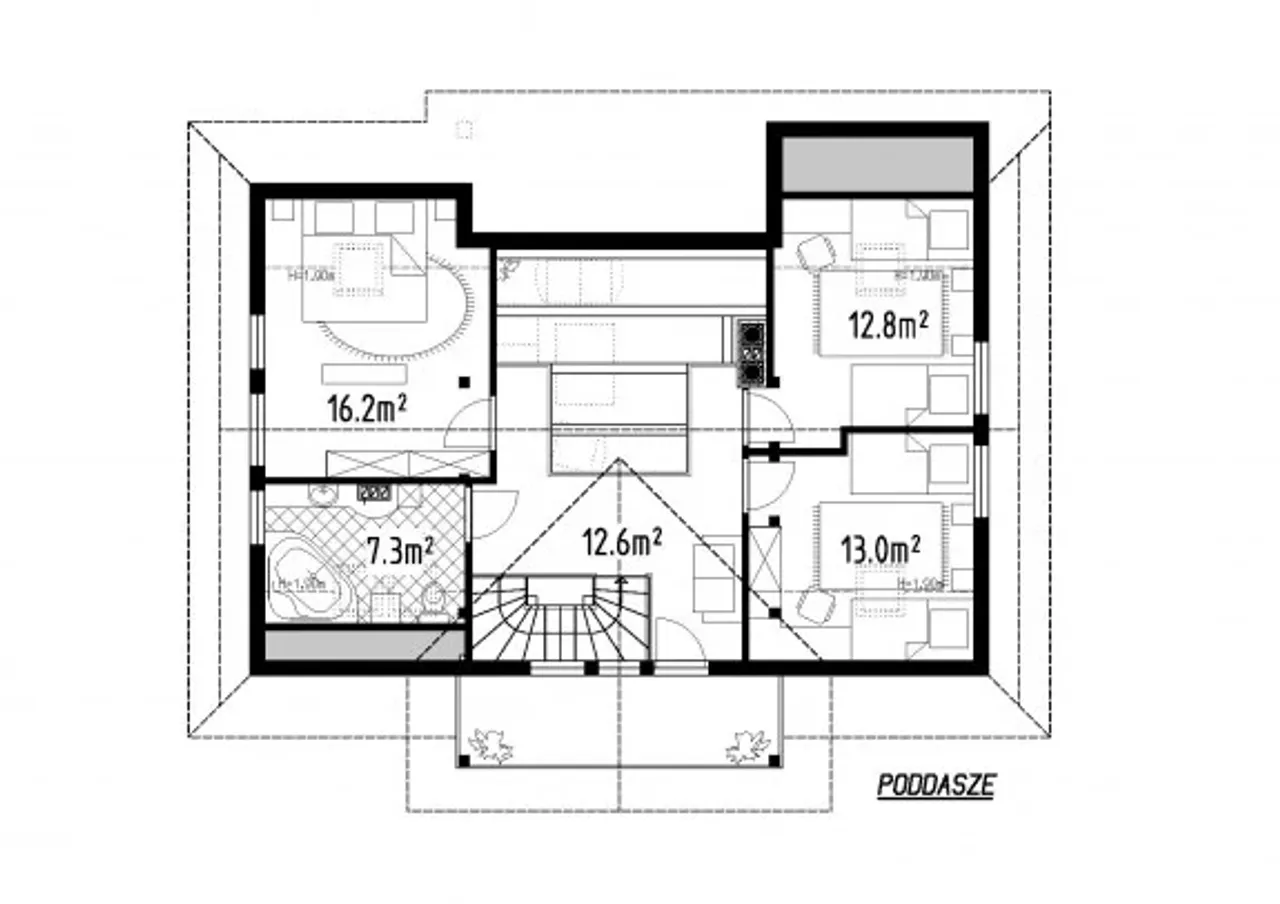
Pow. użytkowa 110 m² |
Powierzchnia zabudowy 112 m² |
Kondygnacje parterowy+poddasze |
Garaż bez garażu |
Technologia z bali |
Szerokość działki 17 m |
Obiekt dom |
Typ domu jednorodzinny całoroczny |
Styl budynku tradycyjny |
Kubatura 690 m³ |
Wysokość budynku 7.63 m |
Piwnica bez podpiwniczenia |
Długość działki 20 m |
Pow. użytkowa 110 m² |
Kondygnacje parterowy+poddasze |
Technologia z bali |
Obiekt dom |
Styl budynku tradycyjny |
Wysokość budynku 7.63 m |
Długość działki 20 m |
Powierzchnia zabudowy 112 m² |
Garaż bez garażu |
Szerokość działki 17 m |
Typ domu jednorodzinny całoroczny |
Kubatura 690 m³ |
Piwnica bez podpiwniczenia |
Wyobraź sobie całoroczny dom jednorodzinny z poddaszem, stworzony w tradycyjnym stylu z solidnych bali. Taki właśnie jest projekt domu L-225 AVO. Skoncentruj się na tym, co najważniejsze - funkcjonalnej przestrzeni, wygodzie użytkowania i wyjątkowej trwałości konstrukcji, która zachwyci nawet najbardziej wymagających inwestorów.
Dom wybudowany według tego projektu to pewność komfortu użytkowania przez cały rok, energooszczędności i przyjaznego, naturalnego mikroklimatu. Zyskasz przestrzeń wolną od wilgoci i zimnych podmuchów, w której każdy dzień będzie przyjemnością.
Projekt domu jednorodzinnego z bali L-225 AVO to połączenie klasycznego wyglądu i współczesnej wygody. Parterowy układ z poddaszem tworzy kompaktową, dobrze zorganizowaną przestrzeń. Dzięki zastosowaniu bali dom świetnie trzyma ciepło, co pozwala ograniczyć koszty eksploatacji przez cały rok. Brak garażu to szansa na większy ogród lub własny kącik rekreacyjny.
Konstrukcja z bali wpływa na pozytywny mikroklimat w domu - powietrze jest czystsze i świeższe, a wnętrze nieustannie otula naturalną wonią drewna. Styl tradycyjny tej inwestycji doskonale wpisuje się zarówno w otoczenie podmiejskie, jak i górskie czy wiejskie. Brak podpiwniczenia upraszcza proces budowy i obniża jej koszt, nie tracąc przy tym ani na estetyce, ani na funkcjonalności wnętrz.
Decydując się na ten projekt, wybierasz dom bez kompromisów - zyskujesz wygodę użytkowania, zdrowy klimat i ponadczasową formę, która nigdy się nie zestarzeje.
Zainwestuj w projekt domu z bali L-225 AVO i ciesz się solidnym, ciepłym domem na pokolenia. Sprawdź dostępność projektu i rozpocznij realizację swojej inwestycji już dziś!
Kupując projekt w technologii murowanej powinieneś budować dom murowany. Zupełna zmiana technologii na szkieletową wymaga przeprojektowania całego budynku ( zmieniają się obciążenia, fundamenty, konstrukcja dachu). Wydamy zgodę na takie przeprojektowanie jednak wiążę się to z dużymi kosztami. Istnieją firmy wykonawcze, które podejmują się zmiany technologii budowy bezpłatnie przy skorzystaniu z ich usług wykonawczych. Zdarza się, że pracownia architektoniczna przygotowuje warianty konkretnego projektu przewidując także inne technologie. Prosimy o sprawdzenie czy istnieje poszukiwana wersja projektu, w zakładce - warianty projektu.
Zwężenie/poszerzenie budynku* to nic innego jak zmiana w projekcie. Istnieje możliwość wprowadzenia takich zmian, we własnym zakresie (podczas adaptacji). *zwężenie/poszerzenie budynku nie powinno stanowić problemu w przypadku domów o dachu dwuspadowym jeśli wiąże się to z wydłużeniem/skróceniem kalenicy dachu.
Poznaj praktyczne porady ekspertów, które ułatwią Ci każdy etap budowy i od wyboru wymarzonego domu po jego wykończenie. Zyskaj pewność, że podejmujesz najlepsze decyzje dzięki sprawdzonym wskazówkom od specjalistów z planz.pl
bezpłatnie (0zł)
przelew zwykły / PayNow
przy odbiorze
3-5 dni roboczych (jeśli projekt nie jest koncepcją)
Wybierz wygodny dla Ciebie czas kontaktu z naszym Doradcą Technicznym.