- Promocja GRATISOWA do 03.10.2025 ➞ sprawdź zasady
- ✓ GRATIS: Wiertarka
- ✓ GRATIS: 16 projektów (drewutni, altany i wiaty)
- ✓ GRATIS: tablica i dziennik budowy
- ✓ GRATIS: przesyłka kurierska
- Potrzebujesz ADAPTACJI lub architekta do ZMIAN w projekcie? ➞ sprawdź jak pomożemy bez dodatkowej opłaty
Zapoznaj się ze szczegółami projektu - pobierz bezpłatne rysunki do: L-165
Wypełnij formularz i otrzymaj rysunki w pdf z dokładnymi wymiarami budynku i pomieszczeń (długość, szerokość, wysokość) dla projektu L-165

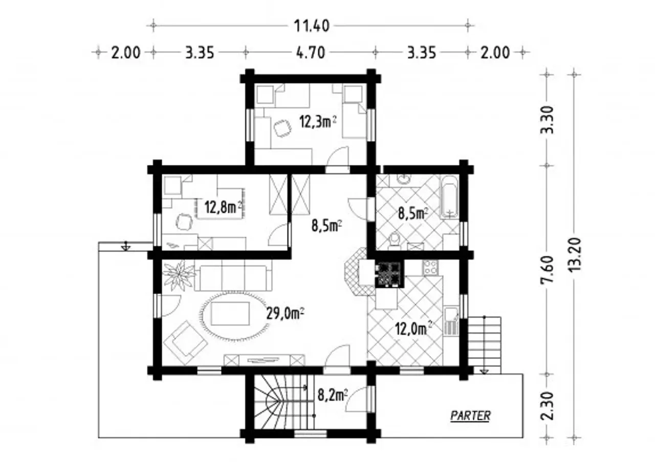
Parametry Techniczne gotowego projektu domu L-165
Pow. użytkowa 161.5 m² |
Powierzchnia zabudowy 113 m² |
Kondygnacje parterowy+poddasze |
Garaż bez garażu |
Technologia z bali |
Szerokość działki 14.5 m |
Obiekt dom |
Typ domu jednorodzinny całoroczny |
Styl budynku tradycyjny |
Kubatura 720 m³ |
Wysokość budynku 9.82 m |
Piwnica bez podpiwniczenia |
Długość działki 21 m |
Pow. użytkowa 161.5 m² |
Kondygnacje parterowy+poddasze |
Technologia z bali |
Obiekt dom |
Styl budynku tradycyjny |
Wysokość budynku 9.82 m |
Długość działki 21 m |
Powierzchnia zabudowy 113 m² |
Garaż bez garażu |
Szerokość działki 14.5 m |
Typ domu jednorodzinny całoroczny |
Kubatura 720 m³ |
Piwnica bez podpiwniczenia |
Nasze prawdziwe opinie z Google
Opis projektu domu L-165
Projekt domu jednorodzinnego całorocznego z bali bez garażu - L-165
Planujesz budowę trwałego, przytulnego domu w klasycznym stylu z bali? Projekt L-165 to propozycja dla osób, które cenią solidne rozwiązania i tradycyjną architekturę, a jednocześnie stawiają na wygodę użytkowania przez cały rok. Przemyślany układ parterowy z poddaszem zapewni swobodę aranżacji i komfort rodzinnego życia.
Dom wybudowany według projektu L-165 stanie się Twoją spokojną przystanią - idealną zarówno na codzienność, jak i rodzinne uroczystości. Naturalna technologia budowy z bali przyciąga atmosferą i autentycznością, którą trudno znaleźć w domach z innych materiałów.
Zalety projektu domu z bali L-165 bez garażu
- Technologia z bali: Zapomnij o sztuczności - naturalne drewno zatrzymuje ciepło i dodaje wnętrzom niepowtarzalnego uroku.
- Parter + poddasze: Swobodnie podzielisz strefę dzienną i sypialnianą, zyskując optymalną organizację przestrzeni.
- Tradycyjny styl: Klasyczna sylwetka budynku pięknie wpisze się zarówno w górski krajobraz, jak i podmiejski charakter działki.
- Całoroczny dom jednorodzinny: Projekt dostosowany do całorocznego użytkowania, sprawdzi się zarówno jako główny dom, jak i letniskowy azyl.
- Brak podpiwniczenia: Oszczędność kosztów budowy i łatwiejsza realizacja - skup się na tym, co najważniejsze.
Dlaczego warto wybrać projekt domu L-165 z bali?
Projekt L-165 idealnie łączy tradycyjny wygląd z nowoczesną funkcjonalnością. Drewniana bryła stwarza przyjazny mikroklimat, neutralny dla zdrowia i komfortowy w każdej porze roku. Przestronna parterowa część sprzyja rodzinnemu życiu - salon, kuchnia i jadalnia harmonijnie się uzupełniają, tworząc serce domu. Poddasze umożliwia elastyczną aranżację sypialni oraz prywatnych zakątków do relaksu lub pracy. Taki układ gwarantuje wygodę dla każdego domownika i łatwą adaptację wnętrz w miarę rosnących potrzeb rodziny.
Technologia bali to nie tylko wyjątkowy design - drewno doskonale izoluje, tłumi dźwięki i utrzymuje korzystny mikroklimat. Brak garażu to okazja do zaaranżowania dodatkowej przestrzeni rekreacyjnej, warzywnika lub szerokiego tarasu. Zrealizuj wizję swojego wymarzonego domu rodzinnego, który zostanie z Tobą na pokolenia dzięki solidności i szlachetności użytych materiałów.
Korzyści z wyboru projektu L-165:
- Naturalny mikroklimat wnętrz przez cały rok
- Optymalne wykorzystanie powierzchni dzięki poddaszu
- Uniwersalny, ponadczasowy wygląd budynku
- Łatwa adaptacja do indywidualnych potrzeb
Nie zwlekaj - wybierz projekt domu L-165, by szybko rozpocząć budowę wymarzonego domu z bali! Przekonaj się, jak komfortowo można mieszkać w tradycyjnej, drewnianej zabudowie. Zainwestuj w projekt, który łączy praktyczne rozwiązania ze sprawdzoną stylistyką - to Twoja gwarancja udanej inwestycji!
Częste pytania
Czy mogę wprowadzić zmiany w projekcie?
Projekt jest murowany, a ja chcę budować drewniany
Kupując projekt w technologii murowanej powinieneś budować dom murowany. Zupełna zmiana technologii na szkieletową wymaga przeprojektowania całego budynku ( zmieniają się obciążenia, fundamenty, konstrukcja dachu). Wydamy zgodę na takie przeprojektowanie jednak wiążę się to z dużymi kosztami. Istnieją firmy wykonawcze, które podejmują się zmiany technologii budowy bezpłatnie przy skorzystaniu z ich usług wykonawczych. Zdarza się, że pracownia architektoniczna przygotowuje warianty konkretnego projektu przewidując także inne technologie. Prosimy o sprawdzenie czy istnieje poszukiwana wersja projektu, w zakładce - warianty projektu.
Co zrobić gdy wybrany dom nie mieści się na działce?
Zwężenie/poszerzenie budynku* to nic innego jak zmiana w projekcie. Istnieje możliwość wprowadzenia takich zmian, we własnym zakresie (podczas adaptacji). *zwężenie/poszerzenie budynku nie powinno stanowić problemu w przypadku domów o dachu dwuspadowym jeśli wiąże się to z wydłużeniem/skróceniem kalenicy dachu.
Jakie zmiany można wprowadzić w projekcie?
- Rozmieszczenie ścian działowych.
- Zmiany funkcji pomieszczeń.
- Modyfikacje wielkości, ilości i kształtu otworów okiennych i drzwiowych.
- Użycie innych materiałów na elementy konstrukcyjne budynku (ściany, stropy) przy zachowaniu wymagań konstrukcji, parametrów cieplnych budynku i elewacji.
- Wprowadzenie częściowego lub całkowitego podpiwniczenia budynku.
- Zmiana kąta nachylenia, kształtu i konstrukcji dachu.
- Zmiana sposobu ogrzewania i prowadzenia instalacji CO, zmiany instalacji wodno-kanalizacyjnej, gazowej, oraz elektrycznej (zachowując obowiązujące normy, zgodnie z prawem budowlanym).
- Zmiana materiałów wykończeniowych: posadzek, tynków, dachówki, izolacji cieplnej i przeciwwilgociowej (przy zachowaniu niezbędnych parametrów wytrzymałości oraz parametrów przenikania ciepła).
- Zmiany wynikające z dostosowania budynku do warunków gruntowych.
- Zmiany wymiarów fundamentów.
- Zmiany wymiarów przekrojów lub rozstawu elementów więźby dachowej wynikające z dostosowania budynku do strefy śniegowej lub wiatrowej.
- Zmiany szerokości schodów, liczby stopni i wymiarów schodów wewnętrznych oraz zewnętrznych.
- Zmiany pokrycia dachowego (uwzględniając istniejące spadki i ciężar).
- Zmiany kształtu, wielkości, usytuowania elementów takich jak tarasy, wiaty, murki.
- Zmiany wysokości ścianki kolankowej.
- Zmiany usytuowania i ilości kominów.
- Dobudowanie lub usunięcie garażu lub wiaty garażowej.
- Dobudowanie lub usunięcie lukarn.
- Dobudowanie lub usunięcie balkonów.
- Dobudowanie lub usunięcie wykuszy.
- Zabudowanie podcienia.
Poznaj praktyczne porady ekspertów, które ułatwią Ci każdy etap budowy i od wyboru wymarzonego domu po jego wykończenie. Zyskaj pewność, że podejmujesz najlepsze decyzje dzięki sprawdzonym wskazówkom od specjalistów z planz.pl
Co zawiera projekt
- ✓ 3 x projekt architektoniczno-budowlany ➞ szczegóły
- ✓ Projekty techniczne ➞ szczegóły
- ✓ charakterystyka energetyczna (do projektów domów)
- ✓ zgoda na zmiany w projekcie ➞ szczegóły
- ✓ GRATIS: Wiertarka (do projektów w cenie od 3000 zł)
- ✓ GRATIS: 16 projektów (drewutni, altany i wiaty)
- ✓ GRATIS: tablica i dziennik budowy
- ✓ GRATIS: przesyłka kurierska
Dodatki do projektu L-165
[AVO] Kosztorys (650 zł)
[AVO] dodatkowy egzemplarz projektu (250 zł)
[AVO] Wersja elektroniczna (600 zł)
[Planz] Tablica budowlana (0 zł)
[Planz] Dziennik budowy (0 zł)
[Planz] Wiertarka udarowa (0 zł)
[Planz] Zgoda na zmiany w projekcie (0 zł)
[Planz] Projekty architektury ogrodowej (0 zł)
[Planz] Charakterystyka energetyczna, tylko dla domów całorocznych (0 zł)
Wysyłka i płatność za projekt L-165

Koszty wysyłki
bezpłatnie (0zł)

Formy płatności
przelew zwykły / PayNow
przy odbiorze

Czas oczekiwania
3-5 dni roboczych (jeśli projekt nie jest koncepcją)
Komentarze / pytania do projektu domu L-165
Projekt w kategoriach
Zamów rozmowę
Wybierz wygodny dla Ciebie czas kontaktu z naszym Doradcą Technicznym.