L-118



Wypełnij formularz i otrzymaj rysunki w pdf z dokładnymi wymiarami budynku i pomieszczeń (długość, szerokość, wysokość) dla projektu L-134
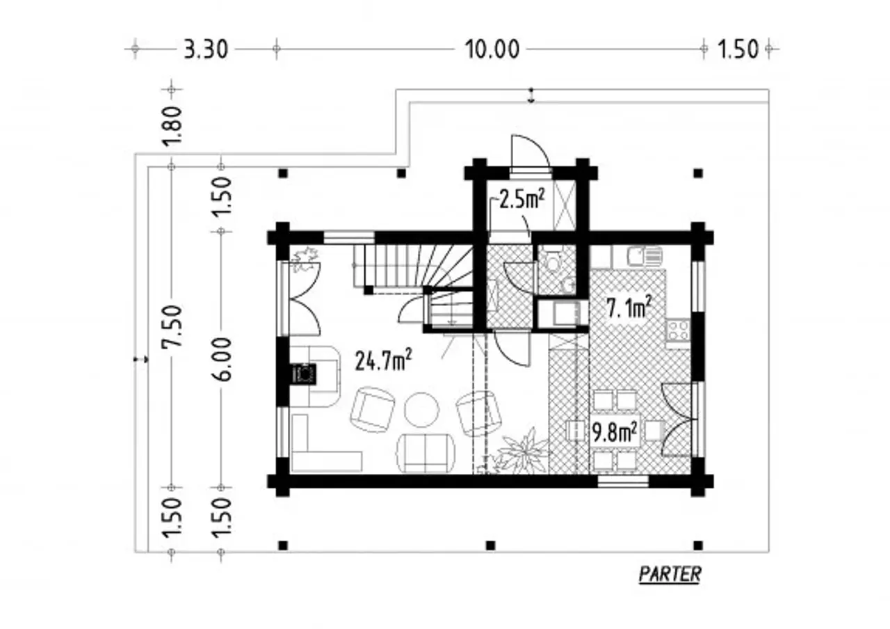
Pow. użytkowa 75.2 m² |
Powierzchnia zabudowy 88.3 m² |
Kondygnacje parterowy+poddasze |
Garaż bez garażu |
Technologia z bali |
Szerokość działki 16 m |
Obiekt dom |
Typ domu jednorodzinny całoroczny |
Styl budynku tradycyjny |
Kubatura 535 m³ |
Wysokość budynku 7.58 m |
Piwnica bez podpiwniczenia |
Długość działki 18 m |
Pow. użytkowa 75.2 m² |
Kondygnacje parterowy+poddasze |
Technologia z bali |
Obiekt dom |
Styl budynku tradycyjny |
Wysokość budynku 7.58 m |
Długość działki 18 m |
Powierzchnia zabudowy 88.3 m² |
Garaż bez garażu |
Szerokość działki 16 m |
Typ domu jednorodzinny całoroczny |
Kubatura 535 m³ |
Piwnica bez podpiwniczenia |
Poszukujesz solidnego, całorocznego domu jednorodzinnego o tradycyjnym charakterze, wykonanego z naturalnych bali? Prezentowany projekt spełni oczekiwania nawet najbardziej wymagających inwestorów, którzy cenią ponadczasowy styl, sprawdzone technologie oraz możliwość indywidualnej aranżacji poddasza. To praktyczna przestrzeń do życia dla rodzin ceniących spokój oraz bliskość natury.
Dom parterowy z poddaszem do własnej adaptacji otwiera szerokie możliwości personalizacji wnętrza. Przemyślany układ funkcjonalny ułatwia codzienne życie, a brak garażu sprzyja większej ilości powierzchni użytkowej oraz niższym kosztom realizacji inwestycji. Sprawdź, dlaczego ten projekt cieszy się niesłabnącą popularnością wśród sympatyków architektury z bali!
Dom jednorodzinny z bali doskonale sprawdzi się jako komfortowa siedziba na co dzień, jak również miejsce niespiesznego wypoczynku w każdy weekend. Parter stanowi główną przestrzeń użytkową - to tutaj można zaplanować przestronny salon, kuchnię, łazienkę lub gabinet według własnych potrzeb. Funkcjonalne poddasze umożliwia bieżącą adaptację wraz ze zmieniającymi się oczekiwaniami domowników.
Tradycyjny styl architektury podkreśla niepowtarzalny charakter tego projektu, dodając całej inwestycji ponadczasowej wartości estetycznej. Technologia budowy z bali sprawia, że dom jest przyjazny środowisku, zdrowy dla mieszkańców oraz łatwy w utrzymaniu. Brak garażu sprzyja lepszemu wykorzystaniu terenu działki oraz obniża sumaryczne koszty budowy i eksploatacji.
Nie zwlekaj - zamów projekt domu jednorodzinnego z bali już dziś i postaw na ponadczasową wygodę oraz solidność!
Kupując projekt w technologii murowanej powinieneś budować dom murowany. Zupełna zmiana technologii na szkieletową wymaga przeprojektowania całego budynku ( zmieniają się obciążenia, fundamenty, konstrukcja dachu). Wydamy zgodę na takie przeprojektowanie jednak wiążę się to z dużymi kosztami. Istnieją firmy wykonawcze, które podejmują się zmiany technologii budowy bezpłatnie przy skorzystaniu z ich usług wykonawczych. Zdarza się, że pracownia architektoniczna przygotowuje warianty konkretnego projektu przewidując także inne technologie. Prosimy o sprawdzenie czy istnieje poszukiwana wersja projektu, w zakładce - warianty projektu.
Zwężenie/poszerzenie budynku* to nic innego jak zmiana w projekcie. Istnieje możliwość wprowadzenia takich zmian, we własnym zakresie (podczas adaptacji). *zwężenie/poszerzenie budynku nie powinno stanowić problemu w przypadku domów o dachu dwuspadowym jeśli wiąże się to z wydłużeniem/skróceniem kalenicy dachu.
Poznaj praktyczne porady ekspertów, które ułatwią Ci każdy etap budowy i od wyboru wymarzonego domu po jego wykończenie. Zyskaj pewność, że podejmujesz najlepsze decyzje dzięki sprawdzonym wskazówkom od specjalistów z planz.pl
bezpłatnie (0zł)
przelew zwykły / PayNow
przy odbiorze
3-5 dni roboczych (jeśli projekt nie jest koncepcją)
Wybierz wygodny dla Ciebie czas kontaktu z naszym Doradcą Technicznym.