L-209



Wypełnij formularz i otrzymaj rysunki w pdf z dokładnymi wymiarami budynku i pomieszczeń (długość, szerokość, wysokość) dla projektu L-127
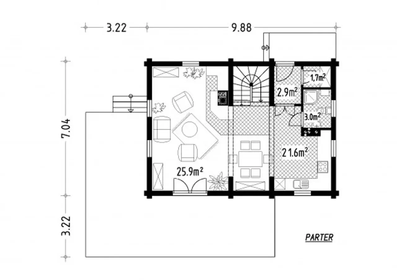
Pow. użytkowa 98.3 m² |
Powierzchnia zabudowy 115.2 m² |
Kondygnacje parterowy+poddasze |
Garaż bez garażu |
Technologia z bali |
Szerokość działki 17 m |
Obiekt dom |
Typ domu jednorodzinny całoroczny |
Styl budynku tradycyjny |
Kubatura 624 m³ |
Wysokość budynku 9.53 m |
Piwnica bez podpiwniczenia |
Długość działki 19 m |
Pow. użytkowa 98.3 m² |
Kondygnacje parterowy+poddasze |
Technologia z bali |
Obiekt dom |
Styl budynku tradycyjny |
Wysokość budynku 9.53 m |
Długość działki 19 m |
Powierzchnia zabudowy 115.2 m² |
Garaż bez garażu |
Szerokość działki 17 m |
Typ domu jednorodzinny całoroczny |
Kubatura 624 m³ |
Piwnica bez podpiwniczenia |
Odkryj urok tradycyjnego domu jednorodzinnego z bali, który łączy naturalność drewna z funkcjonalnością przestrzeni na dwóch poziomach. To doskonała propozycja dla osób poszukujących całorocznego, rodzinnego azylu, gdzie każdy detal sprzyja wygodzie codziennego życia.
Wybierz projekt przeznaczony do budowy domu parterowego z poddaszem bez garażu, stworzonego w technologii drewnianej. Solidna konstrukcja z bali tworzy niepowtarzalną atmosferę wnętrza, wnosząc do przestrzeni ciepło oraz ponadczasowy, tradycyjny charakter.
Dom z bali parterowy z poddaszem to projekt stworzony z myślą o zwolennikach harmonii z naturą oraz przytulności, jaką daje naturalne drewno. Funkcjonalny układ kondygnacji ułatwia codzienne życie, a brak podpiwniczenia oznacza szybszą realizację inwestycji oraz prostszą logistykę budowy. Pozbawiony garażu dom odpowiednio eksponuje swoją malowniczą elewację, umożliwiając zaaranżowanie komfortowego ogrodu czy tarasu tuż przy domu.
Technologia budowy z bali sprzyja zarówno energooszczędności, jak i dobremu samopoczuciu domowników. Naturalne drewno akumuluje ciepło zimą, a latem chroni przed nadmierną temperaturą, tworząc przyjazną aurę przez okrągły rok. Tradycyjny styl architektury domu jednorodzinnego wprowadza do przestrzeni niepowtarzalny, rodzinny klimat i podkreśla ponadczasowy charakter inwestycji.
Nie zwlekaj - zamów projekt domu jednorodzinnego z bali i rozpocznij inwestycję, która odmieni codzienność Twojej rodziny!
Kupując projekt w technologii murowanej powinieneś budować dom murowany. Zupełna zmiana technologii na szkieletową wymaga przeprojektowania całego budynku ( zmieniają się obciążenia, fundamenty, konstrukcja dachu). Wydamy zgodę na takie przeprojektowanie jednak wiążę się to z dużymi kosztami. Istnieją firmy wykonawcze, które podejmują się zmiany technologii budowy bezpłatnie przy skorzystaniu z ich usług wykonawczych. Zdarza się, że pracownia architektoniczna przygotowuje warianty konkretnego projektu przewidując także inne technologie. Prosimy o sprawdzenie czy istnieje poszukiwana wersja projektu, w zakładce - warianty projektu.
Zwężenie/poszerzenie budynku* to nic innego jak zmiana w projekcie. Istnieje możliwość wprowadzenia takich zmian, we własnym zakresie (podczas adaptacji). *zwężenie/poszerzenie budynku nie powinno stanowić problemu w przypadku domów o dachu dwuspadowym jeśli wiąże się to z wydłużeniem/skróceniem kalenicy dachu.
Poznaj praktyczne porady ekspertów, które ułatwią Ci każdy etap budowy i od wyboru wymarzonego domu po jego wykończenie. Zyskaj pewność, że podejmujesz najlepsze decyzje dzięki sprawdzonym wskazówkom od specjalistów z planz.pl
bezpłatnie (0zł)
przelew zwykły / PayNow
przy odbiorze
3-5 dni roboczych (jeśli projekt nie jest koncepcją)
Wybierz wygodny dla Ciebie czas kontaktu z naszym Doradcą Technicznym.