Zawoja średnia



1. Korytarz/komunikacja | 12,05 m² |
2. Pomieszczenie pomocnicze | 0,43 m² |
3. Kuchnia | 11,88 m² |
4. Salon + jadalnia | 21,06 m² |
5. Sypialnia | 13,62 m² |
6. łazienka | 3,36 m² |
7. Pomieszczenie techniczne | 3,18 m² |
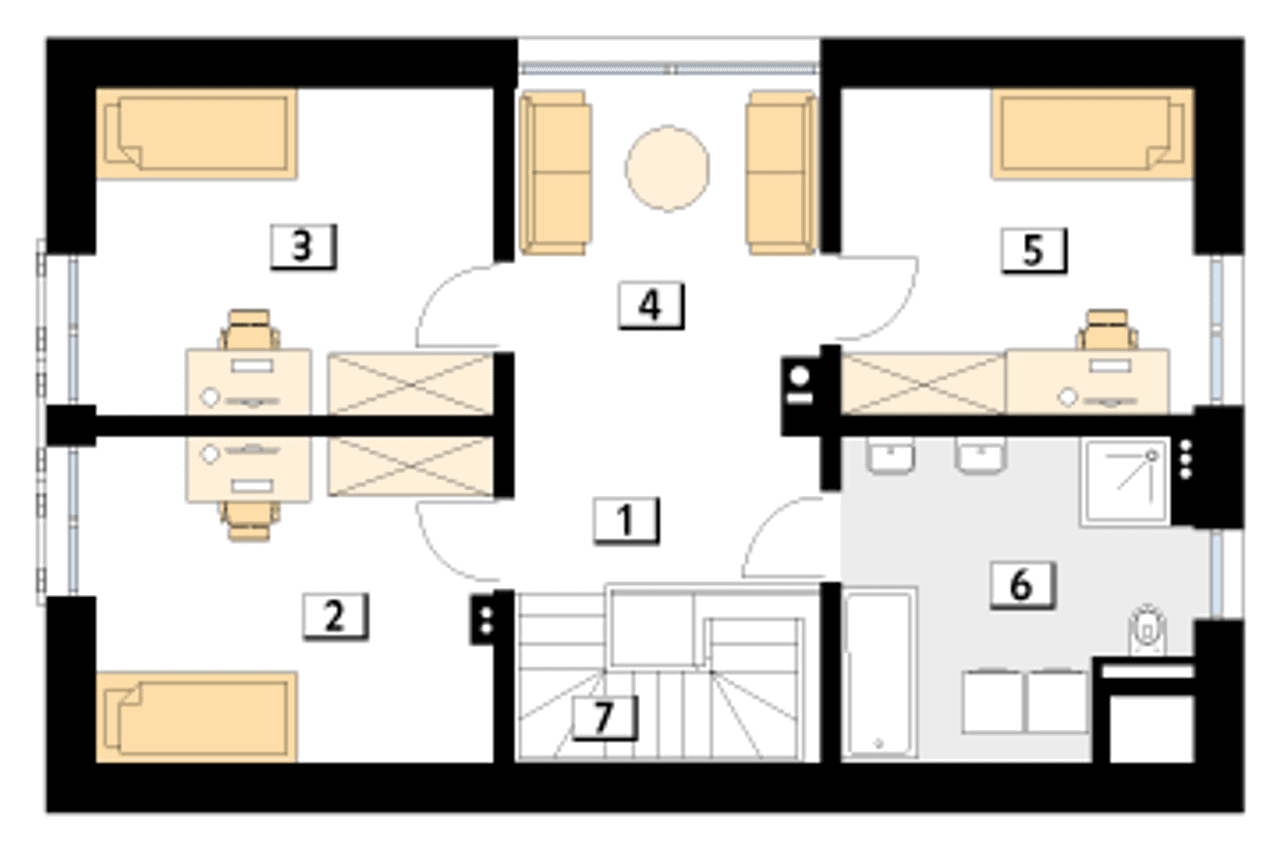
1. Korytarz/komunikacja | 4,79 m² |
2. Sypialnia | 9,32 (12,79) m² |
3. Sypialnia | 9,41 (12,90) m² |
4. Pokój | 8,87 (9,91) m² |
5. Sypialnia | 8,34 (11,43) m² |
6. łazienka | 7,72 (9,93) m² |
7. Schody | 4,38 m² |
Wypełnij formularz i otrzymaj rysunki w pdf z dokładnymi wymiarami budynku i pomieszczeń (długość, szerokość, wysokość) dla projektu Koniczynka
Pow. użytkowa 118.41 m² |
Ilość pokoi 5 |
Powierzchnia zabudowy 91.04 m² |
Kondygnacje parterowy+poddasze |
Garaż bez garażu |
Technologia murowany |
Szerokość działki 18.57 m |
Obiekt dom |
Typ domu jednorodzinny całoroczny |
Wysokość budynku 8.08 m |
Styl budynku nowoczesny |
Kalenica równoległa do drogi |
Liczba łazieniek 2 |
Szerokość budynku 7.67 m |
Kominek kominek w projekcie |
Kąt nachylenia dachu 43 ° |
Długość budynku 11.87 m |
Rodzaj dachu dwuspadowy |
Piwnica bez podpiwniczenia |
Kubatura 552.3 m³ |
Powierzchnia dachu 234.85 m² |
Długość działki 21.59 m |
Koszty budowy tylko z kosztorysem, 250-300 tys. |
Pow. użytkowa 118.41 m² |
Powierzchnia zabudowy 91.04 m² |
Garaż bez garażu |
Szerokość działki 18.57 m |
Typ domu jednorodzinny całoroczny |
Styl budynku nowoczesny |
Liczba łazieniek 2 |
Kominek kominek w projekcie |
Długość budynku 11.87 m |
Piwnica bez podpiwniczenia |
Powierzchnia dachu 234.85 m² |
Koszty budowy tylko z kosztorysem, 250-300 tys. |
Ilość pokoi 5 |
Kondygnacje parterowy+poddasze |
Technologia murowany |
Obiekt dom |
Wysokość budynku 8.08 m |
Kalenica równoległa do drogi |
Szerokość budynku 7.67 m |
Kąt nachylenia dachu 43 ° |
Rodzaj dachu dwuspadowy |
Kubatura 552.3 m³ |
Długość działki 21.59 m |
Kupując projekt w technologii murowanej powinieneś budować dom murowany. Zupełna zmiana technologii na szkieletową wymaga przeprojektowania całego budynku ( zmieniają się obciążenia, fundamenty, konstrukcja dachu). Wydamy zgodę na takie przeprojektowanie jednak wiążę się to z dużymi kosztami. Istnieją firmy wykonawcze, które podejmują się zmiany technologii budowy bezpłatnie przy skorzystaniu z ich usług wykonawczych. Zdarza się, że pracownia architektoniczna przygotowuje warianty konkretnego projektu przewidując także inne technologie. Prosimy o sprawdzenie czy istnieje poszukiwana wersja projektu, w zakładce - warianty projektu.
Zwężenie/poszerzenie budynku* to nic innego jak zmiana w projekcie. Istnieje możliwość wprowadzenia takich zmian, we własnym zakresie (podczas adaptacji). *zwężenie/poszerzenie budynku nie powinno stanowić problemu w przypadku domów o dachu dwuspadowym jeśli wiąże się to z wydłużeniem/skróceniem kalenicy dachu.
Poznaj praktyczne porady ekspertów, które ułatwią Ci każdy etap budowy i od wyboru wymarzonego domu po jego wykończenie. Zyskaj pewność, że podejmujesz najlepsze decyzje dzięki sprawdzonym wskazówkom od specjalistów z planz.pl
Wycena szacunkowa, w kwotach netto, nie zawiera instalacji.
bezpłatnie (0zł)
przelew zwykły / PayNow
przy odbiorze
3-5 dni roboczych (jeśli projekt nie jest koncepcją)
Wybierz wygodny dla Ciebie czas kontaktu z naszym Doradcą Technicznym.