Klara bez garażu B



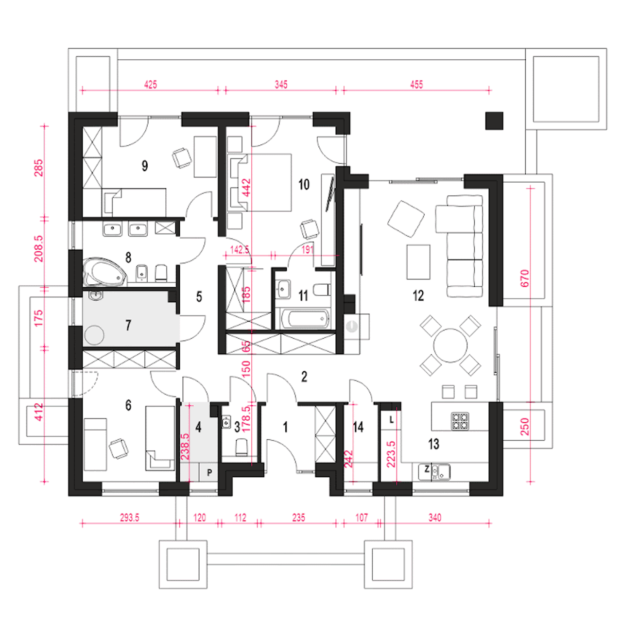
1. Wiatrołap | 4,10 m² |
2. Hol | 8,10 m² |
3. Wc | 1,90 m² |
4. Pralnia | 2,70 m² |
5. Komunikacja | 6,60 m² |
6. Sypialnia | 11,90 m² |
7. Pom. techniczne z c.o. | 4,90 m² |
8. łazienka | 6,00 m² |
9. Sypialnia | 11,90 m² |
10. Sypialnia + gardoroba | 17,70 m² |
11. łazienka | 3,40 m² |
12. Salon + jadalnia | 30,00 m² |
13. Kuchnia | 8,20 m² |
14. Spiżarnia | 2,50 m² |
Wypełnij formularz i otrzymaj rysunki w pdf z dokładnymi wymiarami budynku i pomieszczeń (długość, szerokość, wysokość) dla projektu Klara PV bez garażu B
Pow. użytkowa 112.3 m² |
Ilość pokoi 4 |
Powierzchnia zabudowy 154.1 m² |
Kondygnacje parterowy |
Garaż bez garażu |
Technologia murowany |
Szerokość działki 21.7 m |
Obiekt dom |
Typ domu jednorodzinny całoroczny |
Wysokość budynku 6.4 m |
Bryła budynku prosta bryła |
Styl budynku nowoczesny |
Liczba łazieniek 2 |
Szerokość budynku 13.7 m |
Kominek kominek w projekcie |
Kąt nachylenia dachu 25 ° |
Długość budynku 12.1 m |
Piwnica bez podpiwniczenia |
Strop gęstożebrowy |
Kubatura 324 m³ |
Rodzaj dachu wielospadowy |
Kalenica równoległa do drogi |
Powierzchnia dachu 223.5 m² |
Przechowywanie w kuchni spiżarnia |
Długość działki 20.1 m |
Funkcje dodatkowe z pralnią |
Koszty budowy 350-400 tys., tylko z kosztorysem |
Pow. użytkowa 112.3 m² |
Powierzchnia zabudowy 154.1 m² |
Garaż bez garażu |
Szerokość działki 21.7 m |
Typ domu jednorodzinny całoroczny |
Bryła budynku prosta bryła |
Liczba łazieniek 2 |
Kominek kominek w projekcie |
Długość budynku 12.1 m |
Strop gęstożebrowy |
Rodzaj dachu wielospadowy |
Powierzchnia dachu 223.5 m² |
Długość działki 20.1 m |
Koszty budowy 350-400 tys., tylko z kosztorysem |
Ilość pokoi 4 |
Kondygnacje parterowy |
Technologia murowany |
Obiekt dom |
Wysokość budynku 6.4 m |
Styl budynku nowoczesny |
Szerokość budynku 13.7 m |
Kąt nachylenia dachu 25 ° |
Piwnica bez podpiwniczenia |
Kubatura 324 m³ |
Kalenica równoległa do drogi |
Przechowywanie w kuchni spiżarnia |
Funkcje dodatkowe z pralnią |
Kupując projekt w technologii murowanej powinieneś budować dom murowany. Zupełna zmiana technologii na szkieletową wymaga przeprojektowania całego budynku ( zmieniają się obciążenia, fundamenty, konstrukcja dachu). Wydamy zgodę na takie przeprojektowanie jednak wiążę się to z dużymi kosztami. Istnieją firmy wykonawcze, które podejmują się zmiany technologii budowy bezpłatnie przy skorzystaniu z ich usług wykonawczych. Zdarza się, że pracownia architektoniczna przygotowuje warianty konkretnego projektu przewidując także inne technologie. Prosimy o sprawdzenie czy istnieje poszukiwana wersja projektu, w zakładce - warianty projektu.
Zwężenie/poszerzenie budynku* to nic innego jak zmiana w projekcie. Istnieje możliwość wprowadzenia takich zmian, we własnym zakresie (podczas adaptacji). *zwężenie/poszerzenie budynku nie powinno stanowić problemu w przypadku domów o dachu dwuspadowym jeśli wiąże się to z wydłużeniem/skróceniem kalenicy dachu.
Poznaj praktyczne porady ekspertów, które ułatwią Ci każdy etap budowy i od wyboru wymarzonego domu po jego wykończenie. Zyskaj pewność, że podejmujesz najlepsze decyzje dzięki sprawdzonym wskazówkom od specjalistów z planz.pl
Wycena szacunkowa, w kwotach netto, nie zawiera instalacji.
bezpłatnie (0zł)
przelew zwykły / PayNow
przy odbiorze
3-5 dni roboczych (jeśli projekt nie jest koncepcją)
Wybierz wygodny dla Ciebie czas kontaktu z naszym Doradcą Technicznym.