Kiwi bez garażu B



1. Wiatrołap | 2,40 m² |
2. Hol | 4,70 m² |
3. łazienka z piecem c.o. | 5,00 m² |
4. Schody | 4,00 m² |
5. Salon | 19,00 m² |
6. Kuchnia | 7,30 m² |
7. Pokój | 10,50 m² |
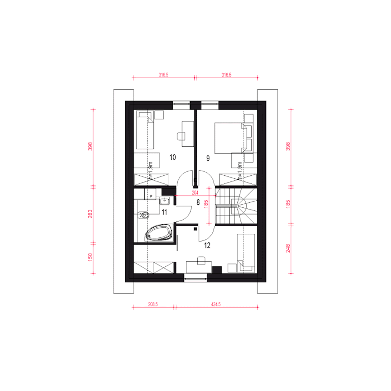
1. Przedpokój | 3,80 (3,80) m² |
2. Sypialnia | 10,10 (12,50) m² |
3. Sypialnia | 10,10 (12,50) m² |
4. łazienka | 3,90 (5,60) m² |
5. Sypialnia z garderobą | 10,90 (10,80) m² |
Wypełnij formularz i otrzymaj rysunki w pdf z dokładnymi wymiarami budynku i pomieszczeń (długość, szerokość, wysokość) dla projektu Kiwi bez garażu B
Pow. użytkowa 91.7 m² |
Ilość pokoi 5 |
Powierzchnia zabudowy 70 m² |
Kondygnacje parterowy+poddasze |
Garaż bez garażu |
Technologia murowany |
Szerokość działki 15.4 m |
Obiekt dom |
Typ domu jednorodzinny całoroczny |
Styl budynku tradycyjny |
Strop gęstożebrowy |
Liczba łazieniek 2 |
Kąt nachylenia dachu 45 ° |
Kalenica prostopadła do drogi |
Szerokość budynku 7.4 m |
Kominek kominek w projekcie |
Długość budynku 9.5 m |
Rodzaj dachu dwuspadowy |
Piwnica bez podpiwniczenia |
Powierzchnia dachu 130 m² |
Wysokość budynku 8.6 m |
Długość działki 17.5 m |
Bryła budynku prosta bryła |
Koszty budowy tylko z kosztorysem, 250-300 tys. |
Pow. użytkowa 91.7 m² |
Powierzchnia zabudowy 70 m² |
Garaż bez garażu |
Szerokość działki 15.4 m |
Typ domu jednorodzinny całoroczny |
Strop gęstożebrowy |
Kąt nachylenia dachu 45 ° |
Szerokość budynku 7.4 m |
Długość budynku 9.5 m |
Piwnica bez podpiwniczenia |
Wysokość budynku 8.6 m |
Bryła budynku prosta bryła |
Ilość pokoi 5 |
Kondygnacje parterowy+poddasze |
Technologia murowany |
Obiekt dom |
Styl budynku tradycyjny |
Liczba łazieniek 2 |
Kalenica prostopadła do drogi |
Kominek kominek w projekcie |
Rodzaj dachu dwuspadowy |
Powierzchnia dachu 130 m² |
Długość działki 17.5 m |
Koszty budowy tylko z kosztorysem, 250-300 tys. |
Kupując projekt w technologii murowanej powinieneś budować dom murowany. Zupełna zmiana technologii na szkieletową wymaga przeprojektowania całego budynku ( zmieniają się obciążenia, fundamenty, konstrukcja dachu). Wydamy zgodę na takie przeprojektowanie jednak wiążę się to z dużymi kosztami. Istnieją firmy wykonawcze, które podejmują się zmiany technologii budowy bezpłatnie przy skorzystaniu z ich usług wykonawczych. Zdarza się, że pracownia architektoniczna przygotowuje warianty konkretnego projektu przewidując także inne technologie. Prosimy o sprawdzenie czy istnieje poszukiwana wersja projektu, w zakładce - warianty projektu.
Zwężenie/poszerzenie budynku* to nic innego jak zmiana w projekcie. Istnieje możliwość wprowadzenia takich zmian, we własnym zakresie (podczas adaptacji). *zwężenie/poszerzenie budynku nie powinno stanowić problemu w przypadku domów o dachu dwuspadowym jeśli wiąże się to z wydłużeniem/skróceniem kalenicy dachu.
Poznaj praktyczne porady ekspertów, które ułatwią Ci każdy etap budowy i od wyboru wymarzonego domu po jego wykończenie. Zyskaj pewność, że podejmujesz najlepsze decyzje dzięki sprawdzonym wskazówkom od specjalistów z planz.pl
Wycena szacunkowa, w kwotach netto, nie zawiera instalacji.
bezpłatnie (0zł)
przelew zwykły / PayNow
przy odbiorze
3-5 dni roboczych (jeśli projekt nie jest koncepcją)
Wybierz wygodny dla Ciebie czas kontaktu z naszym Doradcą Technicznym.