TK31



Wypełnij formularz i otrzymaj rysunki w pdf z dokładnymi wymiarami budynku i pomieszczeń (długość, szerokość, wysokość) dla projektu Kasjan z garażem 2-st. A
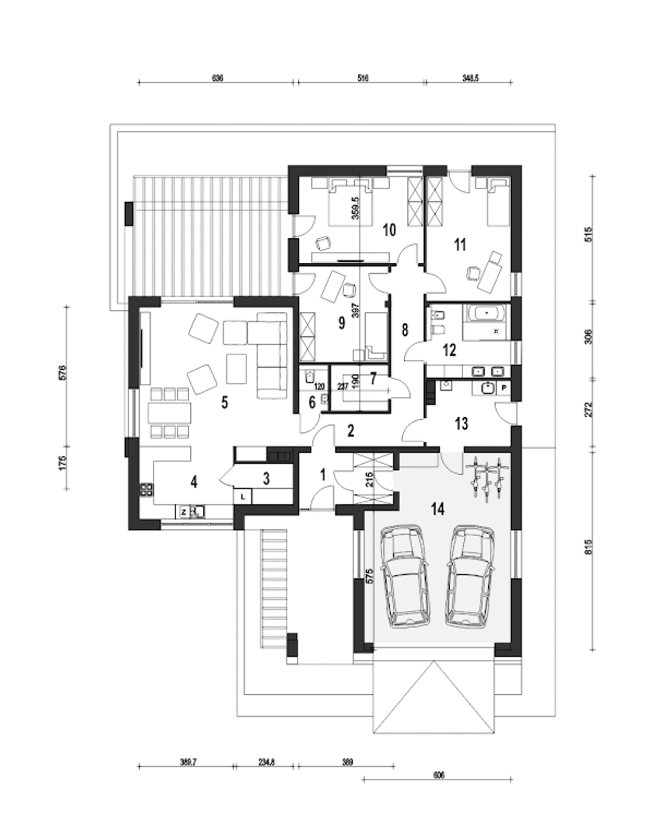
Ilość pokoi 4 |
Pow. użytkowa 143.6 m² |
Powierzchnia zabudowy 248 m² |
Kondygnacje parterowy |
Garaż 2 stanowiska |
Technologia murowany |
Szerokość działki 24.5 m |
Obiekt dom |
Typ domu jednorodzinny całoroczny |
Kalenica równoległa do drogi |
Powierzchnia dachu 569 m² |
Rodzaj dachu wielospadowy |
Funkcje dodatkowe z dwoma wejściami |
Wysokość budynku 7.8 m |
Przechowywanie w kuchni spiżarnia |
Długość działki 28.7 m |
Bryła budynku plan litery T |
Styl budynku nowoczesny |
Liczba łazieniek 1 |
Kominek kominek w projekcie |
Kąt nachylenia dachu 35 ° |
Szerokość budynku 16.5 m |
Kotłownia duża kotłownia |
Strop żelbetowy |
Długość budynku 20.7 m |
Rodzaj garażu z przodu |
Piwnica bez podpiwniczenia |
Koszty budowy 400-450 tys., tylko z kosztorysem |
Ilość pokoi 4 |
Powierzchnia zabudowy 248 m² |
Garaż 2 stanowiska |
Szerokość działki 24.5 m |
Typ domu jednorodzinny całoroczny |
Powierzchnia dachu 569 m² |
Funkcje dodatkowe z dwoma wejściami |
Przechowywanie w kuchni spiżarnia |
Bryła budynku plan litery T |
Liczba łazieniek 1 |
Kąt nachylenia dachu 35 ° |
Kotłownia duża kotłownia |
Długość budynku 20.7 m |
Piwnica bez podpiwniczenia |
Pow. użytkowa 143.6 m² |
Kondygnacje parterowy |
Technologia murowany |
Obiekt dom |
Kalenica równoległa do drogi |
Rodzaj dachu wielospadowy |
Wysokość budynku 7.8 m |
Długość działki 28.7 m |
Styl budynku nowoczesny |
Kominek kominek w projekcie |
Szerokość budynku 16.5 m |
Strop żelbetowy |
Rodzaj garażu z przodu |
Koszty budowy 400-450 tys., tylko z kosztorysem |
Kupując projekt w technologii murowanej powinieneś budować dom murowany. Zupełna zmiana technologii na szkieletową wymaga przeprojektowania całego budynku ( zmieniają się obciążenia, fundamenty, konstrukcja dachu). Wydamy zgodę na takie przeprojektowanie jednak wiążę się to z dużymi kosztami. Istnieją firmy wykonawcze, które podejmują się zmiany technologii budowy bezpłatnie przy skorzystaniu z ich usług wykonawczych. Zdarza się, że pracownia architektoniczna przygotowuje warianty konkretnego projektu przewidując także inne technologie. Prosimy o sprawdzenie czy istnieje poszukiwana wersja projektu, w zakładce - warianty projektu.
Zwężenie/poszerzenie budynku* to nic innego jak zmiana w projekcie. Istnieje możliwość wprowadzenia takich zmian, we własnym zakresie (podczas adaptacji). *zwężenie/poszerzenie budynku nie powinno stanowić problemu w przypadku domów o dachu dwuspadowym jeśli wiąże się to z wydłużeniem/skróceniem kalenicy dachu.
Poznaj praktyczne porady ekspertów, które ułatwią Ci każdy etap budowy i od wyboru wymarzonego domu po jego wykończenie. Zyskaj pewność, że podejmujesz najlepsze decyzje dzięki sprawdzonym wskazówkom od specjalistów z planz.pl
Wycena szacunkowa, w kwotach netto, nie zawiera instalacji.
bezpłatnie (0zł)
przelew zwykły / PayNow
przy odbiorze
3-5 dni roboczych (jeśli projekt nie jest koncepcją)
Projekt domu Kasjan z garażem to doskonała propozycja dla rodziny ceniącej sobie przestrzeń i funkcjonalność. Elegancki design zewnętrzny łączy w sobie tradycję z nowoczesnością, co sprawia, że budynek będzie wyglądał atrakcyjnie niezależnie od otoczenia. Szczególnie urzekła mnie przestronna kuchnia połączona z jadalnią, która stworzy serce domu i idealne miejsce na wspólne posiłki oraz spotkania z rodziną i znajomymi.
Wybierz wygodny dla Ciebie czas kontaktu z naszym Doradcą Technicznym.